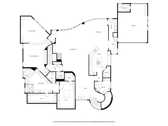
Overlooking the 4th green at Shady Oaks, this striking contemporary home features dramatic glass walls, open-concept living, and breathtaking golf course views throughout. The downstairs primary suite includes a private sitting room, while a flexible floor plan offers a game room that could easily serve as a fourth bedroom with a full bath. All bathrooms are ensuite, providing comfort and privacy for every bedroom. A spacious covered patio with an outdoor fireplace and built-in grill creates the perfect setting for entertaining or relaxing while enjoying the serene surroundings.
Property Details
Price:
$3,395,000
MLS #:
21152848
Status:
Active
Beds:
3
Baths:
4.1
Type:
Single Family
Subtype:
Single Family Residence
Subdivision:
Shady Oaks Country Club Add
Listed Date:
Jan 14, 2026
Finished Sq Ft:
5,423
Lot Size:
16,814 sqft / 0.39 acres (approx)
Year Built:
2000
See this Listing
Schools
School District:
Fort Worth ISD
Elementary School:
Phillips M
Middle School:
Monnig
High School:
Arlngtnhts
Interior
Bathrooms Full
4
Bathrooms Half
1
Cooling
Central Air, Electric
Fireplace Features
Living Room, Outside
Fireplaces Total
2
Flooring
Carpet, Travertine Stone
Heating
Central, Natural Gas
Interior Features
Cable TV Available, Decorative Lighting, High Speed Internet Available, Kitchen Island, Open Floorplan, Vaulted Ceiling(s), Walk- In Closet(s)
Number Of Living Areas
2
Exterior
Construction Materials
Stucco
Exterior Features
Attached Grill, Barbecue, Covered Patio/Porch
Garage Spaces
3
Lot Size Area
0.3860
Lot Size Dimensions
tbv
Pool Features
In Ground
Financial
Map
Community
- Address1108 Shady Oaks Lane Westover Hills TX
- SubdivisionShady Oaks Country Club Add
- CityWestover Hills
- CountyTarrant
- Zip Code76107
Subdivisions in Westover Hills
Market Summary
Current real estate data for Single Family in Westover Hills as of Apr 28, 2026
4
Single Family Listed
80
Avg DOM
568
Avg $ / SqFt
$3,497,500
Avg List Price
Property Summary
- Located in the Shady Oaks Country Club Add subdivision, 1108 Shady Oaks Lane Westover Hills TX is a Single Family for sale in Westover Hills, TX, 76107. It is listed for $3,395,000 and features 3 beds, 4 baths, and has approximately 5,423 square feet of living space, and was originally constructed in 2000. The current price per square foot is $626. The average price per square foot for Single Family listings in Westover Hills is $568. The average listing price for Single Family in Westover Hills is $3,497,500. To schedule a showing of MLS#21152848 at 1108 Shady Oaks Lane in Westover Hills, TX, contact your Spencer TX Real Estate, LLC agent at (817) 937-8532.
Similar Listings Nearby

1108 Shady Oaks Lane
Westover Hills, TX










































