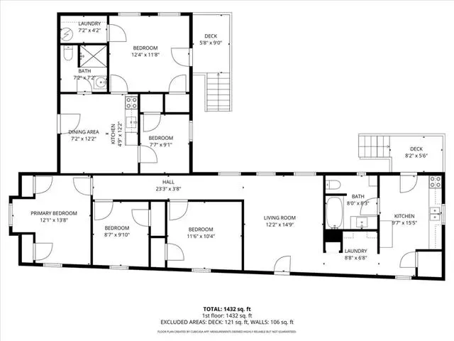
Complete transformation with thoughtful additions — this is not your typical mobile home. Although currently configured as one home conveniently divided into two separate living spaces, it can easily be converted back to a traditional single-family layout if desired.
In its current setup, go ahead and count everything twice: two front doors, two back doors, two living areas, two kitchens, two full bathrooms, two laundry areas, all topped off with 5 total bedrooms. This unique arrangement offers incredible flexibility for multigenerational living, rental income, or a spacious single-family residence.
Beyond the versatile floorplan, everything is brand new. Updates include new flooring, walls, interior and exterior paint, electrical, plumbing, water heaters, cabinets, hardware, siding, shutters — and the best upgrade of all: a brand-new 45-year metal roof!!
A truly move-in-ready property with endless possibilities.
In its current setup, go ahead and count everything twice: two front doors, two back doors, two living areas, two kitchens, two full bathrooms, two laundry areas, all topped off with 5 total bedrooms. This unique arrangement offers incredible flexibility for multigenerational living, rental income, or a spacious single-family residence.
Beyond the versatile floorplan, everything is brand new. Updates include new flooring, walls, interior and exterior paint, electrical, plumbing, water heaters, cabinets, hardware, siding, shutters — and the best upgrade of all: a brand-new 45-year metal roof!!
A truly move-in-ready property with endless possibilities.
Property Details
Price:
$300,000
MLS #:
21232173
Status:
Active
Beds:
5
Baths:
2
Type:
Single Family
Subtype:
Mobile Home
Subdivision:
Horseshoe Bend
Listed Date:
Apr 13, 2026
Finished Sq Ft:
1,459
Lot Size:
8,276 sqft / 0.19 acres (approx)
Year Built:
1997
See this Listing
Schools
School District:
Weatherford ISD
Elementary School:
Wright
Middle School:
Hall
High School:
Weatherford
Interior
Bathrooms Full
2
Cooling
Electric, Multi Units, Window Unit(s)
Flooring
Luxury Vinyl Plank
Heating
Electric
Interior Features
Decorative Lighting, Eat-in Kitchen
Number Of Living Areas
2
Exterior
Community Features
Airport/Runway, Community Dock, Fishing, Golf
Construction Materials
Aluminum Siding, Board & Batten Siding
Exterior Features
Covered Patio/Porch, Private Yard
Fencing
Back Yard, Chain Link, Fenced, Front Yard, Full, Wood
Garage Height
10
Garage Length
22
Garage Spaces
2
Garage Width
22
Lot Size Area
0.1900
Vegetation
Grassed
Financial
Map
Community
- Address211 Kickapoo Trail Weatherford TX
- SubdivisionHorseshoe Bend
- CityWeatherford
- CountyParker
- Zip Code76087
Subdivisions in Weatherford
- 2080 Survey: White George
- 2126 Surv: David Jones
- 3 H Ranch Estates
- 3H Ranch Estates
- A
- A.J. Ball Survey
- ABST 885 SURVEY
- ABST: 1189
- ABST: 1189 SURVEY: SHIRLEY WM V D TR:
- ABST: 1221 SURVEY: SNOW, JEREMIAH
- Abst: 1467, Survey: T & P RR CO SUR 101
- Abst: 533, Survey: GORMAN A J, TR:, BLK:, SURV: A
- acreage
- Addison Hawkins Surv Abs #665
- Adell Corner
- Aka Batte Sub
- ALFRED T OBENCHAIN
- Anderson
- Andersons, Rev
- Andresons Add
- Apes Add
- Arapahoe Ridge 03
- Arapahoe Ridge III
- Arrowhead Point
- Ash Creek Ranch
- Austin Heights Ph 03
- Austin Heights Ph I
- Aw Simmons Surv Abs #2259
- B M Watts
- Ball First
- Bankhead Partners
- Bar H Ranch
- Bar H Ranche
- Bar H Rho
- Barmac
- Barnett Rdg
- Barnett Ridge
- Bayouth Medical
- Bedinger Place Ph 03
- Beverly James Survey
- Bill Evans Add
- Blue Bonnet Ridge Ph
- Blue Ridge Estates
- Bluebonnet Ridge
- Bluff Ridge
- Bobcat Pass
- Brackene
- Brackene Add
- Bradley John M
- Bradshaw
- Brazos Ridge Estates II
- Briarwood IV
- Briarwood Patio Homes
- Britt Acres
- BRITT Acres Phase 1
- Britt Acres Phase I
- Britton
- Britton Add Resub Blk 3
- Brock Field
- Brock Village
- Brooks Meadow
- BUSTER M W
- caldwell
- Callisto Fields
- Canyon Creek Ranch
- Canyon Creek Ranch Ph
- Canyon Valley Estates
- Canyon West
- Canyon West Ph
- Canyon West Ph III
- Canyon West Ph VI
- CANYON WEST PH VI, INTERIOR LOT
- Canyon West Ph Vii
- Carter Hills
- CARTERS
- Carters Add
- Cartwright Ranch Pc
- Castle Estates
- Causey Add
- Cedar Mountain Estates
- Cedar Ridge Ph II
- Chisholm Heights
- Chisholm Hts Ph 3
- Circle T Estates
- Clairmont Sub Ph 2
- Clear Creek Estate
- Clear Creek Estate Ph
- Clear Lake Country
- Clear Lake Country II
- Clear Lake Country III
- Clear Lake Estates
- College Park
- Colonial Creek Estates
- Columbus J Eddleman 320 Acre S
- Comanche Crossing
- Comanche Ranch
- CONNAWAYS
- Connaways 01
- Connaways 02
- Cool Place
- Corner Ranch Estates
- Country Brook Estates
- Country Brook Park Estate
- Country Club Heights
- Country Living Add
- COUTS
- Couts Add
- Crazy Horse Ranchos
- Crown Valley Add
- Crown Valley Add Ph
- Crown Valley Estates Ph
- Crown Valley PH III
- Crown Vly Ph 2-3a
- Crown Vly Ph 2-3b
- CRUZ DESIDERIO
- D J Dunn Add
- D Norton
- Dalton Heights
- David Moore Survey
- DAVIDSON J H
- Day 2 Day Bus Park Ph 2
- Day 2 Day Business Park
- Day Business Park PH 2
- Deerfield Estates
- Denton Heights
- Diamond G Estate
- Diamond Oak Ph 08
- Diamond Ridge Ranch
- Diamond Ridge Ranch Drainage
- Dianes Way
- Dove Hill
- Doyles Add
- Driftwood Ranch
- Durham& Milligan I-20 ADDN
- E Crockett Surv Abs 214
- E E Taylor Surv Abs 2473
- Eagle Bluff Ph 2 PC E-357
- Eagle Ridge Estates
- Eagle’s Bluff Ph 4
- Eagle’s Nest RV Park
- Eagles Bluff
- Eagles Bluff Ph 1
- Eagles Bluff Ph 2
- Eagles Bluff Ph 3
- Eagles Bluff Ph 4
- Eagles Bluff Ph 5
- Eagles Bluff-Ph 3
- Eagles Crest Estates Ph
- EASLEY JOSHUA G
- East Lakeview Unrec
- East Pointe Plaza
- Echo Valley
- Eddleman Columbus
- Edmiston A E
- Edmiston Survey
- Elevation Estates
- Elevation Estates Pc
- Elevation Estates Ph 2
- Elevation Estates PH2
- Elk Hollow Estates
- Ellis Creek Ranch
- Elsberry Miller Survey A-873
- Estancia
- Estates Of Timber Creek
- Eureka Place
- Eureka Trail Add Pc
- Feather Edge Estates Pc
- Flat Rock Parc
- Focht Add
- Forest Ridge Add
- Fossil Ridge III
- Fossil Ridge Ph III
- Fox Hollow II
- FOX HOLLOW PH V
- Freeman Ranch
- Friendship Estates
- GALLOWAY RESERVE-B
- George M Plumlee Surv Abs #224
- Glen Hollow Ranch
- Glenhollow Ranch
- Glenhollow Ranch PH 1, F-102
- Glenhollow Ranch Ph 2
- GLENHOLLOW RANCH PH 2, F-360
- Glenn Add
- Goodnight Ranch
- Goodnight Trail
- Grace Lane Estates
- Grace View Estates
- Graceland
- Grantham Add
- Graystone Phase 1
- Green Acres
- Green R S
- Greenlee Bus Park
- Greenlee Business Park
- Greenwood Ranch Estates
- Gremminger Ranch At Southridge
- Greyhound Landing
- Greyhound Lndg
- Greyhound Lndg Sub
- H Cretsinger Surv Abs #306
- Ha Boone
- Haley’s Addition
- Harmony
- Harmony Oaks Estates Ph
- Hawkins Add #7
- Haydon Creek Ranch
- Haydon Creek Ranch Pc
- Hd Green Add
- Heather Place
- Heights Of Weatherford Estates
- Heritage Estates
- Heritage Meadows Ph
- Heritage Spgs
- Hidden Creeks
- Hidden Spgs Ranch Pc
- HIDDEN SPRINGS RANCH
- Highland Park
- Hillcrest Add
- Hills Of Monticello Ph
- Hobson Indust Sec 02
- Horseshoe Bend
- Horseshoe Bend Air Park
- Horsheshoe Bend
- Hudson Add The
- Huggins
- I20 & Center Point Road
- InMann Henry
- iorazos
- Ivey Add
- J B Jones Tract
- J C Campbell Surv Pat 114 Volu
- J Mays Surv Abs #903
- J Nowling Survey
- J.S. Amos
- James Clayton Surv Abs #226
- JAMES MCKELVEY
- JAMES R CAMPBELL
- JAMIES VILLAS F-106
- JH Robertson
- Jh Robertson Surv Abs #1150
- John M Bradley
- Joseph S Amos Survey
- Joseph Trimble
- Katy Ranch at Friendship Springs
- KEARBY JOHN B
- Lago Linda
- Lago Lindo Pc
- Lake Hills
- Lake Hills Estates Sec
- Lake Weatherford
- Lake Weatherford Leasehold
- Lakeshore Hills
- Lakeway Estates Ph II
- Lambert Meadows
- Liberty Meadows Ph II
- Liberty Meadows Ph III
- Lindas Creek Add
- Live Oak Hills
- Lockwood Estates
- Lockwood Estates Ph 02
- Lockwood Ph IV Add
- Lone Oaks Apartments Addition Phase 2
- Lone Oaks of Weatherford
- Lone Oaks Phase II
- Lonestar Ranch Estates
- Lots Surrounding Lake Weatherfor
- Lucas 02
- M J Hawkins Surv Abs #720
- M&T Estates
- Major Indust
- MAJOR INDUSTRIAL
- Mason Pond Add
- Mattlock
- Mccallls Add
- McCalls
- Mccarty
- Mcclendon Estates Pc
- Mcclendon Mdws Ph 2
- Meadowview
- Midway Estates Pc
- Milliken Heights
- Millsap Rev Add
- Mineral Heights
- Montclaire
- Montgomery AJ
- Morgan Manor
- Morgan Meadows Add
- no
- No Subdivison
- North Main
- North Star Crossing
- Northwest Add
- Nowlin Survey
- Oak Hill West
- Oak Hill West Dev
- Oak Spgs Add Ph
- OAKRIDGE ACRES NORTH
- Oakwood Estates
- Odel Add
- Old Oaks
- Olive Branch Estates III
- Outback Ac Ph 1
- Outback Acres II
- Outback Acres Ph III
- Owen and Wilbanks
- Ox Mill Creek Ranch
- Pace
- Pace Add
- Pace Addition
- Par Co West Loop
- Park Oaks Add
- Parker County
- Parker Mdws
- Parker Oaks
- Parker’s Draw
- Partagas Add
- Partagas Add Ph I
- Partagas Add Ph II
- Patriots Outpost
- Patton & Browder Surv Abs 2414
- Peaster Original Town
- Pioneer Crossing Pc
- Platinum Ridge Esates
- Platinum Ridge Estates
- Pleasant Valley Ph II
- Pleasant Valley Ph III
- Price & Millers
- PS Hall Surv Abs #659
- Quail Run Estates
- Quail Spgs Ranch
- Quail Springs Ranch
- R000068349
- Ranches West Ph
- Ranches West Ph 2
- Ranches West Ph 3
- Rangewood
- Reata Ranch
- Red Oak Ranch
- Rentz Place
- Revere Creek Ph II
- Rhodes Ranch Estates Ph
- Ric Williamson Industrial Park
- Rio Brazos
- riobrazos
- River Ranch on The Brazos
- Roberts Add
- Rock Creek Ranch Estates
- Rocky Rdg Ph 2
- Rocky Rdg Ph 3b
- Rocky Ridge
- Rolling Hills Shrs Sec A
- Rolling Hills Shrs Sec B
- Rolling Hills Weatherford
- Rolling J Ranch Estates
- Rolling Valley
- Roselawn 01
- Roselawn 02
- Roselawn 03
- RS GREEN SURV
- Ryker Ridge
- Sabathney Acres Park
- Saddle Club Estates Ph
- Saddle Ridge Estates
- Saddle Ridge Estates Fka
- SaddleCrest Estates
- Saddlecrest Estates Ph 2
- Saddlecrest Ests Ph 1
- Sanchez Creek 03
- Sandstone Estates
- Sandstone Estates Ph Two
- Santana Rdg
- Santana Rdg Ph 2
- Santana Rdg Sub
- Santana Ridge
- Santana Ridge Estate
- Santana Ridge Estates
- Santorini
- see legal
- Shannon
- Silver Sage Farms
- Silver Sage Farms Ph
- Silver Sage Farms Ph II
- Silverado On The Brazos
- Silverstone
- Silverstone Pearson Ranch
- Silverstone Pearson Ranch Ph 4
- Silverstone Pearson Ranch Ph 9
- skidmore lore
- Sloans Add
- Snow Jeremiah
- Sonora Estates
- SOUTH HILLS ESTATES
- Southpark Add
- Soward & Dugan
- Sprouts Weatherford Point
- Stafford Farm Estates Pc
- Stallion Meadows Estates Ph
- Steed Estates
- Stephen F. Jones
- Stone Creek Ranch
- STONE LAKE PH 1, F-596
- Stonebridge Estates Ph II
- Stonegate Meadows
- Story Book Homes Add
- Sunrise Point
- Sunrise Point Ph 2
- Sunshine Terrace
- Sweet Spgs Estates
- Sweet Spgs Villas Pc
- T & P RR CO
- T & P Rr Co Surv #141 Abs #144
- T&Prr Co Surv Sec 227 Abs 1486
- Taylor Road Estates
- THE CHARLES AND PEG PEARCY ADDITION
- The Country Place
- The Oaks
- The Oaks Of Parker
- The Preserve On Ash
- The Preserve On Ash Creek
- The Ranches of New Authon
- The Reserve Of Brock
- THE RESERVE OF BROCK, PC E-663
- The Vistas On Veal
- Timber Ridge Estates
- Timberview Preserve
- Town Creek Dev Ph
- Town Creek Development Ph II
- Trace Ridge
- Trace Ridge Ph I
- Tranquility Ranch
- Trinity Oaks Ranch Pc
- Tuckers Place
- Twin Creek Estates Pc
- Twin Creeks Estates
- Twin Creeks Estates Pc
- University Hills
- University Hills Ph 1
- University Hills Ph I
- University Hills Ph II
- V.V. Harris Survey
- Valley Trails Estates
- Van Brush Sub
- Veasey
- Villas at Heritage Pointe
- Villas of Heritage Pointe
- Vine Street Add
- Vintage Oaks
- Vintage Oaks Ph 2
- Virginia Place Add
- Virginia Place Addition
- Waterford Park
- Wayside Indust Add Pc
- Weatherford
- Weatherford Mini Ranch Estates
- Weatherford Original Town
- West Ranch Estates
- Westend Estates
- Western Lake Estate
- Western Lake Estates
- Western Lake Estates A
- Western Lake Estates B
- Western Lake Estates E
- Western Lake Estates F
- Westover Village Estates Ph
- Westpark
- Westpark Addition
- Westwood Estates
- Westwood Estates 02 & 03
- Whispering Oaks
- Willhawk Add
- William Add
- Willow Creek
- Willow Creek Ph II
- Winchester Ranch Estate
- Winchester Ranch Estates
- Windmill Creeks
- Windmill Creeks Sub
- Windmill Meadows Pc
- Windward Estate
- WK Baylor
- WM Barker Survey
- Woodland Hills
- Woodland Lakes
- Woodland Lakes Pc
- Woodlands Of Parker Co
- Woodlands West
- Wossum Ranch
- Wossum Ranch Ph 3
- Yeoman Add
- Yeomans
- Yeomans Add
- Yes
- Zanetti Place
- Zion Hill Estates Ph II
Market Summary
Current real estate data for Single Family in Weatherford as of Apr 24, 2026
694
Single Family Listed
93
Avg DOM
278
Avg $ / SqFt
$669,335
Avg List Price
Property Summary
- Located in the Horseshoe Bend subdivision, 211 Kickapoo Trail Weatherford TX is a Single Family for sale in Weatherford, TX, 76087. It is listed for $300,000 and features 5 beds, 2 baths, and has approximately 1,459 square feet of living space, and was originally constructed in 1997. The current price per square foot is $206. The average price per square foot for Single Family listings in Weatherford is $278. The average listing price for Single Family in Weatherford is $669,335. To schedule a showing of MLS#21232173 at 211 Kickapoo Trail in Weatherford, TX, contact your Spencer TX Real Estate, LLC agent at (817) 937-8532.
Similar Listings Nearby

211 Kickapoo Trail
Weatherford, TX





































