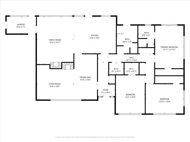
Welcome to this exceptional property in North Richland Hills offering space, luxury, and an entertainer’s dream backyard—all situated on nearly half an acre. This beautifully updated home features a beautiful custom rod iron front door, and 3 oversized bedrooms, all freshly repainted and complete with walk-in closets. Enjoy 2 fully remodeled bathrooms designed with both style and functionality in mind, featuring granite countertops, double sinks, walk-in showers, and an oversized soaking tub. A convenient exterior bathroom access provides seamless entry to the backyard and pool area—perfect for entertaining. Inside, the home boasts hardwood floors throughout, two spacious living areas, and two cozy gas fireplaces. The expansive laundry room includes washer and dryer hookups along with a spacious storage closet for added convenience. The fully renovated kitchen is a showstopper, featuring elegant honed marble countertops, a premium Sub-Zero refrigerator, 6-dual fuel range cooktop with double oven, and a large sink overlooking your private backyard oasis. Step outside to your resort-style retreat complete with a newly renovated pool (February), a 15’ x 30’ arbor with dual ceiling fans, a relaxing deck-sitting area, and a massive stone patio with a built-in grill—truly a grill master’s dream. Mature trees provide shade and privacy, enhancing the serene outdoor experience. Conveniently located with easy access to major freeways, grocery stores, and nearby walking trails, this home offers both accessibility and lifestyle. Situated within the highly regarded Birdville Independent School District, and within walking distance to the elementary, middle, and high schools, this location is ideal for everyday convenience. This one-of-a-kind property combines modern upgrades with timeless charm—don’t miss your chance to call it home!
Property Details
Price:
$488,000
MLS #:
21233900
Status:
Active
Beds:
3
Baths:
2
Type:
Single Family
Subtype:
Single Family Residence
Subdivision:
North Richland Hills Add
Listed Date:
Apr 9, 2026
Finished Sq Ft:
2,557
Lot Size:
21,083 sqft / 0.48 acres (approx)
Year Built:
1956
See this Listing
Schools
School District:
Birdville ISD
Elementary School:
Snowheight
Middle School:
Norichland
High School:
Richland
Interior
Bathrooms Full
2
Cooling
Ceiling Fan(s), Central Air, Electric, Gas, Roof Turbine(s)
Fireplace Features
Den, Gas, Gas Logs, Gas Starter, Glass Doors, Living Room, Masonry, Raised Hearth, Stone
Fireplaces Total
2
Flooring
Carpet, Hardwood
Heating
Central, Fireplace(s), Natural Gas
Interior Features
Built-in Features, Double Vanity, Eat-in Kitchen, Granite Counters, Kitchen Island, Open Floorplan, Pantry, Walk- In Closet(s)
Number Of Living Areas
2
Exterior
Community Features
Curbs, Greenbelt, Jogging Path/Bike Path
Construction Materials
Rock/Stone
Exterior Features
Attached Grill, Awning(s), Built-in Barbecue, Rain Gutters, Lighting, Outdoor Grill, Outdoor Living Center, Private Yard
Fencing
Fenced, Wood, Wrought Iron
Garage Spaces
2
Lot Size Area
0.4840
Pool Features
Diving Board, Gunite, In Ground, Outdoor Pool, Pool Sweep, Pump
Financial
Map
Community
- Address4612 Holiday Lane North Richland Hills TX
- SubdivisionNorth Richland Hills Add
- CityNorth Richland Hills
- CountyTarrant
- Zip Code76180
Subdivisions in North Richland Hills
- Ag Walker Surv
- Brandonwood Estates Add
- Briarwood Estates
- Bridlewood Add
- Cambridge Estates
- Cambridge Manor
- Cambridge Place
- Cambridge Village
- Carston Court
- Century Oaks Add
- City Point
- City Point Add
- Clear View Add
- College Circle Shopping Cnt Ad
- College Hills Add
- College Hills Addition
- COLLEGE HILLS ADDITION-NRH
- Condra, John Survey
- Coventry Place Estates Add
- Crestwood Estates Add
- Culp Add
- Diamond Loch Add
- Diamond Loch North Add
- DIAMOND PARK
- DIAMOND PARK ESTATE
- Ember Oaks Add
- Emerald Hills Add
- Estates At N R H
- Fair Oaks Estates Add
- Flamingo Estates Add
- Forest Glenn Add
- Forest Glenn East Add
- Forest Glenn West
- Forest Glenn West Ph II
- Fossil Creek Trails Add
- Foster Village
- Foster Village Add
- Fountain Ridge
- Fox Hollow
- Fox Hollow Add
- Fresh Meadows Estates
- Glenann Add
- Glenwyck Add
- Glenwyck Villas Add
- Grace Meadows
- Graham Ranch
- Graham Ranch Ph 02
- Haltom Ranchland
- Harmon Farms
- Hill N Oaks Place Add
- Hillview Add
- Holder Smithfield Estates
- HOLIDAY EAST ADDITION BLOCK 1A LOT 27
- Holiday Hills Add
- Holiday Hills Addition
- Holiday North Add
- Holiday West
- Holiday West Add
- Holiday West Addition
- Home Town NRH West
- Hometown
- Hometown Canal District
- Hometown Canal District Ph 4
- Hometown Canal District Ph 5a
- Hometown Canal District Ph 6
- Hudiburg Add
- Iron Horse Add
- Iron Horse Commons Ph 1
- Iron Horse Commons Ph 2
- John Condra Survey
- John H Barlough Suevey
- Kelley H W Estates
- Kingswood Estates
- Kingswood Estates Add
- Lightfoot Add
- Londonderry Add
- Lonsdale Add
- Lynncrest Add
- Maroaks Add
- MCCOMMAS, JOHN SURVEY Abstract 1040 Tract 2B
- Meadow Crest
- Meadow Lake Addition
- Meadow Lakes Add
- Meadowlakes Villas Add
- Miranda Addition
- Morgan Meadows Sub
- N Richland Hills Town Center
- no
- Nob Hill Centre Add
- Nortex Add
- North Hills
- North Hills Add
- North Park Estates
- North Park Plaza
- North Richland Hills Add
- North Richland Hills Addition
- North Ridge Add
- OAKVALE ADDITION
- Parkman Add
- Peck, Thomas Survey Abstract
- Powell Sub
- Precint Line Office Park
- Richaven
- Richaven Sub
- Richfield At The Parks Add
- Richfield Sub
- Richland Heights Add
- Richland Hills West Add
- Richland Oaks Sub
- Richland Terrace Add
- RICHLAND TERRACE ADDITION
- Rumfield Estates
- Shady Oaks Add
- Skyline Homes Add
- Smith Farm
- Smith Farm Add
- Smithfield Acres Add
- Smithfield Corners Add
- Snow Heights Add
- St Joseph Estates
- Stonybrooke Add
- Stonybrooke South Add
- Sunny Meadow Add
- Tandy K Martin
- The Grove
- Thornbridge
- Thornbridge Add
- Thornbridge East Add
- Tivoli Garden Estates
- Town Walk Chase Add
- Towne Oaks Add
- Urban Trail Add
- Urban Trails
- Urban Trls Cottages
- Valley Park Estates
- Village Cooperative of Century Hills
- Villas at Smithfield
- Villas of Hometown
- Wafarer Addition
- Walker
- Whispering Oaks
- Whispering Oaks Nrh
- Windcrest Add
- Windsor Park Add
- Woodland Oaks Add
Market Summary
Current real estate data for Single Family in North Richland Hills as of Apr 15, 2026
206
Single Family Listed
61
Avg DOM
205
Avg $ / SqFt
$467,976
Avg List Price
Property Summary
- Located in the North Richland Hills Add subdivision, 4612 Holiday Lane North Richland Hills TX is a Single Family for sale in North Richland Hills, TX, 76180. It is listed for $488,000 and features 3 beds, 2 baths, and has approximately 2,557 square feet of living space, and was originally constructed in 1956. The current price per square foot is $191. The average price per square foot for Single Family listings in North Richland Hills is $205. The average listing price for Single Family in North Richland Hills is $467,976. To schedule a showing of MLS#21233900 at 4612 Holiday Lane in North Richland Hills, TX, contact your Spencer TX Real Estate, LLC agent at (817) 937-8532.
Similar Listings Nearby

4612 Holiday Lane
North Richland Hills, TX





































