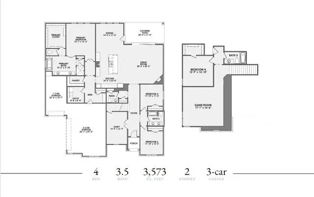
Welcome to 866 Feathergrass Court, a beautifully designed 3,573 square foot transitional-style home situated on a sprawling 1-acre homesite, offering the perfect blend of modern comfort and timeless elegance. This thoughtfully laid-out floor plan features 4 bedrooms, 3.5 baths, a private study, and a spacious game room, providing flexibility for both everyday living and entertaining. The open-concept design showcases a large great room with slider exterior doors that flows seamlessly into the chef’s kitchen, complete with an oversized island, walk-in pantry, abundant cabinetry, and designer finishes throughout. The adjacent dining area overlooks the expansive backyard, while the extended covered patio is ideal for outdoor living and gatherings. The private primary suite is tucked away on the main floor and offers a relaxing retreat with a spa-inspired bath, dual vanities, soaking tub, separate shower, and a generous walk-in closet. Two additional bedrooms and a full bath are also located downstairs, creating the perfect setup for guests or family. Upstairs, you’ll find a fourth bedroom, full bath, and a large game room—perfect for a media space, playroom, or second living area. Additional highlights include a dedicated study, mudroom, utility room, and both a 2-car garage plus a separate 1-car garage for added storage or flexibility. Set on a full acre, this home provides ample space to create your dream outdoor oasis while still enjoying the convenience of a well-designed community.
Property Details
Price:
$875,000
MLS #:
21205046
Status:
Active
Beds:
4
Baths:
3.1
Type:
Single Family
Subtype:
Single Family Residence
Subdivision:
Sweetgrass
Listed Date:
Mar 11, 2026
Finished Sq Ft:
3,573
Lot Size:
41,559 sqft / 0.95 acres (approx)
Year Built:
2026
See this Listing
Schools
School District:
Northwest ISD
Elementary School:
Haslet
Middle School:
CW Worthington
High School:
Eaton
Interior
Bathrooms Full
3
Bathrooms Half
1
Cooling
Central Air, Electric
Fireplace Features
Gas Starter
Fireplaces Total
1
Heating
Central
Interior Features
Cable TV Available, Decorative Lighting, Flat Screen Wiring, High Speed Internet Available, Open Floorplan
Number Of Living Areas
1
Exterior
Construction Materials
Brick
Garage Height
9
Garage Length
20
Garage Spaces
3
Garage Width
20
Lot Size Area
41559.0000
Financial
Map
Community
- Address866 Feathergrass Court Haslet TX
- SubdivisionSweetgrass
- CityHaslet
- CountyTarrant
- Zip Code76052
Subdivisions in Haslet
- ALPHA RANCH
- Ashford, James A Survey
- Ashmore Farms Add
- Avondale Ranch
- Avondale Ranch Add
- Bel Grand Estates
- Blue Mound Estates
- Caraway
- Caraway Ph 1
- Caraway Ph 2
- Caraway Ph Two
- Dorado Ranch
- E Thompson
- Elizabeth Creek
- Elizabeth Creek Alpha Ranch
- Elizabeth Creek at Alpha Ranch
- Elizabeth Creek HOA
- Elizabeth Creek of Haslet
- Elizabeth Crk
- Elizabeth Crk Alpha Ranch
- Haslet City Of
- Haslet Elite Learning Center
- Haslet Heights
- Haslet Park Add
- Henry Roberts
- Highlands At Willow Spgs
- Hopkins, Eldridge Survey
- Lavois, B Survey
- Ledford, Silas Survey
- LeTara
- Letara Ph 1
- Letara Ph 2
- Letara Ph 3
- Lexington Add
- Lonesome Dove Estates
- LOT 17 BLK 66 NORTHSTAR
- Madero
- Meadow The Haslet
- North Ridge Estates
- Northglen Ph 2
- Northglen Ph Two
- Northstar
- NORTHSTAR PH 1 SEC 1
- Northstar Ph 1 Sec 1
- Northstar Ph 1 Sec 3
- Northstar Ph 2 Sec 2
- Northstar Ph 3 Sec 2
- rancho canyon
- Rb Bishops Sub
- Scott, M William Survey
- Sendera Ranch
- Sendera Ranch East Ph 18
- Songbird Add
- Songbird ADDN
- Sun Valley Estates
- Sun Valley Estates Add
- Sunshine Meadows Unrec
- Sweetgrass
- The Vines of Watercress
- Van Zandt Farms Fossil Creek
- Vines
- Watercress Ph 2
- Watercress Ph One
- Watercress-Ph 1
- Wellington
- White Hugh Estates
- White, Hugh estate
- Willow Spgs West Add
Market Summary
Current real estate data for Single Family in Haslet as of Apr 28, 2026
235
Single Family Listed
68
Avg DOM
213
Avg $ / SqFt
$643,825
Avg List Price
Property Summary
- Located in the Sweetgrass subdivision, 866 Feathergrass Court Haslet TX is a Single Family for sale in Haslet, TX, 76052. It is listed for $875,000 and features 4 beds, 3 baths, and has approximately 3,573 square feet of living space, and was originally constructed in 2026. The current price per square foot is $245. The average price per square foot for Single Family listings in Haslet is $213. The average listing price for Single Family in Haslet is $643,825. To schedule a showing of MLS#21205046 at 866 Feathergrass Court in Haslet, TX, contact your Spencer TX Real Estate, LLC agent at (817) 937-8532.
Similar Listings Nearby

866 Feathergrass Court
Haslet, TX





