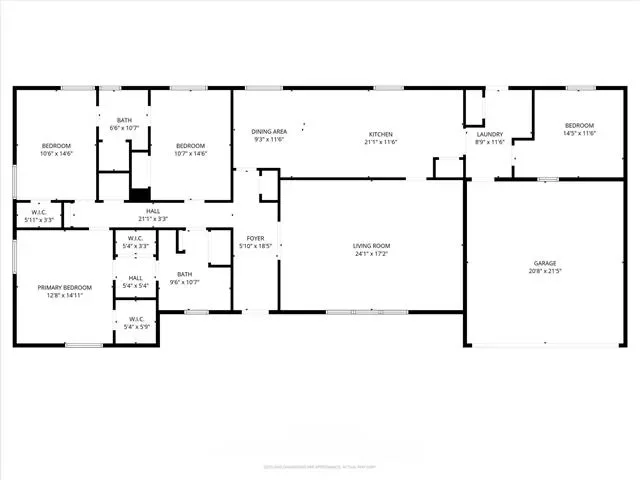
Welcome to this charming ranch style single-story home that sits on an oversized .037 acre lot, offering plenty of space to enjoy outdoor living, entertain or expand. This home features a traditional layout with spacious living areas, a functional floor plan and access to it thru only one entrance to the street with a dead end making it very private. The kitchen offers plenty of counter space and some vintage era vibes adding nostalgic charm and character. The large primary bedroom offers two walk in closets, one in the bedroom and one in the bathroom. Both secondary bedrooms offer plenty of space, walk in closets and a jack and jill bathroom. The versatile bonus room can be used in many ways such as a home office, playroom, hobby room or 4th bedroom. Step outside and there’s even more to love, a huge backyard and a detached outdoor building with electricity, ideal for a workshop, hobby space or extra storage. The fenced and spacious front yard adds a peace of mind, for kids or pets to play safely. The neighborhood offers a quiet residential feel while still providing convenient access to I-35, shopping and eateries within a few minutes. Located within the highly regarded Burleson ISD. The roof was replaced in May 2025 and the house has 2 water heaters. Don’t miss this opportunity, there are not too many houses like this one.
Property Details
Price:
$297,000
MLS #:
21249035
Status:
Active
Beds:
3
Baths:
2
Type:
Single Family
Subtype:
Single Family Residence
Subdivision:
Korn Add
Listed Date:
Apr 24, 2026
Finished Sq Ft:
2,110
Lot Size:
16,117 sqft / 0.37 acres (approx)
Year Built:
1965
See this Listing
Schools
School District:
Burleson ISD
Elementary School:
Brock
Middle School:
Kerr
High School:
Burleson Centennial
Interior
Bathrooms Full
2
Cooling
Ceiling Fan(s), Central Air, Electric
Fireplace Features
Brick, Wood Burning
Fireplaces Total
1
Flooring
Adobe, Carpet, Linoleum
Heating
Central, Natural Gas
Interior Features
Other
Number Of Living Areas
1
Exterior
Construction Materials
Brick
Fencing
Chain Link
Garage Spaces
2
Garage Width
20
Lot Size Area
0.3700
Financial
Map
Community
- Address720 Alsue Street Fort Worth TX
- SubdivisionKorn Add
- CityFort Worth
- CountyTarrant
- Zip Code76140
Subdivisions in Fort Worth
- 124064
- 1301 Throckmorton Residences
- 1g
- 36b
- 528 SURVEY: GLENN JAMES A
- 76179
- 959 West Bluff Condo
- A S Hall Addition
- ABST815 2A,2A05
- Academy at water chase ADD
- Adams Heirs Sub
- Adams Virgil Sub
- Ahler
- Aikman Homer L Add
- Akers Park Add
- Albright Arthur Sub
- Aledo Bluffs Sub Pc
- Alexander L D Add
- Alexandra Meadows
- Alexandra Meadows South
- Alford & Veals Add
- ALFORD, BRITTON D
- Allen Place
- Alpha Ranch
- Alta Mere Add
- Alta Mesa Add
- ALTA VISTA MHP
- Anderson
- Anderson Frank M Sub
- Andrews Myrtle B Sub
- Anthem Estates Add
- Arbor Hill Add
- Arbor Mill Plantation
- Arcadia Park Add
- Archer W A Add
- Arlington Heights
- Arlington Heights West
- Arthouse
- Arthouse Condo
- Ash Meadows Add
- Ashbriar
- Ashbriar Add
- Astoria Add
- Augusta Square 1
- Autumn Hills Estates
- Avalon Heights
- Avendale Chisholm Trail Ranch
- Avondale Heights Unit 2
- Avondale Heights Unit 5 & 6
- Azalea Park
- Bailey Park
- Bailey William J Add
- Baily Pk
- Baker Brothers Add
- BAKER BROTHERS ADDITION
- Baker Heights
- Bankhead Estates Add
- Bar C Ranch
- Bar C Ranch Ph 4b
- Barber Tract
- Bassett
- Bassett Add
- Bassett Addition
- BASSWOOD PARK
- Basswood Village
- Bear Creek Club Estates
- Bear Creek Vista
- Beechwood Creeks
- Bell Virgil Add
- BELLA FLORA
- Bella Flora Ph 9
- Bellaire Add
- Bellaire Estates
- Bellaire Heights
- Bellaire Park North
- Bellevue Hill Add
- Bells Add
- Belmont Add
- Belmont Park Add
- Belmont Terrace
- Belmont Terrace Add
- Ben Day Murrib
- Ben Day Murrin
- Benbrook Hills
- Benbrook Lakeshore Estates
- Benjamin E Waller Surv
- Bent Creek Ranch
- Bentley Village
- Bentley Village Add
- Berkeley
- Beverly Hills Estates
- Big Bear Creek Meadows
- Blairbrook Fields Add
- Blake Meadows Add
- Blandford Add
- Blue Lagoon Dream Add
- Bluebonnet Hills
- Bluffview
- BOAZ & DILLOW ADDITION
- Boaz Z Country Place
- Boaz Z Country Place Add
- Boswell Meadows
- Boswell Ranch
- Boswell Ranch Add
- Brackeen Sub
- Breeding
- BREEDING, N B SURVEY
- Brentmoor Add
- Brentwood Hills
- Bridgeview
- Brittany Place Add
- Broad Acres
- Broadmoor
- Broadmoor Add
- Broadmoor Additon
- Brook Mdw
- Brookside Acres Add
- Brookside Annex
- Brookside Anx
- Brookville Ranch
- Brookwood Park
- Brown Ln
- Brown M E Sub
- Browning Sub
- Bunche Ralph Add
- Bunting’s Addition to Hi Mount
- Buntings Add
- BURCH HILL ADDITION 2ND FILING
- Burchill Add
- Burney I H Add
- Burton Acres
- Butler B Sub
- Byers & Mccart Add
- BYERS & MCCART ADDITION
- Byers Square Condo
- Byers Square Condominiums
- Cahoba Bus Add
- Calloway Park Add
- Camelot
- Camelot-Increment 02 Ft Worth
- Cameron Place
- Candleridge Add
- Canteyplace Condo
- Carlocks South Side Add
- Carol Oaks Add
- Carrell Hills
- Carrington Court Add
- Carroll-Stone Add
- Cartwright Add
- Carver Heights
- Carver Place
- Castleberry Gardens Add
- Catita Sub
- Cattlebaron Parc
- Cattleman’s Crossing
- CAVHERS HOWARD
- Cedarbrook
- Chadwick Farms
- Chadwick Farms Add
- Chadwick Farms Add Sec 6 Ph 1
- Chadwick Farms Add Sectio
- Chamberlain Arl Heights 1st Add
- Chamberlain Arlington HTS
- Chamberlain Arlington Heights
- Chamberlain Arlington Heights 1st
- Chamberlain Arlington Heights 2nd
- Chamberlain Arlington Heights 4th
- Chamberlain Arlington Hts 1st
- CHAMBERLAIN ARLINGTON HTS 2ND
- Chamberlin Arlington Heights 2nd A
- Chapel Creek
- CHAPEL CREEK BLVD
- CHAPEL CREEK PHASE 1
- Chapel Creek Ranch Add
- Chapel Crk
- Chapel Crk Ph 1
- Chapel Hill
- Chapel Hill Ph I
- Chapel Ridge Add
- Chapel Spgs Add
- Chapin Court Add
- Chapin Village
- Charbonneau Cove Add
- Chart House
- Chart House Condo The
- Cheltenham
- Cheyenne Ridge
- CHIRINO, JOSE SURVEY
- Chisholm Trail Ranch
- Chisholm Trail Ranch Ph 3 Sec I
- Chisholm Trail Ranch Ph II Sec 1
- Chisholm Trl Ranch
- Chisholm Trl Ranch Ph 1a
- Chisholm Trl Ranch Ph 1b
- Chisolm Trail Ranch
- Cibolo Hill
- Cibolo Hill Ph 2
- Cibolo Hill Ph 3
- Cibolo Hills
- Clairemont Place
- Cliffview Add
- Club Villa Estates
- Cobblestone Square
- Cobbs Orchard Add
- Cole Highlands Add
- Cole Sub
- College Hill Addition
- Colonial Gardens Condo
- Colonial Park Add
- Columbus Heights
- Columbus Heights Add
- Copper Creek
- Copper Crk
- Copper Crk Ph 1
- Copper Crk Ph 4
- Copper Crk Ph I
- Copper Crk Ph II
- Copper Crk Ph IV Sec 2
- Corbell Add
- Cottages At Hutson Oaks
- Cottages Hutson Oaks
- Cottonwood Creek
- Cottonwood Hills Add
- Cottonwood Village
- Couch J T Add
- Country Club Heights
- Country Day Place Office Condo
- Country Heights Ft Worth ISD
- Country Hills Estates
- Countryside Add
- Coventry
- Coventry Add
- Coventry East
- Coventry Hills Add
- Coventry Hills Addition
- Covered Bridge Canyon
- Covered Bridge Estates
- Cranfill Sub
- Cravens M L Sub
- Crawford Farms Add
- Creekside Estates
- Creekwood Add
- Crescent Place
- Crest Point Add
- Crestland Second Filing Add
- Crestmont Add
- Crestridge Add
- Crestwood
- Crestwood Add
- Crossing At Fossil Creek The
- Crystal Spgs Add
- Cuella Francisco Survey
- Danner Tom Add
- David Strickland Surv Abs #137
- Dean Ranch
- Deavers Add
- Deavers Addition
- DEAVERS ADDITION-FORT WORTH
- Deer Creek
- Deer Creek North Add
- Deer Meadow
- Deer Meadow Add
- Deer Valley Ft Worth
- Deer Wood Forest Add
- Diamond Hill
- Diamond Hill Add
- DICKSON-JENKINS COMMERCIAL CONDOS
- Dorado Ranch
- Draughon Heights
- Driscoll Acres Add
- Duck Creek
- Dulney, Daniel Survey
- E T Square
- Eagle Lake Beach Sub
- Eagle Mountain
- Eagle Mountain Lake
- EAGLE MOUNTAIN LAKE ESTATE SUB
- Eagle Ridge Add
- Eagles Crossing
- East Green Hill Add
- East Handley Heights Add
- East Rosedale Heights
- Eastbrook Add
- Eastchase Village
- Eastern Hills Add
- Eastland Add
- Eastover Add
- Eastover Addition
- Eastwood
- Eastwood 4th & 5th Filing Add
- Eastwood Add
- EASTWOOD ADDITION
- Eastwood Terrace Add
- Ederville Park Twnhms Add
- EDGEPARK
- Edgepark Add
- Edgewood
- Edgewood Heights Add
- Edgewood Park Add
- EDGEWOOD PARK ADDITION
- Edgewood Terrace Add
- Edmundson Add
- Edwards Ranch Riverhills Add
- Edwards W B Garden Acres Add
- Edwards, William Survey
- Eggleston Add
- Eggleston Place Add
- Elizabeth Creek
- Ellis M G Add
- Elm Crest Addition
- Elm Crk Ests
- Elston Add
- Emerald Park Add
- Emory College Sub
- Emory College Sub of Patillo Block 10 Lot 13R
- Emory College Sub of Patillo Block 10 Lot 15R
- Emory College Sub of Patillo Block 10 Lot 1R
- Emory College Sub of Patillo Block 10 Lot 2R
- Emory College Sub of Patillo Block 10 Lot 5R
- Emory Place
- Emory Place Three
- Enchanted Bay
- Enchanted Bay Sub
- Englewood Heights Add
- Englewood Heights Addition
- Erie Hill Place Add
- Esquivel Dorothy L Add
- Estancia
- Estates & Villas At Fossil Crk
- Everman Park South Add
- Ewing Add
- F&S
- Factory Place
- Factory Place Add
- Fair Havens Add
- Fairmount Add
- Fairway Meadows Add
- Fairways at Champion Circle
- Fairways of Champion Circle
- Fairways Of Fossil Creek The
- Falcon Ridge
- Farmer, James D Survey . Abstract #1975
- Fellowship Add
- Field-Welch Division
- Fields Hillside Add
- Fishburn Place Add
- Fleming Pointe
- Flenwyck Add
- Forest Park Add
- Forest Park Place Sub
- Forest Park Tower Condo
- Fort Worth
- FORT WORTH HOMELAND ADDITION
- Fort Worth Original Town
- Forty Oaks Add
- Fossil Creek
- Fossil Creek Estates Add
- Fossil Crk Ph 4 Add
- Fossil Crk Ph II
- Fossil Hill Estates
- Fossil Park Add
- Fossil Park Estates
- Fostepco Heights
- Fostepco Heights Add
- Foster Rev Bellaire Heights Add
- Fountain Royale Orleans W
- Fox Run Add
- Frisco Add
- Frisco Heights
- Frisco Heights Add
- FRISCO HEIGHTS ADDITION
- Frisco Railroad Add
- Garden Spgs Add
- Garden Springs
- George A C Sub Sunshine Hill
- Gilstrap M L Add
- Giverny Add
- Glen Mills Village
- Glen Park Add
- Glencrest Add
- Glencrest North Add
- Gleneagles Add
- Glennwood Addition
- Glenwood
- Glenwood Add
- GLENWOOD ADDITION
- Glenwyck
- Gold Hill
- Golden Gate Add
- Golden Triangle Professional P
- Golden Triangle Professional Park
- Golf Hill Add
- Golf Hill Addition
- Graham Park Add
- Grainger 1st Add
- Gramercy Place Add
- gramercy place addition
- Graves & Mcdaniels #1 Sub
- Green Hill Add
- Green Hill Edition
- Green Meadow Park Add
- Greenbriar Add
- Greenfield Acres Add
- Greenway Place Add
- Greenwood Sub #1
- Greenwood Sub #2
- Greenwood Sub #3
- Grove Hill Add
- Gw Coonrod Surv Abs #291
- H Garcia Surv Abs #564
- Haines Place Add
- Hall, A S Addition, Block 13, Lot 7
- Hallbrook Add
- Hallmark Add
- Hamlet Add
- Hampton
- Handley
- Handley Heights Add
- Handley Heights South Add
- Handley Original Town
- Hanna Ranch
- Harbour View Estates
- Harbour View Estates Add
- Harlem Gardens
- Harlem Gardens Add
- Harlem Hills Add
- Harman Ranch
- Harmon Business Park
- Harmon Industrial Condos
- Harriet Creek Ranch Ph 1
- Harriet Creek Ranch Ph 2
- Harriet Creek Ranch Ph 3
- Harriet Creek Ranch Ph 4
- Harris B Sub
- HARRIS, B SUBDIVISION
- Harrison James Sub
- Hart T B Sub
- Harvest Ridge Add
- Hatcher, S A Survey
- Havenwood Golf Villas
- Hawthorne Mdws
- Hawthorne Mdws Add
- Hawthorne Meadows
- Heather Mdws
- Heights Condo The
- Helm D M Add
- Hemphill Lamar Add
- Hencken Ranch
- Hencken Ranch Estates
- HERITAGE
- Heritage Add
- Heritage Addition
- HERITAGE ADDITION-FORT WORTH
- Heritage Church of Christ
- Heritage Glen Add
- Heritage Glenn- Fort Worth Add
- Heritage Hill Sub
- Heritage North Add
- Hi Mount Add
- Hi-Mount
- Hicks Airfield
- Hidden Meadows Add
- Hideaway Acres
- Hietts Indust Add
- Highland Hills
- Highland Hills Add
- Highland Hills West Add
- Highland Homes
- Highland Homes Add
- Highland Park
- Highland Park Add
- HIGHLAND TERRACE
- Highland Terrace Add
- Highlands at Chapel Creek
- Highlands To Glenwood Add
- Highpoint Hill
- Highpoint Hill Ph I
- Hightower Sub
- Highwoods
- Hill Add
- Hill Top Acres Add
- Hillcrest Add
- Hills of Gilmore Creek
- HILLS OF LAKE COUNTRY
- Hills Of Windridge The
- Hillsborough
- Hilltop Park Add
- Hinton Sub
- Historic Southside
- HISTORIC STOP SIX
- Hollow Hills Add
- Holloway Add
- Holloway Addition
- Hollowbrook Add
- Hollywood Hills Add
- Homeland Add
- Homewood Add
- Horrell Add
- Horse Shoe Hills Add
- Houston Place Lofts Condo
- Howard W R Add
- Howard W R Addition
- Ht Boydston Surv Abs #170
- Hubbard Highlands Add
- Hulen Bend
- Hulen Bend Add
- Hulen Bend Estates Add
- Hulen Estates Add
- Hulen Meadow Add
- Hulen Meadow Addition
- Hulen Meadows Addition
- Hulen Tr
- Hulen Tr Ph 1 B
- Hulen Trails
- Hulen Trails Classic 50
- Hulen Trails Elements
- Hulen Trls Ph 1
- Hunters B E Sub
- Hunters Field
- Huntington Estates
- HUNTINGTON VILLAGE
- Huntington Village Add
- HUNTINGTON VILLAGE ADDITION
- Huntington Village Ph III Add
- Hyde Estates Add
- Hyde Jennings Subdivison
- Hyde Park
- Hyde Park Add
- Hyde-Jennings Sub
- HYDE-JENNINGS SUBDIVISION
- Imperial Terrace Condo
- Indian Creek #1 Condo
- Indian Creek Condo
- Indian Crk #1 Condo
- Indian Crk #2 Condo
- Innisbrook Place
- Innisbrook Place Ph 11
- J M Steiner Surv Abst 1471
- J Rendon Surv Abs #1263
- J Wilcox Abs 39
- j Wilcox Surv Abs
- Jackson & Ward
- Jackson B Add
- Jacob Wilcox
- Jacob Wilcox Surv Abs #1716
- James A Glenn
- JC Bates
- Jean Hills Add
- Jennings South Add
- Jenson Oaks Add
- Jinkens Heights
- Jinkens Heights Add
- John C Ryan South
- John Korticky Surv Abs #915
- John Little Surv Abs 958
- John Watson
- Jones Court Add
- Jose Chirino Survey
- Joshua Ellis
- Julia Martin Sub
- Karrens Diamond Hill Add
- Keller Crossing
- Keller Crossing – D.R. Horton
- Keller Crossing-D.R. Horton
- Keller W S Add
- Keller-Hicks
- Kelley
- Kelley Tr
- Kelley Tract
- Kellis Park Add
- KH
- King Sub
- Kings Trail Add
- Kingsbrook Estates
- Kingspoint
- Kingspoint Ph 3
- Kingsridge Add
- Krause A Sub
- Krause Paul Add
- La Cantera
- La Cantera West
- La Canterra West
- La Frontera
- Lacy Survey
- Ladera Tavolo Park
- Ladera Tavolo Park Condos
- LAGO VISTA AT BONDS RANCH
- Lago Vista At Bonds Ranch Add
- Lake Country Estates
- Lake Country Estates Add
- Lake Country Place Add
- Lake Country Secret Harbour
- Lake Country Villas
- Lake Crest Estate #1
- Lake Parc Village
- Lake Parc Vlg
- lake point
- Lake Shore Acres Add
- Lake Vista Estates
- Lake Vista Ranch
- Lake Worth Leases
- Lake Worth Leases Add
- Lakepointe
- Lakeridge Ranches
- Lakes at River Trls East
- Lakes of River Trails
- Lakes Of River Trails Add
- Lakes of River trails east
- Lakes Of River Trails South
- Lakes of River Trls East
- Lakes River Trls East Ph 16
- Lakeview Add
- LAKEVIEW ADDITION
- Lakeview North Add
- Lamp Lighter Village Add
- Landing Add
- Landing Add, The Condo
- Landing at Creekside
- Landing at Creekside Ph 2
- Las Brisas
- Las Brisas Sub
- LASATER
- Lasater Add
- Lasater Addition
- LASATER RANCH
- LASATER RANCH – FTW BLOCK 11 LOT 1
- Lasater Ranch Ph 1
- Lasater Ranch Ph 2
- Lawn Place Add
- Lawn Terrace Add
- Lazy H Add
- Le Bijou Condo
- Lee Rays Place
- Legacy Pointe
- Legacy Square Add
- Legacy Village Add
- LEGACY VILLAGE ADDITION
- Legacy West Add
- Legacy West Addition
- Lesters Sub
- Lewis Moore Survey
- Lexington Square Twnhms Add
- Liberty Crossing
- Liberty Trails Ph 5
- Liberty Xing
- Ligon W L Sub
- Lincolnshire Add
- Linda Vista Estates Add
- Linn William Survey
- Linwood
- Linwood Add
- LINWOOD ADDITION
- Linwood Quarter
- Linwood Quarters
- Litsey Creek
- Little Chapel Creek Add
- LITTLE, HIRAM SURVEY
- LITTLE, JOHN SURVEY
- Live Oak Creek
- Live Oak Crk
- Live Oak Crk Add
- Live Oak Crk Ph 3b
- Live Oak Crk Ph 4
- Llano Springs
- Llano Springs Classic Series
- Logan Square
- Lonestar at Liberty Trails
- Longhorn Estates
- Lost Creek
- Lost Creek Add
- Lost Creek Addition
- Lost Creek Ranch North Add
- Lost Creek Ranch North II
- Lost Creek Ranch West Add
- Lost Crk North
- Lost Spurs Add
- Lowery Acres Add
- Lowery Oaks
- Lowery Park
- Luther Quadrangle Add
- M Munroe Surv Abs # 1865
- M. Garcia Survey Abs #564
- Madero
- Madero Ph 3
- Madero Ph 5
- Mandlak Sub
- Manning L V Sub
- Marine Creek Estates Add
- Marine Creek Estates Addition
- Marine Creek Heights Add
- Marine Creek Hills
- Marine Creek Hills Add
- Marine Creek Meadows Add
- Marine Creek Ranch
- Marine Creek Ranch Add
- Marine Creek Ranch Addition
- Marks Henry
- Marks Henry Sub
- MARKUM RANCH ESTATES
- Marler Sub
- Martin & Moodie Sub
- Martindale Add
- Martindale Addition
- Mary’s Crk Ests
- Marys Creek Estates Sub
- Masonic Home #1 Add
- Masonic Home #2 Add
- Matador Add
- Matador Ranch Add
- Mattisons Add
- Mattisons Addition
- Maxwell Sub
- Mayfield James Add
- Mays Clyde W
- Mc Anulty & Nesbitt Sub Evans
- Mc Anulty & Nye Sub
- Mc Cart Add
- Mc Clesky Wagner Add
- Mc Connell Add
- Mc Corstin W N Add
- Mc Gee A S Sub
- Mc Pherson Ranch
- McCarts to Hi Mount
- Mcclellans Sub
- McLemore
- McLemore, ATKIN SURVEY ABSTRACT 1056 TRACT 24A
- McPherson Village
- Mcpherson Village Add
- Meacham-Brants
- Meacham-Brants Add
- Meadow creek
- Meadow Creek #1
- Meadow Creek #1 Add
- Meadow Creek #1 Addition
- Meadow Creek Add 01
- Meadow Creek South Add
- Meadow Park
- MEADOW PARK ADDN-WHT STLMENT
- Meadowbrook Acres Add
- Meadowbrook Add
- Meadowbrook East Add
- MEADOWBROOK ESTATE
- Meadowbrook Estates Add
- Meadowbrook Hills Add
- meadowbrook hills addition
- Meadowbrook Hills Chimney Wood
- Meadowbrook Park #2 Add Ft Wrth
- Meadowbrook Place
- Meadowcrest
- Meadowmere Add
- Meadowood Village Add
- MEADOWOOD VILLAGE ADDITION
- Meadows Add
- MEADOWS WEST
- Meadows West Add
- Meadowview addition
- Melody Hills Add
- Melody Oaks Add
- Merrimac Townhomes
- Merwick Add
- Midwest Estates Add
- Miles Nancy Sub
- Mira Vista Add
- Mission Ridge Estates
- MISTLETOE HEIGHTS
- Mistletoe Heights Add
- MISTLETOE HEIGHTS ADDN-FTW
- Mistletoe Sangamo Add
- MISTLETOE SANGAMO ADDITION
- Mitchell Heights Sub
- Mockingbird Estates Add
- Mockingbird Estates Townhomes
- Monarch Crossing
- Monarch Hills Add
- Montgomery & Pyle Sub
- Montgomery Plaza Residential C
- Monticello Add
- Monticello Park
- Monticello Park Condo
- Montrachet
- Montrachet Add
- Montserrat
- Moodie & Evans #1 Sub
- Moodie & Evans #2 Subdivision
- Moodie S O Sub
- Moody J M Sub
- Morgan Creek
- Morgan Heights Sub
- Morningside Park Add
- Morningstar
- Morris Estates
- Mount Vernon Heights Add
- Murphy F W Add
- Murray Hill Add
- Mustang Creek Estates
- n: Lake Worth Leases Add
- Neeil P at Burnett Park Condo
- Neighborhood Action Apts Sub
- NETTLES, L G SUBDIVISION
- Newberry Point
- Newport Village At Trinity
- No
- Noe Add
- NOE ADDITION
- North Beach Street
- North Beverly Hills Estates
- North Fork Estates Add
- North Fort Worth
- North Jarvis Heights
- North Meadowbrook Estates
- North Riverside Apts Inc
- North Riverside Estates
- Northbrook Ph 1 & 2 Ftw
- Northbrook Ph I
- Northcrest
- Northcut Sub
- Northpoint
- Northpointe
- Northpointe Cottage
- Northpointe Ph 1b
- Northpointe Ph 2
- Northpointe Ph 4
- Northpointe Ph 5
- Northpointe Ph 6
- Northpointe Ph 7
- Northstar
- Northview Add
- Northwest Bent Creek Add
- Nothpointe
- Ntmv Ph 2 Bldg 1
- O Donnels Add Tr 2
- Oak Court Add
- Oak Creek Trails
- Oak Creek Trails Ph 3b
- Oak Creek Trails Pha
- Oak Creek Trails, Phase 1
- Oak Forest Add
- Oak Grove Add
- Oak Lane Sub
- Oak Lawn
- Oak Rdg Ph 2
- Oak Ridge
- Oakbend Condo Bldg 12
- Oakbend Condo Bldg 5
- Oakhurst
- Oakhurst Add
- Oakhurst Addition
- Oakland Place
- Oaklawn Add
- Oakridge Terrace
- Oakwood Heights
- One Montgomery Plaza
- One Montgomery Plaza Residence Condo
- Orchard Village
- Orchard Vlg
- Orchard Vlg Ph 2
- Orchards The
- Original Town Handley
- Overlook
- Overlook, The
- Overton Park Add
- Overton South
- Overton South Add
- Overton West & Overton Park
- Overton West Add
- Overton Woods
- Overton Woods Add
- Overton Woods Addition
- Oxenfree West Oak
- P H AHLER
- Pace-Alsbury Village Add
- Page Cos East Side Add
- Page R M Add
- Painted Oaks
- Palmilla Spgs
- Palmilla Springs
- Palmnold Meadows
- Pamilla Springs
- Panther Heights Add
- PARK
- Park at Fossil Crk
- Park Bend Estates Add
- Park Creek Estates Summerfields
- Park Glen
- Park Glen Add
- Park Glen Addition
- Park Meadow
- Park Palisades Add
- Park Place Add
- Park View
- Park Vista Bus Park Add
- Park Vista Commons Bldg B
- Park Vista Plaza
- Parkhill Add
- Parks At Boat Club The
- Parks Boat Clob
- PARKS OF DEER CREECK
- Parks Of Deer Creek Add
- Parks of Deer Creek Addition
- Parkside East
- Parkview Estates
- Parkview Hills
- Parkview Hills Ph 5 Sec A & B
- Parkview Hills Ph 5 Secs A & B
- Parkview Hills Ph 6
- Parkway Hill Add
- Parkwood East
- Parkwood Estates
- Parkwood Estates Add
- Parkwood Hill Add
- Parr Trust
- Peaceful Acres
- PERRY, DANIEL SURVEY Abstract 1242 Tract 1A & 1G
- Peterson
- Pettys James E Sub
- PH AHLER
- Pheasant Xing
- Pine Mdws
- Pine Meadows
- Pine Tree Estates #2
- Pinion Park
- Pioneer Point
- Pioneer Point Add
- Pleasant Glade Add
- Pollard Estates
- Polytechnic
- Polytechnic Heights Add
- Polytechnic Heights Addition subdivision
- Popes Sub
- POPES SUBDIVISION
- Porter Estates
- Post Oak Village Add
- Poynter Crossing Add
- Praire Hill
- Prairie Hills
- Prairie Hills Addition
- Prairie Ridge Estates Add
- Presidio Village
- Presidio Village South
- Presidio West
- Primrose Crossing
- Primrose Crossing Ph 4
- Primrose Xing
- Primrose Xing Add
- Primrose Xing Ph 1d
- Primrose Xing Ph 4
- Primrose Xing Ph 5
- Primrose Xing Ph 6
- Prospect Heights Add
- Pruitt Sub
- PURVIS, J L SURVEY ABSTRACT 1228 TRACT 10A
- Pyramid Acres
- Pyramid Acres Sub
- Pyramid Acres Subdivision
- Quail Grove Add
- QUAIL GROVE ADDITION
- Quail Ridge Estates Add
- Quail Ridge Estates Addition
- Quails Grove
- Quarry
- Quarry The
- Quarter Horse Estates
- Quarter Horse Estates Add
- QUEENSBOROUGH
- Queensborough Add
- Queensborough Heights Add
- Queensborough Heights Addition
- R. B. Bishops
- Raef Sub
- Rainbow Ridge
- Rainbow Ridge Add
- Rainbow Ridge Addition
- RALL RANCH
- Rall Ranch Add
- Ramey Place Add
- RAMEY, ROBERT R SURVEY ABSTARACT 1341 TRACT 5C
- Ranch at Duck Creek
- Ranch At Eagle Mountain Add
- Ranch Duck Crk
- Ranches East Add
- Ranchette Estates
- Rancho Canyon
- Ranchoaks Add
- Red Eagle Place
- Regency Place Add
- REMINGTON POINT
- Remington Point Add
- Remuda Ranch Estates
- RENDON, JOAQUIN SURVEY
- Residences at Museum Place Condos
- Residences Museum Place Condo
- Residences of Museum Place
- Residences of Museum Place Condos
- Resort On Eagle Mountain Lake
- Resort on Eagle Mountain Lake Add
- Retreat at Fossil Creek
- RETREAT AT FOSSIL creek CREEK
- Retreat Fossil Crk
- Revelstoke
- Revelstoke Add
- Revelstoke Sec 1b
- Richmond Add
- RICHMOND ADDN
- Ridge
- Ridgecrest Add
- Ridgeview Estates Add
- Ridgeview Farms
- Ridgeview Farms Ph 6
- Ridgewest Twnhms
- Ridglea Add
- Ridglea Country Club Estate
- Ridglea Country Club Estates
- RIDGLEA EST CONDO
- Ridglea Estate Condo
- Ridglea Hills Add
- Ridglea North Add
- Ridglea Park Add
- Ridglea Place
- Ridglea South Add
- Ridglea West Add
- Ridgmar Add
- Ridgmar Crossroads Condo
- Risinger Court Condos
- Rivel Trails Add
- River Bend Estates
- River Bend Villas Condo
- River Bend Villas Condominium
- River District
- River Elm
- River Gardens
- River Gardens Add
- River Park Place
- RIVER TRAILS
- River Trails Add
- River’s Edge
- River’s Edge
- Rivercrest
- Rivercrest Add
- Rivercrest Addition
- Rivers Edge
- Rivers Edge Ph 1
- Rivers Edge Ph 2
- Riverside Add
- Riverside Estates
- Riverside Gardens Add
- Riverside Place
- Robert Bissett Surv Abs #192
- Robert R Ramey Surv Abs #1341
- Robertson-Hunter Add
- Rock Creek Ranch
- Rocky Creek Crossing
- Rollie Estates
- Rolling Hills Add
- Rolling Mdws East
- Rolling Meadows
- Rolling Meadows East
- Rolling Meadows Fort Worth
- Rollins Hills Estates
- Rose C R Add
- Rose Hill Add
- Rosedale Add
- Rosedale Park Add
- Roseland Add
- Rosemary Rdg
- Rosemary Ridge
- Rosemary Ridge Add
- Rosen Heights First Filing
- Rosen Heights Second Filing
- Rosewood at Beltmill
- Royal Crest Add
- Royale Orleans
- Royale Orleans East Condo
- Royale Orleans North Condo
- Royale Orleans South
- Royale Orleans South Condo
- Rufner Sub
- Rusty Dell Annex Sub
- Ryan & Pruitt
- Ryan J C Sub
- Ryan Place Add
- Ryan Place Addition
- Ryan South
- Ryan South John C Add
- Ryan South John C Addition
- Ryan Southeast Add
- Ryan Southeast Addition
- Ryanwood Add
- Ryanwood North Add
- S O 7 Add
- S P Loving Surv Ab 943
- Sabine Place Add
- Sabre Add
- Saint Augustine Add
- Samora Bernadino Survey Abstr
- Samora, Bernadino Survey
- Samuels Unrec Add
- Samuels Unrecorded Addn
- San Roe Add
- Sandage Condo
- Sanderos
- Sandshell Heights Add
- Sandstrom Ranch
- Sandy Acres Add
- Sandy Acres Addition
- Sandy Ridge Estates
- Sandybrook Add
- Sanguinet Condo Apts Ph 1
- SANSOM PARK BROADVIEW ACRES
- Santa Fe Enclave
- Saratoga
- Savanna Estates Add
- Scenery Hill
- Scenery Hill Add
- Scenery Hill Park Add
- Scenic Shores Neighborhood Association
- Scenic Village Add
- Schaumburg Loft Condominimum
- Seibold Add
- Seminary Hill Add
- Sendera Rach East P
- Sendera Ranch
- Sendera Ranch East
- Sendera Ranch East P
- Sendera Ranch East Ph 10
- Sendera Ranch East Ph 12
- Sendera Ranch East Ph 13b
- Sendera Ranch East Ph 16
- Sendera Ranch East Ph 17
- Sendera Ranch East Ph 18
- Sendera Ranch East Ph 20
- Sendera Ranch East Ph 22
- Sendera Ranch East Ph 23
- Sendera Ranch East Ph 24
- Sendera Ranch East Ph 9
- Sendera Ranch East Ph Vii-1
- Sendera Ranch East Ph Viii Sec
- Sendera Ranch East Ph-14
- Sendera Ranch East Ph-21
- Sendera Ranch East Ph-23
- Sendera Ranch East-Ph 16
- Sendera Ranch Ph 3-3d
- Sendera Ranch Ph III Sec 2c
- Sendera Ranch Ph Iii-3b
- Sendera Ranch Ph-21
- Settlement Plaza Add
- Seven Oaks
- Seventeen Lakes
- Seventeen Lakes Add
- Seville Sub
- Shadow Glen Estates
- SHADYDELL
- Shaw Clark Add
- Shaw Heights
- Shaw Heights Add
- Shelby County School Land Surv Abstract 1375
- Shelmire Sub
- Sierra Vista Add
- Silver Creek Corner Add
- Silver Lake Add
- Silver Ridge Add
- Sisk Heights Add
- Skyline Ranch
- Skyline Ranch Ph 4 Sec 1
- Skyline Terrace Add
- Skyrock Condominiums
- Smith J S Add
- Smith,J S Addition
- Snowden John A Sub
- South Brook Add
- South Creek 1st Filing Add
- South Creek Add
- South Eastlawn Add
- South Fork Add
- South Fork Townhouse Addition
- South Fort Worth
- South Hemphill Heights
- South Hemphill Heights Add
- South Hills
- South Hills Add
- SOUTH HILLS ADDITION
- South Meadow Add
- South Oak Grove Estates Add
- South Ridge Add
- South Seminary Add
- south Seminary addition
- South Side Add
- South Side Addition
- South Summit Heights Add
- Southcrest Add
- Southgate
- Southgate Add
- Southgate Add Ft Worth
- SOUTHLAND
- Southland Sub
- Southland Terrace Add
- Southport Add
- Southwayside
- Southwest Christian Church Add
- Southwest Hills Add
- Sp Loving Surv Abs # 943
- Spanish Gardens Condo
- Spencer
- Spencer Add
- Spring Ranch Add
- Spring Ranch Estates Add
- Springdale Add
- Stallcup Add
- Stallcup Addition
- Stallcups Fifth Add
- STALLCUPS FIFTH ADDITION
- Stallcups Third Filing Add
- Stalvey Sub
- Stanford Sons Addition
- Steadman Farm
- Steadman Farms
- Stepp Sub
- STERLING CREEK ADDITION
- Stewart Add
- Stith Add
- Stone Creek Add
- Stone Creek Addition
- Stone Creek Ranch
- Stone Crk Ranch Ph 6a
- Stone Crk Ranch Ph 6b
- Stone Crk Ranch Ph IV
- Stone Hollow Add
- Stone Manor Add
- Stone Meadow
- Stone Meadow Add
- Stonegate Addition
- Stonegate Mobile Home Park #3
- Stoneglen At Fossil Creek Add
- Strickland Add
- Summer Creek Add
- Summer Creek Meadows Add
- SUMMER CREEK RANCH
- Summer Creek Ranch Add
- Summer Creek South Add
- Summer Crest
- Summer Trails
- Summerbrook Add
- Summerfields
- Summerfields Add
- Summerfields Addistion
- SUMMERFIELDS ADDITION
- Summerfields Amenities Add
- Summerfields East Add
- Sun Valley Add
- Sundance Spgs Add
- Sundown Park 4th Filing Add
- Sundown Park Add
- Sunny Creek
- Sunnycreek
- Sunrise Add
- Sunrise Addition
- Sunrise Park Add
- Sunset Acres
- Sunset Acres Add
- Sunset Heights Add
- Sunset Heights South
- Sunset Heights South Add
- Sunset Hills Add
- Sunset Oaks Add
- Sunset Pointe Ph 2
- Sunset Ridge Add
- Sutter’s Mill
- Sycamore Heights
- Sycamore Heights Annex
- Sycamore Landing
- Sycamore Lndg
- Sycamore Pointe Addition
- Sylvan Heights Add
- Sylvania 2nd Filing Add
- Sylvania Park Add
- T J Bailey Surv Abs # 154
- Talon Hill
- Talon Hill Add
- Talon Hills
- Talon Hills – Phase 3
- Talon Hills Phase 4
- Tandy Add
- Tandy East Add
- Tanglewood Add
- Tanglewood Addition
- TANGLEWOOD ADDITION-FORT WORTH
- Tanglewood Park
- Tarrant Add
- Tarrant Park Vista Add
- Tarrant Town Of Add
- TARRANT, TOWN OF ADDITION
- Tavolo Park
- TAVOLO PARK BLOCK 20 LOT 4
- Tavolo Park Ph 4
- Te Lewis Place
- Tehama Bluffs
- Tehama Ridge
- Tejas Trails Add
- Ten Mile Bridge
- Ten Mile Bridge Add
- Terra Trace
- Terrace Landing
- Terrace Lndg
- Terrace Lndgs
- Tesoro at Chisholm Trail Ranch
- Texas & Pacific Lofts
- Texas & Pacific Lofts Condo
- Texstar Cove Add
- The Parkland
- The Quarry neighborhood
- The Resort
- The Resort at Eagle Mountain Lake
- The Resort on Eagle Mountain
- The Strand
- The Villas At Barber Creek
- Thielman Sub
- Thomas Crossing Add
- thomas j survey
- Tiara Ranch
- Tidballs Sub
- Tiffany Gardens Add
- Timber Wolf Valley
- Timberland Ft Worth
- Tkacz Add
- Toll Brothers at Walsh
- Tower Residential Condo 1
- Tower Residential Condo I
- Tower Residential I Condo
- Tower Residential II Condo
- Townes Landing – D.R. Horton
- Trace Ridge Add
- Trail Lake Estates Add
- Trail Ridge Estates
- Trailhead at Chisholm Trail Ranch
- Trails at Waterside
- Trails Elizabeth Crk
- Trails Fossil Creek
- Trails Fossil Crk
- Trails Marine Creek
- Trails of Elizabeth Creek
- Trails of Elizabeth Creek Ph 4
- Trails Of Elizabeth Creek Phase 4
- TRAILS OF ELIZABETH CREEK PHASE 5
- Trails of Elizabeth Crk
- Trails of Fossil Creek
- Trails Of Fossil Creek Ph I
- TRAILS OF FOSSIL CREEK PH I BLOCK HH LOT 27
- Trails of Fossil Creek, Ph 4
- Trails of Marine Creek
- Trails Of Marine Creek The
- Trails Of Willow Creek The
- Trails-Fossil Crk
- Travis Ave
- Treetop
- Trentman City Add
- TRENTMAN REVISION
- Triangle Estates Add
- Trinity Addition
- Trinity Addn
- Trinity Bluff
- Trinity Gardens Add
- Trinity Heights
- Trinity Heights Crowley ISD
- Trinity Heights Ft Worth ISD
- Trinity Pks
- Trinity Place Ft Worth
- True Acres Add
- Trueland
- Trueland Add
- Tucker Add
- Tung Add
- Turner Sub
- Turners Sub
- Turtle Creek Ranch Add
- Tuscany Valley Estates
- Twin Mills Add
- Twin Mills Addition
- Union Depot Add
- Union Depot Addition
- University Hill Add
- University Park Condo
- University Place Add
- Upland Add
- Urban Meadows Add
- Valley Brook
- Valley Ridge
- Valley Ridge Add
- Van Zandt Hillside Add
- Van Zandt K M Add
- Vann
- Vann Tr
- Vann Tract
- Ven Ken Indust Park Add
- Ventana
- Ventana Ph 2
- Ventana Ph 4
- VENTANA PH 6A-2
- Ventana Ph II
- Versailles Condo
- Vickery Acres Add
- Vickery Garden Tracts Add
- Vickery Southeast Add
- Victory Heights Add
- VICTORY HEIGHTS ADDITION
- View Park Add
- Villa De Leon Condo
- Villages – Eagle Mountain
- Villages at Edgecliff
- Villages Eagle Mountain
- Villages Of Chisholm Ridge Th
- Villages Of Crawford Farms Th
- Villages of Eagle Mountain
- Villages Of Marine Creek The
- Villages Of Stonegate Add
- Villages Of Sunset Pointe
- Villages Of Woodland Spgs
- Villages Of Woodland Spgs W
- Villages Of Woodland Springs
- Villages-Eagle Mountain
- Villas At Fossil Creek
- Villas On The Bluff Condo
- Vineyards At Heritage The
- Vista Greens
- Vista Meadows Add
- Vista Meadows North
- Vista Ranch
- Vista Ridge Add
- Vista West
- Vista West II
- Walker Josiah Survey
- Walkers Add
- Wallenburg Place Add
- Walsh
- Walsh Ranch
- Walsh Ranch – Quail Valley
- Walsh Ranch 60
- Walsh Ranch 70
- Walsh Ranch Quail
- Walsh Ranch Quail Valley
- Walsh Ranch Quail Vly
- Walsh Ranch Quail Vly Ph 1c
- Walsh Ranch-Quail Vly
- Walsh Ranch-Quail Vly Ph 2b
- Walsh: Townhomes – The Patios
- Washington Heights Add
- Waterbend South
- Waterchase Estates Add
- Waterfront Add
- Waterfront Enchanted Bay Fwy
- Watersbend
- Watersbend 10
- Watersbend North
- Watersbend North Add
- Watersbend North Ph 6
- watersbend north ph6
- Watersbend Ph 10
- Watersbend South
- Watersbend South Ph 2a
- Waterseend North
- Watson Creek Estates
- Waverly Park Add
- Weatherford P R Add
- Weatherford PR Addition
- Weatherfore P R
- WEDGE HILLS
- Wedgewood
- Wedgewood Addition
- Wedgwood
- Wedgwood Add
- Wedgwood Addition
- Weisenberger Add
- Weisenberger Addition
- Weisenberger Sunny Hill Garden
- Weisenberger Sunny Hill Gdn Ad
- Welborn View Add
- Wellington
- Wellington 2 Ph 1 North Prcl 1
- Wellington 50’s
- Wellington Add
- Wellington Area 1 South Ph 1
- Wellington Ph 1 Area 1 South
- Wellington Point
- Wesleyan Heights Add
- Wesleyan Hills
- West Fork Add
- West Fork Ranch
- West Fork Ranch 50’s
- West Ft Worth Land Co
- West Morningside Add
- WEST OAKHURST
- West Oakhurst Add
- West Shore
- West Square
- West Square Watermill
- West Vickery Heights
- Westcliff Add
- Western Hills
- Western Hills Add
- Western Hills Addition
- Western Meadows Add
- Western Rdg
- Western Station
- Western Trails Ft Worth
- Westford Addition
- Westhaven
- Westland Acres Add
- Westover Acres
- Westpoint Add
- Westpoint Add Ft Worth
- WESTPOINT ADDITION FT WORTH
- Westpoint Village
- Westview Add
- Westview Condos
- Westwood
- Westwood Add
- WESTWOOD ADDITION
- Whilshire Addition
- White Lake Hills Add
- Whitehall #2 Sub
- Whites Sub
- Whitmore Courts
- Whitmore Courts Add
- Whitney Meadows Add
- WHITNEY MEADOWS ADDITION
- Wilcox, Jacob Survey #42
- Wildflower Ranch
- Wildflower Ranch – Elite Collection
- Wildflower Ranch – Select Collection
- Wildflower Ranch 60-65
- Wilkes Estate Edition
- Wilkes Estates Add
- Willi Walter #4 Add
- Willow Creek Add
- Willow Creek Add.
- Willow Lake Add
- Willow Ridge Estates
- Willow Spgs Add
- Willow Spgs Ranch
- Willow Spring Add
- Willow Wood Add
- Wilshire Add
- Wilshire Addition
- Wilshire Valley
- Winchester Park
- Windsor Park Sub
- Windsor Place Add
- Winston Add
- Wj Orrick & T J Bailey
- WOLCOTT, A J
- Wolfe F E & Mamie Add
- Woodhaven
- Woodhaven Cntry Club Estates
- Woodhaven Cntry Club Golf Crse
- Woodhaven Condo
- Woodhaven Country Club Estates
- Woodhaven Heights Add
- Woodhaven Hills Condo II
- Woodhaven Hills Condos 2 Bldg
- Woodlake Add
- Woodland Meadows
- Woodland Springs
- Woodlands Of Bear Creek
- Woodmont Add
- Woods Add
- Woodward Sub
- Worth Heights Add
- Worth Hills Add
- Yes
- Young Ella Add
Market Summary
Current real estate data for Single Family in Fort Worth as of Apr 28, 2026
4,702
Single Family Listed
74
Avg DOM
200
Avg $ / SqFt
$467,242
Avg List Price
Property Summary
- Located in the Korn Add subdivision, 720 Alsue Street Fort Worth TX is a Single Family for sale in Fort Worth, TX, 76140. It is listed for $297,000 and features 3 beds, 2 baths, and has approximately 2,110 square feet of living space, and was originally constructed in 1965. The current price per square foot is $141. The average price per square foot for Single Family listings in Fort Worth is $200. The average listing price for Single Family in Fort Worth is $467,242. To schedule a showing of MLS#21249035 at 720 Alsue Street in Fort Worth, TX, contact your Spencer TX Real Estate, LLC agent at (817) 937-8532.
Similar Listings Nearby

720 Alsue Street
Fort Worth, TX




























