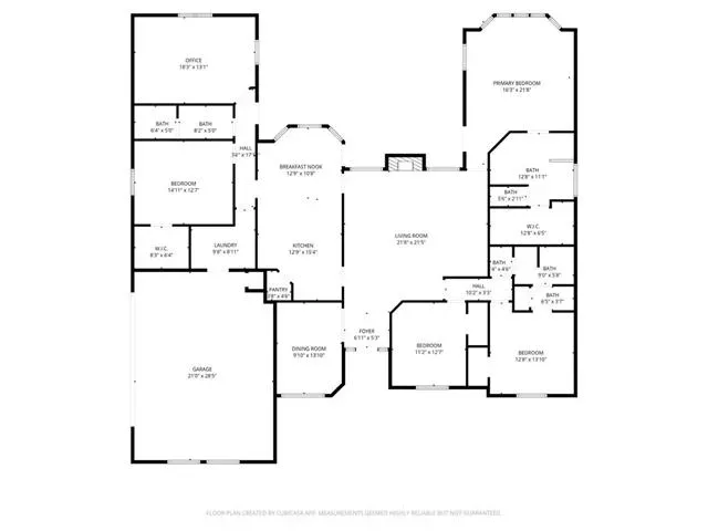
Welcome home to this well-maintained one-story home on a spacious interior lot. The large living area is the heart of the home, opening to the dining and kitchen and flowing through a split-bedroom floorplan. It features a gas fireplace and overlooks the back patio and pool. The kitchen offers granite countertops, stainless steel appliances, double ovens, gas cooktop, island, ample cabinet storage, and a walk-in pantry. Multiple dining areas provide versatility, along with a dedicated office or second living area featuring built-ins and natural light from the side yard.
The primary suite includes direct backyard access and a large sitting area. The primary bath features double sinks, a separate shower, a spacious walk-in closet, and a large vanity with built-in storage and integrated hamper space.
The backyard is designed for year-round enjoyment and offers a large covered patio, in-ground gunite pool with diving board and auto-fill capability, misting system, mature landscaping, and plenty of grass space. Additional features include solar screens, easy attic access with finished decking for storage, and an oversized side-entry garage. Located in an established neighborhood with a community park and convenient access to several major retail areas.
The primary suite includes direct backyard access and a large sitting area. The primary bath features double sinks, a separate shower, a spacious walk-in closet, and a large vanity with built-in storage and integrated hamper space.
The backyard is designed for year-round enjoyment and offers a large covered patio, in-ground gunite pool with diving board and auto-fill capability, misting system, mature landscaping, and plenty of grass space. Additional features include solar screens, easy attic access with finished decking for storage, and an oversized side-entry garage. Located in an established neighborhood with a community park and convenient access to several major retail areas.
Property Details
Price:
$680,000
MLS #:
21240034
Status:
Active
Beds:
4
Baths:
3
Type:
Single Family
Subtype:
Single Family Residence
Subdivision:
Waterford Park Estates Ph 1
Listed Date:
Apr 17, 2026
Finished Sq Ft:
2,738
Lot Size:
15,367 sqft / 0.35 acres (approx)
Year Built:
1996
See this Listing
Schools
School District:
Lewisville ISD
Elementary School:
Prarie Trail
Middle School:
Lamar
High School:
Marcus
Interior
Bathrooms Full
3
Cooling
Central Air, Electric
Fireplace Features
Gas Starter, Living Room
Fireplaces Total
1
Flooring
Carpet, Ceramic Tile
Heating
Central, Natural Gas
Interior Features
Built-in Features, Decorative Lighting, Kitchen Island, Pantry, Vaulted Ceiling(s)
Number Of Living Areas
2
Exterior
Community Features
Park, Playground
Construction Materials
Brick
Exterior Features
Covered Patio/Porch, Rain Gutters, Misting System
Fencing
Wood
Garage Length
29
Garage Spaces
2
Garage Width
20
Lot Size Area
0.3528
Pool Features
Diving Board, In Ground, Outdoor Pool
Financial
Map
Community
- Address6012 Crestside Drive Flower Mound TX
- SubdivisionWaterford Park Estates Ph 1
- CityFlower Mound
- CountyDenton
- Zip Code75028
Subdivisions in Flower Mound
- A0231A J Clark
- A0399A J. EDMONSON, TR 2, .9677 ACRES, OLD DCAD TR
- Adams Estates
- Bella Strada Ph II
- Brandywine At Wellington
- Candlebrook Estates
- Cannon Add
- Canyon Falls
- Canyon Falls 70S
- Canyon Falls Ph 1
- Canyon Falls Village 6a
- Canyon Falls Vlg 12
- Cardinal Estats
- Carriage Glenn At Bridlewood
- Chateau Du Lac Ph I
- Chaucer Estates Ph 1
- Churchill Crossing Ph B
- Country Meadow Add Ph I
- Country Meadow Add Ph II
- Countryside Estate Ph 1
- Countryside Estate Ph 2
- Creek Wood Add Ph 2
- Creekside At Cross Timbers
- Dixon Estates
- Dominion Estate
- E Smith
- Fallbrook Add
- Fallbrook Addn
- Flower Mound Church Of Christ
- Flower Mound Riverwalk
- Forest Park Estates
- Franklin Hills
- Glenwick
- Glenwick Estate Ph 1
- Glenwick Estate Ph 2
- Hearthstone At Firewheel
- Hidden Valley Country Estates
- Highland Court
- Hillcrest At Wellington Ph 1
- Hillcrest At Wellington Ph 2
- Hillside Of Flower M
- Hilltop Estate Ph 1 Lewisville
- Hilltop Estate Ph 2 Lewisville
- Hilltop Estate Ph 3
- J Gibson
- J West
- Jm Ruiz
- Lake Bluff Sub
- Lake Forest Add Ph 2
- Lake Forest Garden Home Ph 1
- Lake Hill Estates
- Lakeshore Terrace
- Lakeside
- Lakeside Ph Three
- Lakeside Tower
- Lakeside Village
- Lakeside Village Phase 1
- Lakeview Estates Lewisville I
- Legends Add
- Lexington Downs At Bridlewood
- Lexington Glen
- M J Owen
- Mcgowan & Pitcock
- Mckamy Creek
- Mep & P
- Montalcino Estates Ph 1
- Montalcino Estates Ph 2
- Morriss Commons Add
- N E Thompson
- North Lake Highlands
- North Lake Highlands Sec 2
- North Shores Estate
- Oak Heights Sub
- Oaks Of Lake Forest
- Oakwood Estates Lewisville
- Ow Harris
- Parkmont Place
- Pecan Acres
- Point Noble
- Post Oak Acres
- Prairie Creek
- Prairie Creek Add Ph 2
- Ra Davidson
- Red Bud Point
- Remington Park At Bridlewood
- River Oaks Estates
- Riverside Point
- Roanoke Hills
- Royal Oaks
- Rustic Timbers Ph II
- Saddlewood Add
- Sanctuary Add
- ShadowRidge Ph 1
- Shadowridge South Ph 1
- Shady Point Acres
- Sherwood Estate III
- Sherwood Estate IV
- Southgate Ph 2
- Southpoint Addition
- Stafford Estates Ph I
- Stafford Estates Ph II
- Steeplechase at Bridlewood
- Stone Creek Add Ph 1
- Stone Creek Add Ph 2
- Stone Hill Farms
- Stone Hill Farms Ph 1, 2 Sec I
- Stone Hill Farms Retail Add
- STONE HILL FARMS RETAIL EAST ADDN
- Stone Hill Farms Sec 4 Ph I
- Stone Hill Farms Sec 4 Ph II
- Sunrise Circle Addition
- Surrey Lane Addition
- Surrey woods
- T & Prr
- Tanglewood Park Office Condomi
- The Enclaves At Chateau Du Lac
- The Estates At Tour 18
- The Estates At Tour 18 Sec 1
- The Estates At Tour 18 Sec 2
- The Estates At Tour 18 Sec 3
- The Landing
- The Peninsula At Twin Coves
- The Peninsula At Twin Coves Ad
- The Pinnacle At River Walk
- The Reserve At Creekside
- The Woods At Lake Forest
- The Woods At Wellington
- Thorn Hill Add Ph 1
- Timber Creek Park Add Ph 1
- Timber Creek Park Add Ph 2
- Timber Creek Park Add Ph 3
- Timber Creek Park Add Ph 6
- Timber Creek Park Addn Ph 3
- Timbercreek
- Timbercreek 2
- Timbercreek Comm #10b
- Timbercreek Comm #11
- Timbercreek Comm #3
- Timbercreek Comm #4
- Timbercreek Comm 10a
- Timberview Estate Ph 1
- Timberview Estates West Ph 1, 2
- Tinley Park
- Todd Add
- Towne View Estate Ph I
- Townlake Ph 4
- Townlake Ph One
- Townlake Ph Two
- Trailwood Ph 1
- Trailwood Ph II
- Twin Cove Estate
- villas at Southgate
- Villas at Southgate Ph 1
- Villas at Southgate Ph 2
- Villas of Southgate Ph 1
- Walnut Grove
- Walnut Grove Add
- Wellington Estates Ph 1b
- Wellington Estates Ph 2a
- Wellington Estates Ph 3
- Wellington Of Flower Mound Ph
- Wellington of Flower Mound Ph 7
- Westchester Flower Mound 02
- Westchester-Flower Mound 2
- Whyburn Add
- Wichita Creek Estates Ph 2
- Willow Ridge Estate
- Wilson-Freeman
- Windsor Heights At Bridlewood
- Woodlake Estates
- Woodlake Estates Ph 2
Market Summary
Current real estate data for Single Family in Flower Mound as of Apr 21, 2026
322
Single Family Listed
57
Avg DOM
331
Avg $ / SqFt
$1,344,554
Avg List Price
Property Summary
- Located in the Waterford Park Estates Ph 1 subdivision, 6012 Crestside Drive Flower Mound TX is a Single Family for sale in Flower Mound, TX, 75028. It is listed for $680,000 and features 4 beds, 3 baths, and has approximately 2,738 square feet of living space, and was originally constructed in 1996. The current price per square foot is $248. The average price per square foot for Single Family listings in Flower Mound is $331. The average listing price for Single Family in Flower Mound is $1,344,554. To schedule a showing of MLS#21240034 at 6012 Crestside Drive in Flower Mound, TX, contact your Spencer TX Real Estate, LLC agent at (817) 937-8532.
Similar Listings Nearby

6012 Crestside Drive
Flower Mound, TX









































