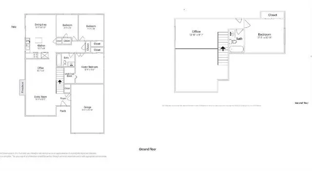
*Please submit all offers by today, Monday the 27th at 5pm* Located on a quiet cul-de-sac, this charming 1.5-story home filled with character in highly sought-after HEB ISD, offers a flexible floorplan, fresh interior paint, updated windows, and a spacious backyard. The inviting living room features vaulted ceilings &' a striking stone fireplace that serves as the focal point, along with a designated formal dining area. The kitchen includes stainless steel appliances, a built-in serving cabinet, breakfast nook, and abundant windows overlooking the covered patio and backyard. The main level offers three carpet free bedrooms, including two secondary bedrooms with a full bath, plus a primary bedroom with a private half bath. Upstairs, a versatile loft provides the perfect flex space for a game room, office, or second living area, along with an additional bedroom and full bath—ideal for guests or multi-generational living. The expansive backyard offers a plethora of opportunities for enjoyment. From picking apples and peaches off the fruit trees, to gardening, outdoor play under the mature trees or entertaining under the covered patio area, this backyard is a gem! The lg. shed provides convenient storage, keeping your tools, toys, and outdoor essentials within easy reach. Not only is this home unique but its central location is close to schools, Trailwood Park, shopping, dining, major highways, &' the DFW airport making it a home worth touring asap!
Property Details
Price:
$315,000
MLS #:
21239159
Status:
Active
Beds:
4
Baths:
2.1
Type:
Single Family
Subtype:
Single Family Residence
Subdivision:
Oak Forest Add
Listed Date:
Apr 24, 2026
Finished Sq Ft:
1,726
Lot Size:
14,026 sqft / 0.32 acres (approx)
Year Built:
1972
See this Listing
Schools
School District:
Hurst-Euless-Bedford ISD
Elementary School:
Northeules
High School:
Trinity
Interior
Bathrooms Full
2
Bathrooms Half
1
Cooling
Ceiling Fan(s), Central Air, Electric
Fireplace Features
Living Room, Raised Hearth, Stone, Wood Burning
Fireplaces Total
1
Flooring
Ceramic Tile, Luxury Vinyl Plank
Heating
Central, Electric, Fireplace(s)
Interior Features
Cable TV Available, Eat-in Kitchen, Kitchen Island, Loft, Vaulted Ceiling(s)
Number Of Living Areas
2
Exterior
Construction Materials
Brick, Siding
Exterior Features
Covered Patio/Porch, Fire Pit, Storage
Fencing
Back Yard, Privacy, Wood
Garage Length
16
Garage Spaces
1
Garage Width
20
Lot Size Area
0.3220
Financial
Map
Community
- Address1307 Shady Hollow Euless TX
- SubdivisionOak Forest Add
- CityEuless
- CountyTarrant
- Zip Code76039
Subdivisions in Euless
- Arbor Glen Add
- Bear Creek Estates
- Bell Ranch Terrace Add
- Brookside At Bear Creek
- Carlisle Pines Add
- Cedar Hill Estates Add
- Chelsea Park Estates
- Cinnamon Ridge
- Cloisters Add
- Cresthaven Add
- Day Care Center Add
- Dominion At Bear Creek The
- Dominion at Bear Crk Ph 2
- Enclave Bear Creek
- Estates Bear Crk Ph 2
- Euless Founders Parc Add
- Fountain Center Add
- Fountain Park Add
- Glade Manor Add
- Glade Parks Residential Add
- Glen Hollow Add
- Green Hills Park Add
- Groves John Add
- Harwood Park Twnhms Add
- HUIE ADD
- Huntington Place Add
- International Regional Industrial Park
- J P Hallford Surv Abs #711
- Lakewood Twnhs Add
- Little Bear Add
- Lonestar Estates
- Mc Cormick Farm Add
- Midway Park Add
- Midway Square Add
- Monarch Condos
- Morrisdale Add
- No
- Northgate Add
- Oak Crest Estates
- Oak Forest Add
- Oakridge Estates
- Oakwood Terrace Add
- Oakwood Terrace North
- Oakwood Terrace West Add
- Park Crestmoor
- Park Hill Add
- Park Hollow Add
- Quail Run Estates
- Royal Oaks Estates
- Sagepoint Add
- Somerset Place Add
- Sycamore Square Euless
- Timber Ridge Add
- Trailwood Add
- Village Park Add
- VILLAS AT BEAR CREEK
- Villasat Bear Crk
- Waterbend
- Westpark Medical Plaza Add
- Westpoint Add
- Westwood Village
- Wilshire Village Add
- Wilshire Village Square Add
- Woodcreek Add
- Woodlands Add
Market Summary
Current real estate data for Single Family in Euless as of Apr 28, 2026
112
Single Family Listed
75
Avg DOM
214
Avg $ / SqFt
$452,011
Avg List Price
Property Summary
- Located in the Oak Forest Add subdivision, 1307 Shady Hollow Euless TX is a Single Family for sale in Euless, TX, 76039. It is listed for $315,000 and features 4 beds, 2 baths, and has approximately 1,726 square feet of living space, and was originally constructed in 1972. The current price per square foot is $183. The average price per square foot for Single Family listings in Euless is $214. The average listing price for Single Family in Euless is $452,011. To schedule a showing of MLS#21239159 at 1307 Shady Hollow in Euless, TX, contact your Spencer TX Real Estate, LLC agent at (817) 937-8532.
Similar Listings Nearby

1307 Shady Hollow
Euless, TX



























