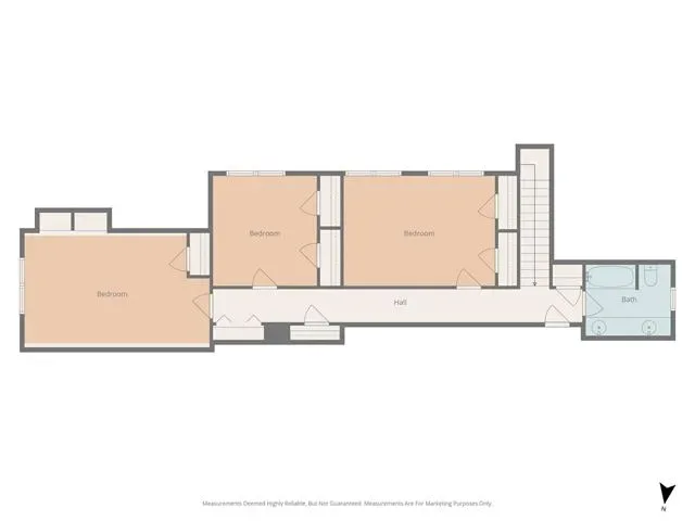
Mid-century–inspired retreat set on over half an acre with rare, direct access to Marys Creek! Spacious 5-bedroom, 3-bath home blends timeless character with thoughtful updates, offering flexible living spaces and some mid-century flare. Classic terrazzo floors, rich wood paneling, and a cozy wood-burning fireplace. Kitchen has beautiful quartz countertops and a breakfast nook with bay window overlooking the creek. Living and dining areas that flow seamlessly for both everyday comfort and entertaining. Main level includes the primary bedroom with ensuite bath, a secondary bedroom and full bath. Upstairs, two additional bedrooms, full bathroom and a large flex space with closets, which can function as a fifth bedroom, media or game room. Natural light throughout, creating a welcoming ambiance in every room. Brand new roof. Side entry with an oversized garage and a gated driveway. Large outbuilding for shop or storage. Impressive curb appeal, mature trees, and an expansive backyard with direct access to the creek – this home is truly a unique opportunity for serene living in the city.
Property Details
Price:
$499,500
MLS #:
21249939
Status:
Active
Beds:
5
Baths:
3
Type:
Single Family
Subtype:
Single Family Residence
Subdivision:
Brooks-Moreland Add
Listed Date:
Apr 24, 2026
Finished Sq Ft:
3,266
Lot Size:
24,829 sqft / 0.57 acres (approx)
Year Built:
1963
See this Listing
Schools
School District:
Fort Worth ISD
Elementary School:
Waverlypar
Middle School:
Leonard
High School:
Westn Hill
Interior
Bathrooms Full
3
Fireplace Features
Wood Burning
Fireplaces Total
1
Interior Features
Decorative Lighting, Natural Woodwork
Number Of Living Areas
2
Exterior
Garage Spaces
2
Lot Size Area
0.5700
Waterfront Features
Creek
Financial
Map
Community
- Address8625 Marys Creek Drive Benbrook TX
- SubdivisionBrooks-Moreland Add
- CityBenbrook
- CountyTarrant
- Zip Code76116
Subdivisions in Benbrook
- Bellaire Country Place
- Benbrook Estates Add
- BENBROOK ESTATES ADDITION
- Benbrook Lakeside Add
- Benbrook Lakeside Addition
- Boston Heights Add
- BOSTON HEIGHTS ADDITION
- Brookhaven Estates Add
- Brooks-Moreland Add
- Brookside
- Brookside Benbrook Field Ph II
- CEDAR Creek Townhomes
- Cedar Creek Twnhms
- Country Day Estates
- Dunlap Add
- Greenbriar Add
- Greenbriar Addition – Benbrook
- Heritage Hills Add
- Hilltop Heights Add
- La Bandera At Team Ranch
- Meadows Add
- Meadows West
- Meadows West Add
- Mont Del Estates Add
- North Benbrook Add
- One Main Place Condo
- Palomino Estates
- Pecan Valley
- Plantation Estates
- Reata Place At Team Ranch Add
- Ridglea Country Club Estate
- Ridglea Country Club Estates
- Ridglea Indust Add
- Russ Lo Valley Addition
- Smith, John Wesley Survey
- Sunset Terrace Add
- Timber Creek Add
- Triangle Add
- Trinity Estates Add
- Trinity Estates Addition
- Valley West Add
- Wallace Heights Add
- West Square
- Westpark Add
- WESTPARK ADDITION-BENBROOK
- Westpark Estates
- Westvale Add
- Whispering Oaks Add
- Whitestone Crest
- Whitestone Crest Ph 1
- Whitestone Crest Ph 2
- Whitestone Heights
- Whitestone Heights Add
- Whitestone Point
- Whitestone Ranch
- Whitestone Ranch Add
- Whitestone Ranch Ph 4
- Winchester
- Winchester Estates
Market Summary
Current real estate data for Single Family in Benbrook as of Apr 28, 2026
99
Single Family Listed
91
Avg DOM
196
Avg $ / SqFt
$441,690
Avg List Price
Property Summary
- Located in the Brooks-Moreland Add subdivision, 8625 Marys Creek Drive Benbrook TX is a Single Family for sale in Benbrook, TX, 76116. It is listed for $499,500 and features 5 beds, 3 baths, and has approximately 3,266 square feet of living space, and was originally constructed in 1963. The current price per square foot is $153. The average price per square foot for Single Family listings in Benbrook is $196. The average listing price for Single Family in Benbrook is $441,690. To schedule a showing of MLS#21249939 at 8625 Marys Creek Drive in Benbrook, TX, contact your Spencer TX Real Estate, LLC agent at (817) 937-8532.
Similar Listings Nearby

8625 Marys Creek Drive
Benbrook, TX





























