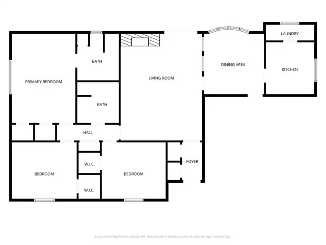
Welcome to this charming single story home nestled in an established Bedford neighborhood, offering 3 bedrooms, 2 bathrooms, and a 2-car garage. From the moment you step inside, you’ll appreciate the warmth and character throughout, highlighted by rich wood accents, custom built-ins, and a thoughtfully designed layout.
The inviting living room serves as the heart of the home, featuring a cozy wood-burning fireplace, ceramic tile floors and a comfortable space to gather or unwind. Natural light flows into the adjoining dining area, where large windows and classic wood detailing create an ideal setting for everyday meals or entertaining guests.
The kitchen is both functional and full of charm, offering generous cabinet storage, ample counter space, and a full suite of appliances including an electric cooktop, electric wall oven, built-in microwave, and dishwasher. A conveniently located laundry room just off the kitchen adds to the home’s practical layout.
The private primary suite provides a relaxing retreat with an ensuite bath featuring dual vanities, dedicated knee space, built-in cabinetry, and a separate shower.
Step outside to your own backyard oasis. The terraced yard is framed by mature trees and offers a unique, multi-level landscape. At the center, you’ll find an in-ground pool complete with a diving board, surrounded by aggregate concrete deck and additional stone paver decking. Perfect for summer gatherings, outdoor lounging, and making lasting memories.
This home blends timeless character with inviting outdoor living—ready for its next chapter.
The inviting living room serves as the heart of the home, featuring a cozy wood-burning fireplace, ceramic tile floors and a comfortable space to gather or unwind. Natural light flows into the adjoining dining area, where large windows and classic wood detailing create an ideal setting for everyday meals or entertaining guests.
The kitchen is both functional and full of charm, offering generous cabinet storage, ample counter space, and a full suite of appliances including an electric cooktop, electric wall oven, built-in microwave, and dishwasher. A conveniently located laundry room just off the kitchen adds to the home’s practical layout.
The private primary suite provides a relaxing retreat with an ensuite bath featuring dual vanities, dedicated knee space, built-in cabinetry, and a separate shower.
Step outside to your own backyard oasis. The terraced yard is framed by mature trees and offers a unique, multi-level landscape. At the center, you’ll find an in-ground pool complete with a diving board, surrounded by aggregate concrete deck and additional stone paver decking. Perfect for summer gatherings, outdoor lounging, and making lasting memories.
This home blends timeless character with inviting outdoor living—ready for its next chapter.
Property Details
Price:
$340,000
MLS #:
21228122
Status:
Active
Beds:
3
Baths:
2
Type:
Single Family
Subtype:
Single Family Residence
Subdivision:
Camelot Estates
Listed Date:
Apr 6, 2026
Finished Sq Ft:
1,510
Lot Size:
8,624 sqft / 0.20 acres (approx)
Year Built:
1978
See this Listing
Schools
School District:
Hurst-Euless-Bedford ISD
Elementary School:
Bedfordhei
High School:
Bell
Interior
Bathrooms Full
2
Cooling
Central Air, Electric
Fireplace Features
Living Room, Wood Burning
Fireplaces Total
1
Flooring
Carpet, Ceramic Tile, Laminate
Heating
Central, Electric
Interior Features
High Speed Internet Available, Paneling
Number Of Living Areas
1
Exterior
Construction Materials
Brick
Fencing
Wood
Garage Spaces
2
Lot Size Area
0.1980
Financial
Map
Community
- Address717 Steeplechase Drive Bedford TX
- SubdivisionCamelot Estates
- CityBedford
- CountyTarrant
- Zip Code76021
Subdivisions in Bedford
- Autumn Chase Add
- Bedford Estates Add
- Bedford Heights Add
- Bedford Meadows Add
- Bedford Meadows Addition
- Bedford Park Estates
- Bedford Place
- Bedford Square
- Bell Manor
- Bell Manor West
- Bellvue Add
- Bridgeton Add
- Britany Chase Add
- Brook Hollow Add
- Brook Hollow Bedford
- Brook Hollow East Add
- Brookwood Hills
- Camelot Estates
- Canterbury Add
- Chateau Valee
- Classic Limited Add
- Crestview Add
- Cross Timbers Add
- Durango Ridge Add
- Eagles Landing Add
- Forest Ridge 2 Add
- Forest Ridge Add
- Fox Glenn Estate
- Glenbrook Add
- Grace Park
- Gregory Add
- Joiner Acres Add
- Kelmont Park Add
- Mayfair Add
- Mayfair Hills Add
- mayfair no-harwood oaks kinder
- Meadow Wood Add
- MOORE, MILTON SURVEY ABSTRACT
- MOORE, MILTON SURVEY Abstract 1105 Tract 14 16B &
- Morrow Green Garden Homes
- Murphy J R Add
- Nottingham
- Oak Ridge Estates
- Oak Shadows Twnhms
- Oak Valley
- Oak View Hills
- Oakmont Add
- Oakwood Hills
- PASQUINELLIS
- Pasquinellis Bandera Add
- Pasquinellis Durango Ridge
- Pasquinellis Durango Ridge Add
- Quail Crest Estates
- Ridgewood Add
- River Forest Add
- Rolling Meadows Add
- Rollingwood Add
- Rustic Hollow Add
- Rustic Woods Add
- Rustic Woods III & IV
- Rustic Woods Ph V
- Sanders Add
- Shady Brook Add
- Shady Brook Twnhs Add
- Shady Ridge Homes Condo
- Silverwood Add
- Southwood Add
- Spring Brook Estates Add
- Spring Valley Estate Add
- Stonecourt Add
- Stonegate Add
- SubdivisiBedford Central Addition
- Teakwood Estates Add
- Three Oaks Add
- Timber View Estates Add
- Timberview Estate Add
- Villas Of Bedford Condos
- Villas Of Forest Ridge
- Wendover Add
- West Bellvue Add
- Whisperwood Add
- WILLIAM W WALLACE
- Willow Creek Add
- Woodbridge Add
- Woodfield Add
- Woodland Hills Add
Market Summary
Current real estate data for Single Family in Bedford as of Apr 16, 2026
124
Single Family Listed
63
Avg DOM
217
Avg $ / SqFt
$441,176
Avg List Price
Property Summary
- Located in the Camelot Estates subdivision, 717 Steeplechase Drive Bedford TX is a Single Family for sale in Bedford, TX, 76021. It is listed for $340,000 and features 3 beds, 2 baths, and has approximately 1,510 square feet of living space, and was originally constructed in 1978. The current price per square foot is $225. The average price per square foot for Single Family listings in Bedford is $217. The average listing price for Single Family in Bedford is $441,176. To schedule a showing of MLS#21228122 at 717 Steeplechase Drive in Bedford, TX, contact your Spencer TX Real Estate, LLC agent at (817) 937-8532.
Similar Listings Nearby

717 Steeplechase Drive
Bedford, TX






























