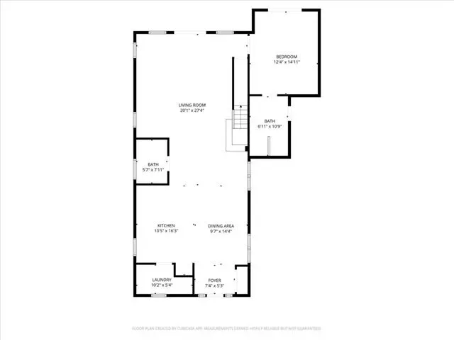
Located just minutes from TX-199 in Azle, this thoughtfully updated home offers a true lake lifestyle with direct access to Eagle Mountain Lake and a private dock, perfect for boating, fishing, or relaxing by the water. The fenced backyard features multiple outdoor living spaces designed for both entertaining and everyday enjoyment, including a covered upper porch off the secondary bedrooms and a lower-level patio connected by stairs. A one-car carport at the front of the home provides convenient parking. Inside, the open-concept layout is bright and inviting, anchored by a fully updated kitchen with a center island, breakfast bar, and an oversized utility room that also functions as a pantry with additional shelving. The kitchen flows seamlessly into the dining and living areas, where recessed lighting and large windows bring in abundant natural light. The main-level primary suite offers privacy and comfort with an upgraded vanity, walk-in shower, walk-in closet, and a nearby half bath for guests. Upstairs, two spacious secondary bedrooms each include their own full bathroom. One bedroom is oversized, offering flexibility as a guest suite, game room, or additional living space. With no HOA, this property provides the freedom to enjoy and personalize your space. Conveniently located near public boat ramps and Shady Grove Park, which offers a lakefront beach, fishing pier, playground, and walking trails, and just minutes from shopping, dining, and everyday essentials.
Discounted rate options and no lender fee future refinancing may be available for qualified buyers of this home.
Discounted rate options and no lender fee future refinancing may be available for qualified buyers of this home.
Property Details
Price:
$425,000
MLS #:
21149233
Status:
Active
Beds:
3
Baths:
3.1
Type:
Single Family
Subtype:
Single Family Residence
Subdivision:
T Harmon
Listed Date:
Jan 9, 2026
Finished Sq Ft:
2,156
Lot Size:
8,668 sqft / 0.20 acres (approx)
Year Built:
1970
See this Listing
Schools
School District:
Azle ISD
Elementary School:
Liberty
High School:
Azle
Interior
Bathrooms Full
3
Bathrooms Half
1
Cooling
Ceiling Fan(s), Central Air
Flooring
Carpet, Laminate
Heating
Central
Interior Features
Decorative Lighting, Eat-in Kitchen, Kitchen Island, Walk- In Closet(s)
Number Of Living Areas
1
Exterior
Carport Spaces
1
Construction Materials
Brick, Other
Exterior Features
Covered Patio/Porch
Fencing
Back Yard
Lot Size Area
0.1990
Vegetation
Grassed
Waterfront Features
Dock – Uncovered, Lake Front
Financial
Map
Community
- Address6837 Briar Road Azle TX
- SubdivisionT Harmon
- CityAzle
- CountyTarrant
- Zip Code76020
Subdivisions in Azle
- .
- A-617 MEP & PRR 1.506 ACRES TRACT PT 19
- Adam Acres Estates
- ANDY RANCH, F-445
- Arbor Vista
- Ashwood Park
- Ashwood Park Ph 2
- Ashwood Ph 2
- Auburn Terrace
- Azle Grove
- Azle Grove Ph 1
- Azle Heights Add
- Azle Original Town Of
- Beaver Creek
- Boling Ranch Estate 03
- Boling Ranch Estate II
- Boling Ranch Estates II
- Boling Ranch Estates Ph 03
- Briar Oaks Ranchett
- Briar West
- BRISTOL FARM
- Bristol Farm Add
- Calhoun Acres
- Casitas Villas
- Castle Hill Estates
- Castle Hills Estates
- Castle Hills Northwest
- Chamberless
- Cole I W Sub Water Board
- Country Cottage Park Add
- county
- Craft Farms
- Cross Timbers Estates
- Days Add RV Park
- Dears Farm Phase 1
- Deats Farm Ph 1
- Deer Glade Ph 1
- Deer Glade Ph 2
- Deer Glade- Ph 1
- Deer Ridge Estates
- Deer Ridge Estates Ph
- Deer Trail Add
- Eagle Lake Garden Village Add
- Eagle Mountain Acres
- Eagle Mountain View Add
- Eagle Mountain View Addition
- Eagle Pointe
- Encanto Estates
- Enchanted Lakes
- Enchanted Lakes Pc
- Escondido
- Escondido Eagle Mountain Lake
- Eustace Hill Stanfield Wtr Brd
- Fairway Estates II
- Falconer Addition
- Forest Glen
- FOREST GLEN ADD
- Golden Pond
- Golden Pond Estate
- Harbor Parc
- Henderson Add
- High School Add
- Highwoods Add
- Hills of Briar Oaks
- Huckleberry Hill
- Huckleberry Hill #5
- HUDSON THOMAS
- HUNT
- Hunters
- Hunters Add
- J Wilcox Surv Abs #1702
- J Wilcox Survey
- John Redwine Survey Abstract #1135
- John Spain Survey in Parker County
- KEY WILLIAM O
- Kimbrough Place
- Kimbrough Sub
- Lake Crest Park Add
- Lake Forest Add
- LAKE FOREST ADDITION
- Lake Ridge Estates Add
- Lakeview Estates Ph 2
- Lakeview Heights
- Lakeview Hts
- Live Oak Park Add
- LOMA VISTA
- Lone Pine Estates
- M E P & P RR CO SURVEY #33
- Marr Lynn Estates
- Mckinsey
- mep & prr
- Mep& Prr Co Surv Abs #617
- Mep&P Co Surv Abs 1127 Tracts
- Mg Huling Add
- Miller Perry Sub Water B Add
- Miller Perry Sub-Water B
- Morrow Estates
- Oak Court Add
- Oak Harbor Est
- Oak Harbor Estates Add
- Oaklawn Add
- Oakridge Homesites
- Old Cobweb Park
- Old Cobweb Park Add
- Paschal R A Surv
- PASCHAL, R A SURVEY
- Pecan Valley
- Peche Ranch
- Peche Ranch F-358
- Pierce Addition
- Point Break Add Ph
- Racetrac Add
- Ranch Oak Farms Estates
- Reata
- Reeses Mill Creek Add
- Roeser
- Roeser Addition
- Rosewood Estates Pc
- Rowden Add
- Sandy Beach
- see attached survey
- Shady Creek Estates
- Silver Creek Estates Addition
- Skyview Estates
- Snug Harbor Condo Apts
- Snug Harbor Village Add
- Spring Valley Estates
- Spring Valley Estates West
- Stone Eagle
- Stribling Square Add
- SURV: JACOB WILCOX
- T Harmon
- T Harmon 249
- Tangelwood Estates
- Tanglewood Estates
- TBD
- The Pines Pc
- Thomas Harmon Surv Abs #1931
- Thomas Harmon Survey
- Timbercreek Valley
- Timberlake Estates Add
- Timbers The Condo Apts #2
- Walnut Creek Add
- Wasser Addition
- Waterr Board-Perry Miller Sub
- Westlake Woods Add
- Wheeler Estates
- Whitfield Add
- Wilcox
- Wilcox, Jacob Survey #43 Abstract 1702 Tract
- William D Hailey Survey
- Windy Hill Estate
- Woodland Terrace Add
- Wright-Tucker Farm
- WT Tally
- Wudco Trails Add
- Younger Ranch Estates
- Younger W N Sub Water Brd Add
Market Summary
Current real estate data for Single Family in Azle as of Apr 30, 2026
295
Single Family Listed
81
Avg DOM
568
Avg $ / SqFt
$526,354
Avg List Price
Property Summary
- Located in the T Harmon subdivision, 6837 Briar Road Azle TX is a Single Family for sale in Azle, TX, 76020. It is listed for $425,000 and features 3 beds, 3 baths, and has approximately 2,156 square feet of living space, and was originally constructed in 1970. The current price per square foot is $197. The average price per square foot for Single Family listings in Azle is $568. The average listing price for Single Family in Azle is $526,354. To schedule a showing of MLS#21149233 at 6837 Briar Road in Azle, TX, contact your Spencer TX Real Estate, LLC agent at (817) 937-8532.
Similar Listings Nearby

6837 Briar Road
Azle, TX









































