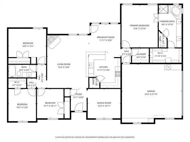
Four bedrooms, 2 bathrooms and approximately 1,988 square feet in Azle Texas zoned to Azle ISD define this functional one-story home in Deer Ridge Estates situated on just over 1 acre in Parker County with a split layout that supports everyday living and separation of spaces while providing easy flow to the living room and kitchen areas near Highway 199 and Farm-to-Market 730 that accommodate commuter routes across Azle and toward Highway 114 and towards Weatherford and Fort Worth. If you are searching for homes with generous indoor space and a primary suite with dual sinks, walk-in closet and separate shower near the retail and dining at Azle Market Plaza and Azle’s Main Street corridor this home delivers practical interior upgrades including luxury vinyl plank floors, built-in storage, ensuite bath fixtures and a wood burning fireplace located centrally for gathering and daily comfort. The eat-in kitchen features storage and layout geared toward functional meal preparation while secondary bedrooms and baths support flexible use for guests or work areas and those looking for room for home office setups or hobbies will notice the adaptable living areas designed for varied needs. Outdoor space extends into the expansive backyard with room for recreation near Azle Community Park and Eagle Mountain Lake recreation anchors as well as easy access toward Texas Health Azle and employment corridors in nearby Lake Worth and Saginaw, and buyers comparing newer construction in neighboring communities may appreciate the established lot size, mature setting and completed interior systems here. Garage parking and storage are integrated with simple access and the location near local grocery and coffee options supports daily routines with convenience to regional connectors like Highway 199 and FM 730. This property presents a balanced combination of layout, location and neighborhood access within the Azle market.
Property Details
Price:
$424,500
MLS #:
21173549
Status:
Pending
Beds:
4
Baths:
2
Type:
Single Family
Subtype:
Single Family Residence
Subdivision:
Deer Ridge Estates Ph
Listed Date:
Feb 12, 2026
Finished Sq Ft:
1,988
Lot Size:
47,044 sqft / 1.08 acres (approx)
Year Built:
2004
See this Listing
Schools
School District:
Azle ISD
Elementary School:
Silver Creek
High School:
Azle
Interior
Bathrooms Full
2
Fireplace Features
Wood Burning
Fireplaces Total
1
Flooring
Luxury Vinyl Plank
Interior Features
Walk- In Closet(s)
Number Of Living Areas
1
Exterior
Garage Length
22
Garage Spaces
2
Garage Width
22
Lot Size Area
1.0800
Financial
Map
Community
- Address118 Deertail Drive Azle TX
- SubdivisionDeer Ridge Estates Ph
- CityAzle
- CountyParker
- Zip Code76020
Subdivisions in Azle
- .
- A-617 MEP & PRR 1.506 ACRES TRACT PT 19
- Adam Acres Estates
- ANDY RANCH, F-445
- Arbor Vista
- Ashwood Park
- Ashwood Park Ph 2
- Ashwood Ph 2
- Auburn Terrace
- Azle Grove
- Azle Grove Ph 1
- Azle Heights Add
- Azle Original Town Of
- Beaver Creek
- Boling Ranch Estate 03
- Boling Ranch Estate II
- Boling Ranch Estates II
- Boling Ranch Estates Ph 03
- Briar Oaks Ranchett
- Briar West
- BRISTOL FARM
- Bristol Farm Add
- Calhoun Acres
- Casitas Villas
- Castle Hill Estates
- Castle Hills Estates
- Castle Hills Northwest
- Chamberless
- Cole I W Sub Water Board
- Country Cottage Park Add
- county
- Craft Farms
- Cross Timbers Estates
- Days Add RV Park
- Dears Farm Phase 1
- Deats Farm Ph 1
- Deer Glade Ph 1
- Deer Glade Ph 2
- Deer Glade- Ph 1
- Deer Ridge Estates
- Deer Ridge Estates Ph
- Deer Trail Add
- Eagle Lake Garden Village Add
- Eagle Mountain Acres
- Eagle Mountain View Add
- Eagle Mountain View Addition
- Eagle Pointe
- Encanto Estates
- Enchanted Lakes
- Enchanted Lakes Pc
- Escondido
- Escondido Eagle Mountain Lake
- Eustace Hill Stanfield Wtr Brd
- Fairway Estates II
- Falconer Addition
- Forest Glen
- FOREST GLEN ADD
- Golden Pond
- Golden Pond Estate
- Harbor Parc
- Henderson Add
- High School Add
- Highwoods Add
- Hills of Briar Oaks
- Huckleberry Hill
- Huckleberry Hill #5
- HUDSON THOMAS
- HUNT
- Hunters
- Hunters Add
- J Wilcox Surv Abs #1702
- J Wilcox Survey
- John Redwine Survey Abstract #1135
- John Spain Survey in Parker County
- KEY WILLIAM O
- Kimbrough Place
- Kimbrough Sub
- Lake Crest Park Add
- Lake Forest Add
- LAKE FOREST ADDITION
- Lake Ridge Estates Add
- Lakeview Estates Ph 2
- Lakeview Heights
- Lakeview Hts
- Live Oak Park Add
- LOMA VISTA
- Lone Pine Estates
- M E P & P RR CO SURVEY #33
- Marr Lynn Estates
- Mckinsey
- mep & prr
- Mep& Prr Co Surv Abs #617
- Mep&P Co Surv Abs 1127 Tracts
- Mg Huling Add
- Miller Perry Sub Water B Add
- Miller Perry Sub-Water B
- Morrow Estates
- Oak Court Add
- Oak Harbor Est
- Oak Harbor Estates Add
- Oaklawn Add
- Oakridge Homesites
- Old Cobweb Park
- Old Cobweb Park Add
- Paschal R A Surv
- PASCHAL, R A SURVEY
- Pecan Valley
- Peche Ranch
- Peche Ranch F-358
- Pierce Addition
- Point Break Add Ph
- Racetrac Add
- Ranch Oak Farms Estates
- Reata
- Reeses Mill Creek Add
- Roeser
- Roeser Addition
- Rosewood Estates Pc
- Rowden Add
- Sandy Beach
- see attached survey
- Shady Creek Estates
- Silver Creek Estates Addition
- Skyview Estates
- Snug Harbor Condo Apts
- Snug Harbor Village Add
- Spring Valley Estates
- Spring Valley Estates West
- Stone Eagle
- Stribling Square Add
- SURV: JACOB WILCOX
- T Harmon
- T Harmon 249
- Tangelwood Estates
- Tanglewood Estates
- TBD
- The Pines Pc
- Thomas Harmon Surv Abs #1931
- Thomas Harmon Survey
- Timbercreek Valley
- Timberlake Estates Add
- Timbers The Condo Apts #2
- Walnut Creek Add
- Wasser Addition
- Waterr Board-Perry Miller Sub
- Westlake Woods Add
- Wheeler Estates
- Whitfield Add
- Wilcox
- Wilcox, Jacob Survey #43 Abstract 1702 Tract
- William D Hailey Survey
- Windy Hill Estate
- Woodland Terrace Add
- Wright-Tucker Farm
- WT Tally
- Wudco Trails Add
- Younger Ranch Estates
- Younger W N Sub Water Brd Add
Market Summary
Current real estate data for Single Family in Azle as of Apr 28, 2026
299
Single Family Listed
83
Avg DOM
562
Avg $ / SqFt
$524,454
Avg List Price
Property Summary
- Located in the Deer Ridge Estates Ph subdivision, 118 Deertail Drive Azle TX is a Single Family for sale in Azle, TX, 76020. It is listed for $424,500 and features 4 beds, 2 baths, and has approximately 1,988 square feet of living space, and was originally constructed in 2004. The current price per square foot is $214. The average price per square foot for Single Family listings in Azle is $562. The average listing price for Single Family in Azle is $524,454. To schedule a showing of MLS#21173549 at 118 Deertail Drive in Azle, TX, contact your Spencer TX Real Estate, LLC agent at (817) 937-8532.
Similar Listings Nearby

118 Deertail Drive
Azle, TX





































