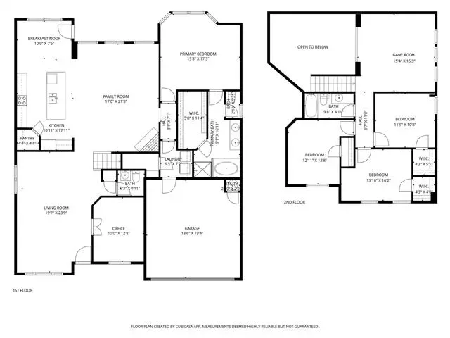
Discover a well-updated 4-bedroom, 2.5-bath home at 1420 Meadowlakes Dr offering 2,775 square feet of flexible living space in an established Azle neighborhood. Built in 2006, this move-in ready property blends modern system upgrades with an open, light-filled layout designed for today’s living and entertaining needs. The main level features a spacious living area that flows seamlessly into the kitchen and dining spaces, creating a connected environment ideal for everyday use or hosting. Large windows throughout the home invite abundant natural light, enhancing the sense of openness and highlighting the interior finishes. The primary suite is conveniently located on the first floor, providing a private retreat with separation from secondary bedrooms. Upstairs, multiple bonus areas offer versatile options for a home office, additional living space, media room, or hobby room, giving buyers flexibility to personalize the layout. A well-placed powder bath on the main level adds convenience for guests and daily use. Recent improvements add significant value and peace of mind, including both HVAC systems replaced in October 2024, a roof installed in 2021, and a whole-house surge protector added in 2022. Interior paint and all carpeting were also updated in 2022, contributing to a clean, refreshed feel throughout the home and reducing immediate maintenance needs. The backyard provides space for outdoor enjoyment along with room for seating or future enhancements. Located with easy access to TX-199, shopping, and local amenities, this property offers a strong combination of condition, space, and location. Ideal for buyers searching for an updated Azle home with primary suite downstairs, bonus rooms, natural light, and recent major system upgrades. Washer, dryer, and refrigerator can convey with property. Seller is offering $5,000 in concessions toward buyer closing costs.
Property Details
Price:
$378,000
MLS #:
21239895
Status:
Active
Beds:
4
Baths:
2.1
Type:
Single Family
Subtype:
Single Family Residence
Subdivision:
Bristol Farm Add
Listed Date:
Apr 22, 2026
Finished Sq Ft:
2,775
Lot Size:
8,624 sqft / 0.20 acres (approx)
Year Built:
2006
See this Listing
Schools
School District:
Azle ISD
Elementary School:
Azle
High School:
Azle
Interior
Bathrooms Full
2
Bathrooms Half
1
Cooling
Central Air
Fireplace Features
Gas
Fireplaces Total
1
Flooring
Carpet, Tile
Heating
Central, Natural Gas
Interior Features
Walk- In Closet(s)
Number Of Living Areas
1
Exterior
Garage Spaces
2
Lot Size Area
0.1980
Financial
Map
Community
- Address1420 Meadowlakes Drive Azle TX
- SubdivisionBristol Farm Add
- CityAzle
- CountyTarrant
- Zip Code76020
Subdivisions in Azle
- .
- A-617 MEP & PRR 1.506 ACRES TRACT PT 19
- Adam Acres Estates
- ANDY RANCH, F-445
- Arbor Vista
- Ashwood Park
- Ashwood Park Ph 2
- Ashwood Ph 2
- Auburn Terrace
- Azle Grove
- Azle Grove Ph 1
- Azle Heights Add
- Azle Original Town Of
- Beaver Creek
- Boling Ranch Estate 03
- Boling Ranch Estate II
- Boling Ranch Estates II
- Boling Ranch Estates Ph 03
- Briar Oaks Ranchett
- Briar West
- BRISTOL FARM
- Bristol Farm Add
- Calhoun Acres
- Casitas Villas
- Castle Hill Estates
- Castle Hills Estates
- Castle Hills Northwest
- Chamberless
- Cole I W Sub Water Board
- Country Cottage Park Add
- county
- Craft Farms
- Cross Timbers Estates
- Days Add RV Park
- Dears Farm Phase 1
- Deats Farm Ph 1
- Deer Glade Ph 1
- Deer Glade Ph 2
- Deer Glade- Ph 1
- Deer Ridge Estates
- Deer Ridge Estates Ph
- Deer Trail Add
- Eagle Lake Garden Village Add
- Eagle Mountain Acres
- Eagle Mountain View Add
- Eagle Mountain View Addition
- Eagle Pointe
- Encanto Estates
- Enchanted Lakes
- Enchanted Lakes Pc
- Escondido
- Escondido Eagle Mountain Lake
- Eustace Hill Stanfield Wtr Brd
- Fairway Estates II
- Falconer Addition
- Forest Glen
- FOREST GLEN ADD
- Golden Pond
- Golden Pond Estate
- Harbor Parc
- Henderson Add
- High School Add
- Highwoods Add
- Hills of Briar Oaks
- Huckleberry Hill
- Huckleberry Hill #5
- HUDSON THOMAS
- HUNT
- Hunters
- Hunters Add
- J Wilcox Surv Abs #1702
- J Wilcox Survey
- John Redwine Survey Abstract #1135
- John Spain Survey in Parker County
- KEY WILLIAM O
- Kimbrough Place
- Kimbrough Sub
- Lake Crest Park Add
- Lake Forest Add
- LAKE FOREST ADDITION
- Lake Ridge Estates Add
- Lakeview Estates Ph 2
- Lakeview Heights
- Lakeview Hts
- Live Oak Park Add
- LOMA VISTA
- Lone Pine Estates
- M E P & P RR CO SURVEY #33
- Marr Lynn Estates
- Mckinsey
- mep & prr
- Mep& Prr Co Surv Abs #617
- Mep&P Co Surv Abs 1127 Tracts
- Mg Huling Add
- Miller Perry Sub Water B Add
- Miller Perry Sub-Water B
- Morrow Estates
- Oak Court Add
- Oak Harbor Est
- Oak Harbor Estates Add
- Oaklawn Add
- Oakridge Homesites
- Old Cobweb Park
- Old Cobweb Park Add
- Paschal R A Surv
- PASCHAL, R A SURVEY
- Pecan Valley
- Peche Ranch
- Peche Ranch F-358
- Pierce Addition
- Point Break Add Ph
- Racetrac Add
- Ranch Oak Farms Estates
- Reata
- Reeses Mill Creek Add
- Roeser
- Roeser Addition
- Rosewood Estates Pc
- Rowden Add
- Sandy Beach
- see attached survey
- Shady Creek Estates
- Silver Creek Estates Addition
- Skyview Estates
- Snug Harbor Condo Apts
- Snug Harbor Village Add
- Spring Valley Estates
- Spring Valley Estates West
- Stone Eagle
- Stribling Square Add
- SURV: JACOB WILCOX
- T Harmon
- T Harmon 249
- Tangelwood Estates
- Tanglewood Estates
- TBD
- The Pines Pc
- Thomas Harmon Surv Abs #1931
- Thomas Harmon Survey
- Timbercreek Valley
- Timberlake Estates Add
- Timbers The Condo Apts #2
- Walnut Creek Add
- Wasser Addition
- Waterr Board-Perry Miller Sub
- Westlake Woods Add
- Wheeler Estates
- Whitfield Add
- Wilcox
- Wilcox, Jacob Survey #43 Abstract 1702 Tract
- William D Hailey Survey
- Windy Hill Estate
- Woodland Terrace Add
- Wright-Tucker Farm
- WT Tally
- Wudco Trails Add
- Younger Ranch Estates
- Younger W N Sub Water Brd Add
Market Summary
Current real estate data for Single Family in Azle as of Apr 28, 2026
300
Single Family Listed
84
Avg DOM
561
Avg $ / SqFt
$522,790
Avg List Price
Property Summary
- Located in the Bristol Farm Add subdivision, 1420 Meadowlakes Drive Azle TX is a Single Family for sale in Azle, TX, 76020. It is listed for $378,000 and features 4 beds, 2 baths, and has approximately 2,775 square feet of living space, and was originally constructed in 2006. The current price per square foot is $136. The average price per square foot for Single Family listings in Azle is $561. The average listing price for Single Family in Azle is $522,790. To schedule a showing of MLS#21239895 at 1420 Meadowlakes Drive in Azle, TX, contact your Spencer TX Real Estate, LLC agent at (817) 937-8532.
Similar Listings Nearby

1420 Meadowlakes Drive
Azle, TX
































