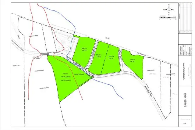
PRIME NEW COMMECIAL DEVELOPMENT on the south side of I-20 just east of the Clear Fork of the Trinity River. Bond has been passed to build a new bridge to extend Bankhead Hwy. Property is targeting a Restaurant Row concept as well as other retail. Several new TXDOT entrances have been poured while water, sewer, and natural gas are also installed. This is slated to become one of the hottest commercial locations due to the recently installed Trinity Christian Athletic Facility as well as the refurbishment of Bankhead Hwy. Tract numbers and lot sizes are conceptual only and Owner will consider the feasibility of this lot and other lots to be subdivided or redrawn as necessary. This tract will require final plat and zoning approval as shown on the preliminary concept plan. There are approximately 7.87 acres…a mix of buildable, floodplain, and floodway acreage. Buyer is responsible to perform topographical and hydrology survey to ascertain actual mix.
Property Details
Price:
$1,899,500
MLS #:
20087269
Status:
Active
Baths:
0
Type:
Land
Subtype:
Unimproved Land
Subdivision:
The Porter Addition
Listed Date:
Jun 15, 2022
Lot Size:
342,817 sqft / 7.87 acres (approx)
See this Listing
Schools
Interior
Ceiling Height
Other
Cooling
None
Flooring
None
Heating
Electric, Natural Gas
Exterior
Construction Materials
Other
Lot Size Area
7.8700
Financial
Map
Community
- AddressTBD Lot 5 I-20 Service RD S Willow Park TX
- SubdivisionThe Porter Addition
- CityWillow Park
- CountyParker
- Zip Code76087
Subdivisions in Willow Park
- Bankhead Commons
- Broadway Bus Park II
- Buena Vista
- Country Hollow
- Country Hollow Sales Phase 1
- Crown Pointe
- Crown Pointe Add
- Crown Pointe Add Ph IV
- CROWN POINTE ADDITION F-158
- Crowne Pointe
- El Chico
- El Chico Rev
- El Chico South
- Isaac O Headley
- Laguna Vista Estates
- Meadow Place Estates
- Meadow Place Estates Ph
- Meadow Place Ph 2
- North Chase
- Parker Ridge
- Ranch House
- Squaw Creek West
- Stage Coach Estates Ph
- The Porter Addition
- The Reserves At Trinity
- Trinity Meadow Addition
- Trinity Meadows
- West Oak Home Sites
- Willow Crest Estates
- Willow Park
- Willow Park Bus Plaza
- Willow Park Church Of
- Willow Park Village
- Willow Spgs
- Willow Spgs Oaks
- Willow Wood Add
Market Summary
Current real estate data for Land in Willow Park as of Mar 14, 2026
23
Land Listed
522
Avg DOM
$2,998,022
Avg List Price
Property Summary
- Located in the The Porter Addition subdivision, TBD Lot 5 I-20 Service RD S Willow Park TX is a Land for sale in Willow Park, TX, 76087. It is listed for $1,899,500 and features 8 acres. To schedule a showing of MLS#20087269 at TBD Lot 5 I-20 Service RD S in Willow Park, TX, contact your Spencer TX Real Estate, LLC agent at (817) 937-8532.
Similar Listings Nearby

TBD Lot 5 I-20 Service RD S
Willow Park, TX



