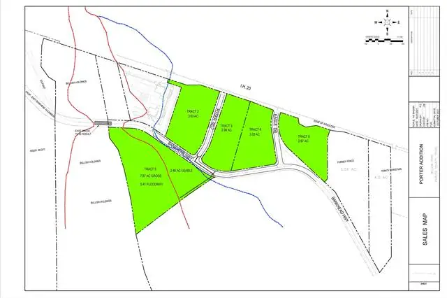
PRIME NEW COMMECIAL DEVELOPMENT soon to be completed on the south side of I-20 just east of the Clear Fork of the Trinity River and just west of Bankhead Hwy. Property is targeting a Restaurant Row concept as well as other retail. Several new TX DOT entrances have been poured while water, sewer, and natural gas are currently being installed. This is slated to become one of the hottest commercial locations due to the recently installed Trinity Christian Athletic Facility as well as the refurbishment of Bankhead Hwy. Tract numbers and lot sizes are conceptual only and Owner will consider the feasibility of this lot known as Tract 3 to be further subdivided or redrawn as necessary. Either way this tract will require final plat and zoning approval as shown on the preliminary concept plan.
Property Details
Price:
$2,604,888
MLS #:
20078054
Status:
Active
Baths:
0
Type:
Land
Subtype:
Unimproved Land
Subdivision:
The Porter Addition
Listed Date:
Jun 7, 2022
Lot Size:
130,244 sqft / 2.99 acres (approx)
See this Listing
Schools
Interior
Ceiling Height
Other
Cooling
None
Flooring
None
Heating
Electric, Natural Gas
Exterior
Construction Materials
Other
Lot Size Area
2.9900
Financial
Map
Community
- AddressTBD Lot 3 I-20 Service RD S Willow Park TX
- SubdivisionThe Porter Addition
- CityWillow Park
- CountyParker
- Zip Code76087
Subdivisions in Willow Park
- Bankhead Commons
- Broadway Bus Park II
- Buena Vista
- Country Hollow
- Country Hollow Sales Phase 1
- Crown Pointe
- Crown Pointe Add
- Crown Pointe Add Ph IV
- CROWN POINTE ADDITION F-158
- Crowne Pointe
- El Chico
- El Chico Rev
- El Chico South
- Isaac O Headley
- Laguna Vista Estates
- Meadow Place Estates
- Meadow Place Estates Ph
- Meadow Place Ph 2
- North Chase
- Parker Ridge
- Ranch House
- Squaw Creek West
- Stage Coach Estates Ph
- The Porter Addition
- The Reserves At Trinity
- Trinity Meadow Addition
- Trinity Meadows
- West Oak Home Sites
- Willow Crest Estates
- Willow Park
- Willow Park Bus Plaza
- Willow Park Church Of
- Willow Park Village
- Willow Spgs
- Willow Spgs Oaks
- Willow Wood Add
Market Summary
Current real estate data for Land in Willow Park as of Mar 14, 2026
23
Land Listed
522
Avg DOM
$2,998,022
Avg List Price
Property Summary
- Located in the The Porter Addition subdivision, TBD Lot 3 I-20 Service RD S Willow Park TX is a Land for sale in Willow Park, TX, 76087. It is listed for $2,604,888 and features 3 acres. To schedule a showing of MLS#20078054 at TBD Lot 3 I-20 Service RD S in Willow Park, TX, contact your Spencer TX Real Estate, LLC agent at (817) 937-8532.
Similar Listings Nearby

TBD Lot 3 I-20 Service RD S
Willow Park, TX



