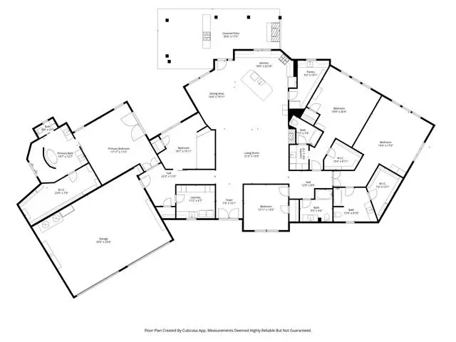
Welcome to 110 Live Oak Court, a stunning custom-built one-story home located on a quiet cul-de-sac in Willow Park and included in Aledo ISD, offering the perfect balance of privacy, space, and convenience with highway access just one minute away. Built in 2017, this impressive 5-bedroom, 4-bath residence spans approximately 4,100 square feet and features an expansive open floor plan highlighted by soaring 20-foot vaulted ceilings with beautiful exposed beams that create a bright and inviting atmosphere. The home boasts exceptionally large bedrooms, with three of the five bedrooms offering private en suite baths for added comfort and convenience. The primary suite serves as a true retreat, complete with a massive walk-in closet featuring built-in dressers for ultimate organization. The spacious kitchen is designed for both functionality and entertaining and is complemented by a walk-in pantry equipped with a sink, space for a second refrigerator, and additional cabinetry for extra storage. The home also features a whole-home reverse osmosis water system and 54 solar panels for added efficiency. Step outside to an extended patio with a pergola, built-in grill, and outdoor propane fireplace, an ideal setting for relaxing or entertaining while enjoying the peaceful surroundings and abundant wildlife. Completing the property is a spacious 3-car garage, offering plenty of room for vehicles and storage. This beautifully designed home delivers luxury, functionality, and tranquility all in one exceptional location.
Property Details
Price:
$899,000
MLS #:
21224220
Status:
Active
Beds:
5
Baths:
4
Type:
Single Family
Subtype:
Single Family Residence
Subdivision:
El Chico
Listed Date:
Apr 1, 2026
Finished Sq Ft:
4,096
Lot Size:
103,367 sqft / 2.37 acres (approx)
Year Built:
2016
See this Listing
Schools
School District:
Aledo ISD
Elementary School:
Patricia Dean Boswell Mccall
Middle School:
Aledo
High School:
Aledo
Interior
Bathrooms Full
4
Cooling
Ceiling Fan(s), Central Air, Electric
Fireplace Features
Brick, Family Room, Outside
Fireplaces Total
2
Flooring
Carpet, Tile
Heating
Central, Electric
Interior Features
Cable TV Available, Decorative Lighting, Granite Counters, High Speed Internet Available, Kitchen Island, Open Floorplan, Pantry, Vaulted Ceiling(s), Walk- In Closet(s), Second Primary Bedroom
Number Of Living Areas
1
Exterior
Construction Materials
Brick, Rock/Stone
Exterior Features
Covered Patio/Porch, Gas Grill, Rain Gutters, Kennel, RV/Boat Parking, Storage
Fencing
Chain Link
Garage Length
33
Garage Spaces
3
Garage Width
23
Lot Size Area
2.3730
Financial
Map
Community
- Address110 Live Oak Court Willow Park TX
- SubdivisionEl Chico
- CityWillow Park
- CountyParker
- Zip Code76087
Subdivisions in Willow Park
- Bankhead Commons
- Broadway Bus Park II
- Buena Vista
- Country Hollow
- Country Hollow Sales Phase 1
- Crown Pointe
- Crown Pointe Add
- Crown Pointe Add Ph IV
- CROWN POINTE ADDITION F-158
- Crowne Pointe
- El Chico
- El Chico Rev
- El Chico South
- Isaac O Headley
- Laguna Vista Estates
- Meadow Place Estates
- Meadow Place Estates Ph
- Meadow Place Ph 2
- North Chase
- Parker Ridge
- Ranch House
- Squaw Creek West
- Stage Coach Estates Ph
- The Porter Addition
- The Reserves At Trinity
- Trinity Meadow Addition
- Trinity Meadows
- West Oak Home Sites
- Willow Crest Estates
- Willow Park
- Willow Park Bus Plaza
- Willow Park Church Of
- Willow Park Village
- Willow Spgs
- Willow Spgs Oaks
- Willow Wood Add
Market Summary
Current real estate data for Single Family in Willow Park as of Apr 05, 2026
43
Single Family Listed
77
Avg DOM
215
Avg $ / SqFt
$495,973
Avg List Price
Property Summary
- Located in the El Chico subdivision, 110 Live Oak Court Willow Park TX is a Single Family for sale in Willow Park, TX, 76087. It is listed for $899,000 and features 5 beds, 4 baths, and has approximately 4,096 square feet of living space, and was originally constructed in 2016. The current price per square foot is $219. The average price per square foot for Single Family listings in Willow Park is $215. The average listing price for Single Family in Willow Park is $495,973. To schedule a showing of MLS#21224220 at 110 Live Oak Court in Willow Park, TX, contact your Spencer TX Real Estate, LLC agent at (817) 937-8532.
Similar Listings Nearby

110 Live Oak Court
Willow Park, TX










































