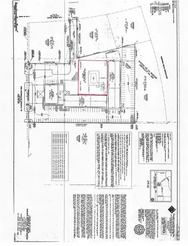
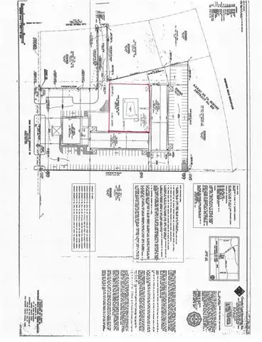
VISIBLE FROM I- 30! Unique opportunity to purchase a portion of land behind Red Roof Inn at 8520 West Freeway, White Settlement, TX 76108. Buyer will be responsible for obtaining a new survey, and re-platting. Great location for a retail center, office complex, medical or hospitality use, or an animal clinic (buyer to verify with City). Land sits just off Las Vegas Trail exit, behind new McDonald’s and KFC, with excellent visibility from I-30 and high daily traffic. The City of White Settlement is aware this land is for sale—buyers must consult with the city regarding proposed use and approval. Approximate boundaries outlined in red on photo' exact square footage to be confirmed by buyer. Rapid area growth, minutes to Downtown Fort Worth, JRB Naval Base, Parker County, and Loop 820. Not likely suitable for industrial use. Fantastic location for new development. Dream it, design it, build it!
Property Details
Price:
$650,000
MLS #:
20958015
Status:
Active
Baths:
0
Type:
Land
Subtype:
Unimproved Land
Subdivision:
Western Hills
Listed Date:
Jun 4, 2025
See this Listing
Schools
School District:
White Settlement ISD
Elementary School:
West
Middle School:
Brewer
High School:
Brewer
Interior
Exterior
Lot Size Area
0.0000
Financial
Map
Community
- Address00000 W Freeway White Settlement TX
- SubdivisionWestern Hills
- CityWhite Settlement
- CountyTarrant
- Zip Code76108
Subdivisions in White Settlement
- Allencrest
- Allencrest Add
- Altadena Heights
- Barnett J N Add
- Bass Add
- Bolligers Sub
- Brookdale Add
- Cambridge Add
- Casa Loma Add
- Convair Oaks Estates Add
- CONVAIR OAKS ESTATES ADDITION
- Cook Heights Add
- Farmers Add
- Foxfire Estates
- Glen Acres Add
- HARRIS CONVAIR HEIGHTS ADDN
- Hill View Addition
- John W Collett Surv Abs #262
- Mc Donnell Add
- MC DONNELL ADDITION
- Mc Donnell Parkside Add
- McDonnell Parkside Add
- Meadow Park Add
- Meadow Park Addition-White Settlement
- Meadowview Add
- Motorplace FWTX Condo Bldg 1
- MPUSA
- Norman Add
- Normandale
- NORMANDALE ADDITION
- Plainview Add
- Rashti & White Sub
- Redford Place Add
- Redford Place Addition
- Rowland O F Add
- Saddle Hills Add
- SADDLE HILLS ADDITION
- Stage Coach Hills Sec 2
- Stagecoach Hills Add
- Sunset Gardens Add
- Sunview Add
- Sunview Addition
- Ware C J Add
- Western Hills
- Western Hills Park Add
- White Settlement Gardens Add
- Whitney Crossing
- Wilson Cliff Add
Market Summary
Current real estate data for Land in White Settlement as of Mar 14, 2026
8
Land Listed
206
Avg DOM
$398,750
Avg List Price
Property Summary
- Located in the Western Hills subdivision, 00000 W Freeway White Settlement TX is a Land for sale in White Settlement, TX, 76108. It is listed for $650,000 and features 0 acres. To schedule a showing of MLS#20958015 at 00000 W Freeway in White Settlement, TX, contact your Spencer TX Real Estate, LLC agent at (817) 937-8532.
Similar Listings Nearby

00000 W Freeway
White Settlement, TX



