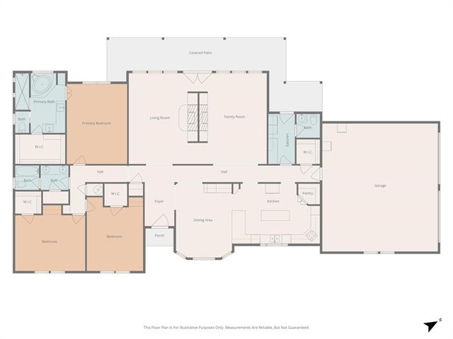
Experience elevated ranch living in Aledo ISD on 5.91 ag-exempt acres. This exceptional property combines refined comfort with professional equestrian functionality. The 2,569 sq ft home showcases vaulted ceilings and rich wood beams, featuring both a striking masonry fireplace and a high-efficiency wood stove that create a warm, inviting atmosphere—perfect for cool Texas evenings. The chef’s kitchen features granite countertops, double oven, and reverse osmosis filtration, providing an ideal setting for both entertaining and everyday living. The beautifully remodeled primary bath feels like your own private spa, complete with a picture window and jetted tub for ultimate relaxation. Additionally, the home features separate guest quarters with a half bath.
Outdoor living is exceptional, featuring a spacious concrete patio and artisanal outdoor fire pit, ideal for hosting summer gatherings. This space is further enhanced by a concrete pad already wired for a hot tub, offering the perfect spot to unwind and enjoy expansive Texas views. Designed with the serious horse owner in mind, the property is fully fenced and cross-fenced, with premium equestrian facilities that are second to none. The horse barn includes a dedicated tack room and four extra-large stalls: two featuring one inch premium mats and two with three quarter inch mats. All stalls include covered runs with automatic heated waterers for year-round comfort, plus hot water plumbed to the barn for professional bathing and grooming. The property is engineered with water plumbed to all three pastures and the lighted riding arena, which also features a dedicated sprinkler system for dust control. An additional loafing shed provides extra shelter, while the newly rewired shop offers ample room for equipment. This is a rare opportunity to own a property that seamlessly blends luxury living, elite equestrian amenities, and the tranquil beauty of Texas ranch life, all just minutes from DFW airport &' Ft Worth, Tx
Outdoor living is exceptional, featuring a spacious concrete patio and artisanal outdoor fire pit, ideal for hosting summer gatherings. This space is further enhanced by a concrete pad already wired for a hot tub, offering the perfect spot to unwind and enjoy expansive Texas views. Designed with the serious horse owner in mind, the property is fully fenced and cross-fenced, with premium equestrian facilities that are second to none. The horse barn includes a dedicated tack room and four extra-large stalls: two featuring one inch premium mats and two with three quarter inch mats. All stalls include covered runs with automatic heated waterers for year-round comfort, plus hot water plumbed to the barn for professional bathing and grooming. The property is engineered with water plumbed to all three pastures and the lighted riding arena, which also features a dedicated sprinkler system for dust control. An additional loafing shed provides extra shelter, while the newly rewired shop offers ample room for equipment. This is a rare opportunity to own a property that seamlessly blends luxury living, elite equestrian amenities, and the tranquil beauty of Texas ranch life, all just minutes from DFW airport &' Ft Worth, Tx
Property Details
Price:
$1,095,000
MLS #:
21167295
Status:
Active
Beds:
3
Baths:
2.1
Type:
Single Family
Subtype:
Single Family Residence
Subdivision:
Sylvan Valley Estates
Listed Date:
Feb 2, 2026
Finished Sq Ft:
2,569
Lot Size:
257,613 sqft / 5.91 acres (approx)
Year Built:
1992
See this Listing
Schools
School District:
Aledo ISD
Elementary School:
Patricia Dean Boswell Mccall
Middle School:
McAnally
High School:
Aledo
Interior
Bathrooms Full
2
Bathrooms Half
1
Cooling
Ceiling Fan(s), Central Air, Electric
Fireplace Features
Living Room, Masonry, Wood Burning, Wood Burning Stove
Fireplaces Total
1
Heating
Central, Electric, Fireplace(s), Wood Stove
Interior Features
Cable TV Available, Decorative Lighting, Flat Screen Wiring, Granite Counters, High Speed Internet Available, Kitchen Island, Pantry, Smart Home System, Vaulted Ceiling(s), Walk- In Closet(s)
Number Of Living Areas
1
Exterior
Carport Spaces
1
Construction Materials
Brick
Exterior Features
Rain Gutters, RV/Boat Parking, Stable/Barn
Fencing
Cross Fenced, Fenced, Full, Gate, Perimeter, Pipe, Wire, Wrought Iron
Garage Spaces
2
Lot Size Area
5.9140
Vegetation
Cleared, Grassed
Financial
Map
Community
- Address3017 Sylvan Valley Drive Weatherford TX
- SubdivisionSylvan Valley Estates
- CityWeatherford
- CountyParker
- Zip Code76087
Subdivisions in Weatherford
- 2080 Survey: White George
- 2126 Surv: David Jones
- 3 H Ranch Estates
- 3H Ranch Estates
- A
- A.J. Ball Survey
- ABST 885 SURVEY
- ABST: 1189
- ABST: 1189 SURVEY: SHIRLEY WM V D TR:
- ABST: 1221 SURVEY: SNOW, JEREMIAH
- Abst: 1467, Survey: T & P RR CO SUR 101
- Abst: 533, Survey: GORMAN A J, TR:, BLK:, SURV: A
- acreage
- Addison Hawkins Surv Abs #665
- Adell Corner
- Aka Batte Sub
- ALFRED T OBENCHAIN
- Anderson
- Andersons, Rev
- Andresons Add
- Apes Add
- Arapahoe Ridge 03
- Arapahoe Ridge III
- Arrowhead Point
- Ash Creek Ranch
- Austin Heights Ph 03
- Austin Heights Ph I
- Aw Simmons Surv Abs #2259
- B M Watts
- Ball First
- Bankhead Partners
- Bar H Ranch
- Bar H Ranche
- Bar H Rho
- Barmac
- Barnett Rdg
- Barnett Ridge
- Bayouth Medical
- Bedinger Place Ph 03
- Beverly James Survey
- Bill Evans Add
- Blue Bonnet Ridge Ph
- Blue Ridge Estates
- Bluebonnet Ridge
- Bluff Ridge
- Bobcat Pass
- Brackene
- Brackene Add
- Bradley John M
- Bradshaw
- Brazos Ridge Estates II
- Briarwood IV
- Briarwood Patio Homes
- Britt Acres
- BRITT Acres Phase 1
- Britt Acres Phase I
- Britton
- Britton Add Resub Blk 3
- Brock Field
- Brock Village
- Brooks Meadow
- BUSTER M W
- caldwell
- Callisto Fields
- Canyon Creek Ranch
- Canyon Creek Ranch Ph
- Canyon Valley Estates
- Canyon West
- Canyon West Ph
- Canyon West Ph III
- Canyon West Ph VI
- CANYON WEST PH VI, INTERIOR LOT
- Canyon West Ph Vii
- Carter Hills
- CARTERS
- Carters Add
- Cartwright Ranch Pc
- Castle Estates
- Causey Add
- Cedar Mountain Estates
- Cedar Ridge Ph II
- Chisholm Heights
- Chisholm Hts Ph 3
- Circle T Estates
- Clairmont Sub Ph 2
- Clear Creek Estate
- Clear Creek Estate Ph
- Clear Lake Country
- Clear Lake Country II
- Clear Lake Country III
- Clear Lake Estates
- College Park
- Colonial Creek Estates
- Columbus J Eddleman 320 Acre S
- Comanche Crossing
- Comanche Ranch
- CONNAWAYS
- Connaways 01
- Connaways 02
- Cool Place
- Corner Ranch Estates
- Country Brook Estates
- Country Brook Park Estate
- Country Club Heights
- Country Living Add
- COUTS
- Couts Add
- Crazy Horse Ranchos
- Crown Valley Add
- Crown Valley Add Ph
- Crown Valley Estates Ph
- Crown Valley PH III
- Crown Vly Ph 2-3a
- Crown Vly Ph 2-3b
- CRUZ DESIDERIO
- D J Dunn Add
- D Norton
- Dalton Heights
- David Moore Survey
- DAVIDSON J H
- Day 2 Day Bus Park Ph 2
- Day 2 Day Business Park
- Day Business Park PH 2
- Deerfield Estates
- Denton Heights
- Diamond G Estate
- Diamond Oak Ph 08
- Diamond Ridge Ranch
- Diamond Ridge Ranch Drainage
- Dianes Way
- Dove Hill
- Doyles Add
- Driftwood Ranch
- Durham& Milligan I-20 ADDN
- E Crockett Surv Abs 214
- E E Taylor Surv Abs 2473
- Eagle Bluff Ph 2 PC E-357
- Eagle Ridge Estates
- Eagle’s Bluff Ph 4
- Eagle’s Nest RV Park
- Eagles Bluff
- Eagles Bluff Ph 1
- Eagles Bluff Ph 2
- Eagles Bluff Ph 3
- Eagles Bluff Ph 4
- Eagles Bluff Ph 5
- Eagles Bluff-Ph 3
- Eagles Crest Estates Ph
- EASLEY JOSHUA G
- East Lakeview Unrec
- East Pointe Plaza
- Echo Valley
- Eddleman Columbus
- Edmiston A E
- Edmiston Survey
- Elevation Estates
- Elevation Estates Pc
- Elevation Estates Ph 2
- Elevation Estates PH2
- Elk Hollow Estates
- Ellis Creek Ranch
- Elsberry Miller Survey A-873
- Estancia
- Estates Of Timber Creek
- Eureka Place
- Eureka Trail Add Pc
- Feather Edge Estates Pc
- Flat Rock Parc
- Focht Add
- Forest Ridge Add
- Fossil Ridge III
- Fossil Ridge Ph III
- Fox Hollow II
- FOX HOLLOW PH V
- Freeman Ranch
- Friendship Estates
- GALLOWAY RESERVE-B
- George M Plumlee Surv Abs #224
- Glen Hollow Ranch
- Glenhollow Ranch
- Glenhollow Ranch PH 1, F-102
- Glenhollow Ranch Ph 2
- GLENHOLLOW RANCH PH 2, F-360
- Glenn Add
- Goodnight Ranch
- Goodnight Trail
- Grace Lane Estates
- Grace View Estates
- Graceland
- Grantham Add
- Graystone Phase 1
- Green Acres
- Green R S
- Greenlee Bus Park
- Greenlee Business Park
- Greenwood Ranch Estates
- Gremminger Ranch At Southridge
- Greyhound Landing
- Greyhound Lndg
- Greyhound Lndg Sub
- H Cretsinger Surv Abs #306
- Ha Boone
- Haley’s Addition
- Harmony
- Harmony Oaks Estates Ph
- Hawkins Add #7
- Haydon Creek Ranch
- Haydon Creek Ranch Pc
- Hd Green Add
- Heather Place
- Heights Of Weatherford Estates
- Heritage Estates
- Heritage Meadows Ph
- Heritage Spgs
- Hidden Creeks
- Hidden Spgs Ranch Pc
- HIDDEN SPRINGS RANCH
- Highland Park
- Hillcrest Add
- Hills Of Monticello Ph
- Hobson Indust Sec 02
- Horseshoe Bend
- Horseshoe Bend Air Park
- Horsheshoe Bend
- Hudson Add The
- Huggins
- I20 & Center Point Road
- InMann Henry
- iorazos
- Ivey Add
- J B Jones Tract
- J C Campbell Surv Pat 114 Volu
- J Mays Surv Abs #903
- J Nowling Survey
- J.S. Amos
- James Clayton Surv Abs #226
- JAMES MCKELVEY
- JAMES R CAMPBELL
- JAMIES VILLAS F-106
- JH Robertson
- Jh Robertson Surv Abs #1150
- John M Bradley
- Joseph S Amos Survey
- Joseph Trimble
- Katy Ranch at Friendship Springs
- KEARBY JOHN B
- Lago Linda
- Lago Lindo Pc
- Lake Hills
- Lake Hills Estates Sec
- Lake Weatherford
- Lake Weatherford Leasehold
- Lakeshore Hills
- Lakeway Estates Ph II
- Lambert Meadows
- Liberty Meadows Ph II
- Liberty Meadows Ph III
- Lindas Creek Add
- Live Oak Hills
- Lockwood Estates
- Lockwood Estates Ph 02
- Lockwood Ph IV Add
- Lone Oaks Apartments Addition Phase 2
- Lone Oaks of Weatherford
- Lone Oaks Phase II
- Lonestar Ranch Estates
- Lots Surrounding Lake Weatherfor
- Lucas 02
- M J Hawkins Surv Abs #720
- M&T Estates
- Major Indust
- MAJOR INDUSTRIAL
- Mason Pond Add
- Mattlock
- Mccallls Add
- McCalls
- Mccarty
- Mcclendon Estates Pc
- Mcclendon Mdws Ph 2
- Meadowview
- Midway Estates Pc
- Milliken Heights
- Millsap Rev Add
- Mineral Heights
- Montclaire
- Montgomery AJ
- Morgan Manor
- Morgan Meadows Add
- no
- No Subdivison
- North Main
- North Star Crossing
- Northwest Add
- Nowlin Survey
- Oak Hill West
- Oak Hill West Dev
- Oak Spgs Add Ph
- OAKRIDGE ACRES NORTH
- Oakwood Estates
- Odel Add
- Old Oaks
- Olive Branch Estates III
- Outback Ac Ph 1
- Outback Acres II
- Outback Acres Ph III
- Owen and Wilbanks
- Ox Mill Creek Ranch
- Pace
- Pace Add
- Pace Addition
- Par Co West Loop
- Park Oaks Add
- Parker County
- Parker Mdws
- Parker Oaks
- Parker’s Draw
- Partagas Add
- Partagas Add Ph I
- Partagas Add Ph II
- Patriots Outpost
- Patton & Browder Surv Abs 2414
- Peaster Original Town
- Pioneer Crossing Pc
- Platinum Ridge Esates
- Platinum Ridge Estates
- Pleasant Valley Ph II
- Pleasant Valley Ph III
- Price & Millers
- PS Hall Surv Abs #659
- Quail Run Estates
- Quail Spgs Ranch
- Quail Springs Ranch
- R000068349
- Ranches West Ph
- Ranches West Ph 2
- Ranches West Ph 3
- Rangewood
- Reata Ranch
- Red Oak Ranch
- Rentz Place
- Revere Creek Ph II
- Rhodes Ranch Estates Ph
- Ric Williamson Industrial Park
- Rio Brazos
- riobrazos
- River Ranch on The Brazos
- Roberts Add
- Rock Creek Ranch Estates
- Rocky Rdg Ph 2
- Rocky Rdg Ph 3b
- Rocky Ridge
- Rolling Hills Shrs Sec A
- Rolling Hills Shrs Sec B
- Rolling Hills Weatherford
- Rolling J Ranch Estates
- Rolling Valley
- Roselawn 01
- Roselawn 02
- Roselawn 03
- RS GREEN SURV
- Ryker Ridge
- Sabathney Acres Park
- Saddle Club Estates Ph
- Saddle Ridge Estates
- Saddle Ridge Estates Fka
- SaddleCrest Estates
- Saddlecrest Estates Ph 2
- Saddlecrest Ests Ph 1
- Sanchez Creek 03
- Sandstone Estates
- Sandstone Estates Ph Two
- Santana Rdg
- Santana Rdg Ph 2
- Santana Rdg Sub
- Santana Ridge
- Santana Ridge Estate
- Santana Ridge Estates
- Santorini
- see legal
- Shannon
- Silver Sage Farms
- Silver Sage Farms Ph
- Silver Sage Farms Ph II
- Silverado On The Brazos
- Silverstone
- Silverstone Pearson Ranch
- Silverstone Pearson Ranch Ph 4
- Silverstone Pearson Ranch Ph 9
- skidmore lore
- Sloans Add
- Snow Jeremiah
- Sonora Estates
- SOUTH HILLS ESTATES
- Southpark Add
- Soward & Dugan
- Sprouts Weatherford Point
- Stafford Farm Estates Pc
- Stallion Meadows Estates Ph
- Steed Estates
- Stephen F. Jones
- Stone Creek Ranch
- STONE LAKE PH 1, F-596
- Stonebridge Estates Ph II
- Stonegate Meadows
- Story Book Homes Add
- Sunrise Point
- Sunrise Point Ph 2
- Sunshine Terrace
- Sweet Spgs Estates
- Sweet Spgs Villas Pc
- T & P RR CO
- T & P Rr Co Surv #141 Abs #144
- T&Prr Co Surv Sec 227 Abs 1486
- Taylor Road Estates
- THE CHARLES AND PEG PEARCY ADDITION
- The Country Place
- The Oaks
- The Oaks Of Parker
- The Preserve On Ash
- The Preserve On Ash Creek
- The Ranches of New Authon
- The Reserve Of Brock
- THE RESERVE OF BROCK, PC E-663
- The Vistas On Veal
- Timber Ridge Estates
- Timberview Preserve
- Town Creek Dev Ph
- Town Creek Development Ph II
- Trace Ridge
- Trace Ridge Ph I
- Tranquility Ranch
- Trinity Oaks Ranch Pc
- Tuckers Place
- Twin Creek Estates Pc
- Twin Creeks Estates
- Twin Creeks Estates Pc
- University Hills
- University Hills Ph 1
- University Hills Ph I
- University Hills Ph II
- V.V. Harris Survey
- Valley Trails Estates
- Van Brush Sub
- Veasey
- Villas at Heritage Pointe
- Villas of Heritage Pointe
- Vine Street Add
- Vintage Oaks
- Vintage Oaks Ph 2
- Virginia Place Add
- Virginia Place Addition
- Waterford Park
- Wayside Indust Add Pc
- Weatherford
- Weatherford Mini Ranch Estates
- Weatherford Original Town
- West Ranch Estates
- Westend Estates
- Western Lake Estate
- Western Lake Estates
- Western Lake Estates A
- Western Lake Estates B
- Western Lake Estates E
- Western Lake Estates F
- Westover Village Estates Ph
- Westpark
- Westpark Addition
- Westwood Estates
- Westwood Estates 02 & 03
- Whispering Oaks
- Willhawk Add
- William Add
- Willow Creek
- Willow Creek Ph II
- Winchester Ranch Estate
- Winchester Ranch Estates
- Windmill Creeks
- Windmill Creeks Sub
- Windmill Meadows Pc
- Windward Estate
- WK Baylor
- WM Barker Survey
- Woodland Hills
- Woodland Lakes
- Woodland Lakes Pc
- Woodlands Of Parker Co
- Woodlands West
- Wossum Ranch
- Wossum Ranch Ph 3
- Yeoman Add
- Yeomans
- Yeomans Add
- Yes
- Zanetti Place
- Zion Hill Estates Ph II
Market Summary
Current real estate data for Single Family in Weatherford as of Mar 14, 2026
644
Single Family Listed
106
Avg DOM
292
Avg $ / SqFt
$672,207
Avg List Price
Property Summary
- Located in the Sylvan Valley Estates subdivision, 3017 Sylvan Valley Drive Weatherford TX is a Single Family for sale in Weatherford, TX, 76087. It is listed for $1,095,000 and features 3 beds, 2 baths, and has approximately 2,569 square feet of living space, and was originally constructed in 1992. The current price per square foot is $426. The average price per square foot for Single Family listings in Weatherford is $292. The average listing price for Single Family in Weatherford is $672,207. To schedule a showing of MLS#21167295 at 3017 Sylvan Valley Drive in Weatherford, TX, contact your Spencer TX Real Estate, LLC agent at (817) 937-8532.
Similar Listings Nearby

3017 Sylvan Valley Drive
Weatherford, TX
















































































