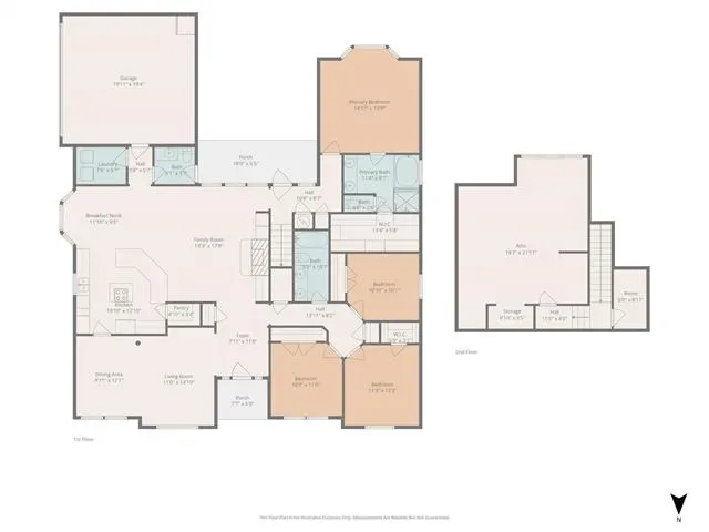
Welcome to 7908 Bridlewood Drive in North Richland Hills, a spacious home offering room to grow in an established Mid-Cities neighborhood. This property features multiple living areas and a functional floor plan designed for everyday comfort and long-term versatility. A standout feature is the unfinished upstairs gameroom with HVAC already in place, providing an excellent opportunity to customize additional square footage into a media room, home office, playroom, workout space, or secondary living area. In addition, this home presents a valuable opportunity to update and personalize finishes to match your own style, making it ideal for buyers looking to complete cosmetic updates and build equity over time. Buyers searching for homes with bonus space, expansion potential, renovation potential, or value-add opportunities will appreciate the flexibility this property offers. Conveniently located near major highways, shopping, dining, parks, and within Birdville ISD, this North Richland Hills home provides accessibility to Fort Worth, Keller, and the greater DFW area. If you are looking for flexible living space, unfinished gameroom potential, and a prime Mid-Cities location with room to make it your own, this property delivers both comfort and future upside. Home is occupied, scheule an appointment to view today!
Property Details
Price:
$430,000
MLS #:
21189810
Status:
Pending
Beds:
4
Baths:
2.1
Type:
Single Family
Subtype:
Single Family Residence
Subdivision:
Bridlewood Add
Listed Date:
Feb 26, 2026
Finished Sq Ft:
2,411
Lot Size:
9,408 sqft / 0.22 acres (approx)
Year Built:
1993
See this Listing
Schools
School District:
Birdville ISD
Elementary School:
Greenvalle
Middle School:
Northridge
High School:
Richland
Interior
Bathrooms Full
2
Bathrooms Half
1
Fireplace Features
Brick, Gas, Living Room
Fireplaces Total
1
Heating
Central, Fireplace(s), Natural Gas
Interior Features
Built-in Features, Decorative Lighting, Double Vanity, Eat-in Kitchen
Number Of Living Areas
2
Exterior
Garage Spaces
2
Lot Size Area
0.2160
Financial
Map
Community
- Address7908 Bridlewood Drive North Richland Hills TX
- SubdivisionBridlewood Add
- CityNorth Richland Hills
- CountyTarrant
- Zip Code76182
Subdivisions in North Richland Hills
- Ag Walker Surv
- Brandonwood Estates Add
- Briarwood Estates
- Bridlewood Add
- Cambridge Estates
- Cambridge Manor
- Cambridge Place
- Cambridge Village
- Carston Court
- Century Oaks Add
- City Point
- City Point Add
- Clear View Add
- College Circle Shopping Cnt Ad
- College Hills Add
- College Hills Addition
- COLLEGE HILLS ADDITION-NRH
- Condra, John Survey
- Coventry Place Estates Add
- Crestwood Estates Add
- Culp Add
- Diamond Loch Add
- Diamond Loch North Add
- DIAMOND PARK
- DIAMOND PARK ESTATE
- Ember Oaks Add
- Emerald Hills Add
- Estates At N R H
- Fair Oaks Estates Add
- Flamingo Estates Add
- Forest Glenn Add
- Forest Glenn East Add
- Forest Glenn West
- Forest Glenn West Ph II
- Fossil Creek Trails Add
- Foster Village
- Foster Village Add
- Fountain Ridge
- Fox Hollow
- Fox Hollow Add
- Fresh Meadows Estates
- Glenann Add
- Glenwyck Add
- Glenwyck Villas Add
- Grace Meadows
- Graham Ranch
- Graham Ranch Ph 02
- Haltom Ranchland
- Harmon Farms
- Hill N Oaks Place Add
- Hillview Add
- Holder Smithfield Estates
- HOLIDAY EAST ADDITION BLOCK 1A LOT 27
- Holiday Hills Add
- Holiday Hills Addition
- Holiday North Add
- Holiday West
- Holiday West Add
- Holiday West Addition
- Home Town NRH West
- Hometown
- Hometown Canal District
- Hometown Canal District Ph 4
- Hometown Canal District Ph 5a
- Hometown Canal District Ph 6
- Hudiburg Add
- Iron Horse Add
- Iron Horse Commons Ph 1
- Iron Horse Commons Ph 2
- John Condra Survey
- John H Barlough Suevey
- Kelley H W Estates
- Kingswood Estates
- Kingswood Estates Add
- Lightfoot Add
- Londonderry Add
- Lonsdale Add
- Lynncrest Add
- Maroaks Add
- MCCOMMAS, JOHN SURVEY Abstract 1040 Tract 2B
- Meadow Crest
- Meadow Lake Addition
- Meadow Lakes Add
- Meadowlakes Villas Add
- Miranda Addition
- Morgan Meadows Sub
- N Richland Hills Town Center
- no
- Nob Hill Centre Add
- Nortex Add
- North Hills
- North Hills Add
- North Park Estates
- North Park Plaza
- North Richland Hills Add
- North Richland Hills Addition
- North Ridge Add
- OAKVALE ADDITION
- Parkman Add
- Peck, Thomas Survey Abstract
- Powell Sub
- Precint Line Office Park
- Richaven
- Richaven Sub
- Richfield At The Parks Add
- Richfield Sub
- Richland Heights Add
- Richland Hills West Add
- Richland Oaks Sub
- Richland Terrace Add
- RICHLAND TERRACE ADDITION
- Rumfield Estates
- Shady Oaks Add
- Skyline Homes Add
- Smith Farm
- Smith Farm Add
- Smithfield Acres Add
- Smithfield Corners Add
- Snow Heights Add
- St Joseph Estates
- Stonybrooke Add
- Stonybrooke South Add
- Sunny Meadow Add
- Tandy K Martin
- The Grove
- Thornbridge
- Thornbridge Add
- Thornbridge East Add
- Tivoli Garden Estates
- Town Walk Chase Add
- Towne Oaks Add
- Urban Trail Add
- Urban Trails
- Urban Trls Cottages
- Valley Park Estates
- Village Cooperative of Century Hills
- Villas at Smithfield
- Villas of Hometown
- Wafarer Addition
- Walker
- Whispering Oaks
- Whispering Oaks Nrh
- Windcrest Add
- Windsor Park Add
- Woodland Oaks Add
Market Summary
Current real estate data for Single Family in North Richland Hills as of Mar 14, 2026
200
Single Family Listed
64
Avg DOM
202
Avg $ / SqFt
$471,292
Avg List Price
Property Summary
- Located in the Bridlewood Add subdivision, 7908 Bridlewood Drive North Richland Hills TX is a Single Family for sale in North Richland Hills, TX, 76182. It is listed for $430,000 and features 4 beds, 2 baths, and has approximately 2,411 square feet of living space, and was originally constructed in 1993. The current price per square foot is $178. The average price per square foot for Single Family listings in North Richland Hills is $202. The average listing price for Single Family in North Richland Hills is $471,292. To schedule a showing of MLS#21189810 at 7908 Bridlewood Drive in North Richland Hills, TX, contact your Spencer TX Real Estate, LLC agent at (817) 937-8532.
Similar Listings Nearby

7908 Bridlewood Drive
North Richland Hills, TX










































