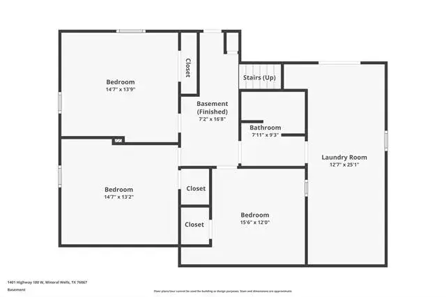
Big home. Big yard. Big potential. Looking for a project home with space, character, and potential? This spacious 4-bedroom, 2-bath home offers over 2,400 square feet of living space on almost a full acre of land. There’s already a detached workshop waiting for you. You’ll love the location: just 2 minutes from Palo Pinto General Hospital, less than a minute to West City Park, and only 5 minutes from downtown Mineral Wells. Yes, it needs some work — especially downstairs — but that’s where the opportunity comes in. With some vision and elbow grease, this property could become the perfect home, a solid investment, or your next renovation project. Homes with this much space and land don’t come around often in Mineral Wells. Bring your vision and make it shine! The property is zoned General Retail but can still be used as residential.
Property Details
Price:
$189,000
MLS #:
21064934
Status:
Active
Beds:
4
Baths:
2
Type:
Single Family
Subtype:
Single Family Residence
Subdivision:
Edgewood
Listed Date:
Sep 19, 2025
Finished Sq Ft:
2,408
Lot Size:
33,541 sqft / 0.77 acres (approx)
Year Built:
1948
See this Listing
Schools
School District:
Mineral Wells ISD
Elementary School:
Houston
Middle School:
Mineralwel
High School:
Mineralwel
Interior
Bathrooms Full
2
Cooling
Ceiling Fan(s), Central Air, Electric
Fireplace Features
Wood Burning
Fireplaces Total
1
Flooring
Luxury Vinyl Plank, Wood
Heating
Central, Electric
Interior Features
High Speed Internet Available
Number Of Living Areas
1
Exterior
Carport Spaces
1
Construction Materials
Frame, Siding
Lot Size Area
0.7700
Financial
Map
Community
- Address1401 Highway 180 Mineral Wells TX
- SubdivisionEdgewood
- CityMineral Wells
- CountyPalo Pinto
- Zip Code76067
Subdivisions in Mineral Wells
- AB 1217 TR-14-A
- Ab 307 Tr 1 1 W E Lane G#10307
- AB 716 TR 9A T&P RYCO
- AB 862
- AB 865
- Adds Add
- Airflyte
- Arrington
- Barkwood Acres
- Bellmeade
- Bluffview Estates
- Bluffview Estates Add
- Brazos Heights
- Brazos Mountain Ranch
- Brazos Mountain Ranch Ph 1
- Brazos Mountain Ranch Ph 2
- Brazos Mountain Ranch Ph 3
- BRAZOS MOUNTAIN RANCH PH I
- Brazos Rver Abs 870
- Brazos west
- C H GLIDEWEL
- Carlton
- Chapman 01
- Cliffs Ph X Sub
- COLLEGE
- Crestwood
- Crestwood Add
- D BOURNE
- DILLINDER
- Dismuke Add
- DL PEERSON
- Eagle’s Crest
- Edgewood
- Edgewood Ad
- Edgewood BLK 12 LT 14
- Edgewood BLK 12 LT 15
- Elmhurst
- FH Gray Survey – Ab 206
- Fort Walters
- French
- Ft Wolters
- Garden Valley
- Goodwin 02
- Goodwin 03
- Goodwin Add
- Grandview
- GRANDVIEW ACRES 3RD
- Hall Ce
- Highland Park
- Hit
- Hitt
- Hitt Add
- Holiday East
- HOLIDAY HILLS ESTATES
- HT Henry AKA Lodal Land Tr 7
- J DIMKIN
- J Dimkin Survey Abs 162
- J Dimpkins NW
- Jacks Add
- John Quarter Acres Add
- Johnson Qtr Acre
- Jon Stephens
- Kidwell
- La Grand
- Lakeview Place
- Lamar Heights
- LAWN PLACE #1
- Lawn Place 01
- Lazy J Estates
- Longhorn Estates Ph I
- Lynch
- MH379
- Midway Heights
- Mineral Wells Ind Pa
- Morningside
- Murco Heights
- N A
- North Oak Estates
- Northwood
- Olson Add 05
- Oneal & Cunningham
- P H PRICE
- Palo Pinto County
- Parkview
- Pasadena Heights
- R STARR
- R Starr Addition
- Remington Ranch
- Remington Ranches
- Ridgewood
- Ridgewood Add
- River Bend Ranch
- River Canyon Ranch
- Riverside Acres
- Ruidoso Ranch
- RYCO
- S & B N
- S & B W
- see legal
- Shady Oak Estates
- Slaughter & Barber North Add
- Slaughter & Barber West Add
- South Fields
- Springhill Add
- T & P Rr Co Surv Abs #1541 Sec
- T & Prr Co Suvey Abs #340
- T E & L Co Surv 2521 Abs 618
- t&p rr co
- T&P RR CO #15
- T&P RY CO
- TB SMITH
- TBD
- Te & Co Survey Sec #2549
- Te & L Co Surv #256
- TE&L CO
- The Ridge
- VALLEY VIEW ESTATES
- Ventage Acres
- Watermark Apartments
- Western Hills
- Wicklund
- Wiggins
- Wiggins Add
- Wolters
- Wolters 300 Industri
- Wolters 500 Ind Add
- Wolters Indust P
- Wooded Hills Estates
- Wynnwood
- Wynnwood 02
Market Summary
Current real estate data for Single Family in Mineral Wells as of Mar 14, 2026
117
Single Family Listed
111
Avg DOM
192
Avg $ / SqFt
$453,739
Avg List Price
Property Summary
- Located in the Edgewood subdivision, 1401 Highway 180 Mineral Wells TX is a Single Family for sale in Mineral Wells, TX, 76067. It is listed for $189,000 and features 4 beds, 2 baths, and has approximately 2,408 square feet of living space, and was originally constructed in 1948. The current price per square foot is $78. The average price per square foot for Single Family listings in Mineral Wells is $192. The average listing price for Single Family in Mineral Wells is $453,739. To schedule a showing of MLS#21064934 at 1401 Highway 180 in Mineral Wells, TX, contact your Spencer TX Real Estate, LLC agent at (817) 937-8532.
Similar Listings Nearby

1401 Highway 180
Mineral Wells, TX

































