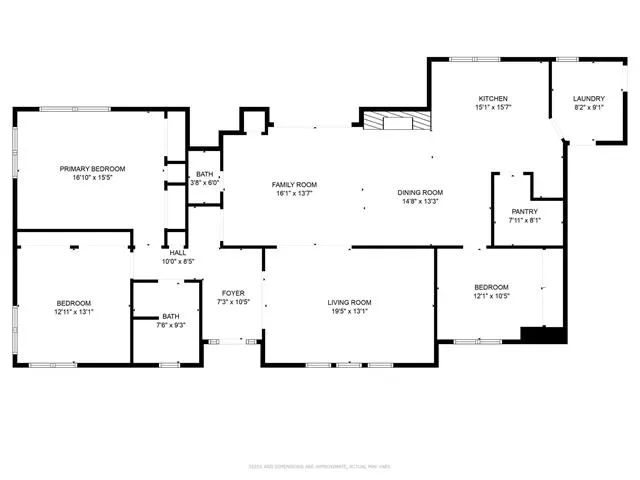
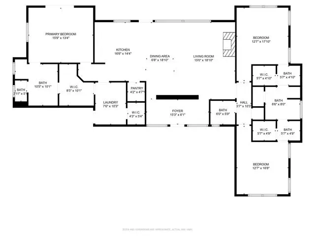
Income producing Equestrian and Cattle Property in the heart of cowboy country with multiple residences, two large homes, one apartment, and a four bed four bath bunkhouse. Covered arena, 37 stalls, outdoor arena, and working cattle pens. Previous home to Kasen York Performance Horses. This premier equestrian property spanning 123± acres, just one hour west of Fort Worth. Perfectly blending residential comfort with professional grade equestrian and cattle facilities, this property offers an exceptional opportunity for horse enthusiasts or professional trainers. Residential features include two recently updated homes, ideal for hosting guests, accommodating staff, or enjoying your own private living quarters, new apartment with one bedroom 1.5 bath, bunkhouse with four private rooms and laundry. Equestrian facilities include two Barns with 37 total stalls, additional pens and traps, cattle lanes, outdoor 150 ft octagon arena, covered arena 120×250, new 8 horse walker covered, restroom, and washroom, perfect for hosting events or competitions. Additional features, equipment barn-hay and large shop for secure storage. RV hookups. Three ponds adding both natural beauty and functionality to the property. This property is more than a ranch—it’s a fully equipped equestrian paradise with endless potential. Whether you’re looking to host events, train professionally, or enjoy a private retreat, this property delivers the perfect balance of lifestyle and functionality. All ranch equipment negotiable' cab tractor, arena drag, skidsteer, two side by side atv''s, and manure spreader.
Property Details
Price:
$4,250,000
MLS #:
20860895
Status:
Active
Beds:
3
Baths:
2.1
Type:
Single Family
Subtype:
Farm/Ranch
Listed Date:
Mar 17, 2025
Finished Sq Ft:
2,654
Lot Size:
5,357,880 sqft / 123.00 acres (approx)
Year Built:
1978
See this Listing
Schools
School District:
Lipan ISD
Elementary School:
Lipan
Middle School:
Lipan
High School:
Lipan
Interior
Bathrooms Full
2
Bathrooms Half
1
Cooling
Electric
Fireplace Features
Gas, Gas Logs
Fireplaces Total
1
Flooring
Carpet, Laminate
Heating
Electric
Interior Features
Eat-in Kitchen, Granite Counters, Kitchen Island, Open Floorplan, Pantry
Number Of Living Areas
1
Exterior
Construction Materials
Brick, Rock/Stone, Siding
Exterior Features
RV Hookup, Stable/Barn, Storage
Fencing
Cross Fenced, Fenced, Perimeter
Garage Height
9
Garage Length
22
Garage Spaces
2
Garage Width
22
Lot Size Area
123.0000
Number Of Residences
3
Number Of Tanks And Ponds
3
Number Of Wells
2
Vegetation
Grassed
Financial
Map
Community
- Address17939 N Fm 1189 Lipan TX
- CityLipan
- CountyErath
- Zip Code76462
Subdivisions in Lipan
- Abstract 217-Lewis P Cooke Survey
- Acres 53.659, A0493 LOPEZ JOSE F
- Aiken W J Ne
- AIKEN W J NORTH
- Blanton Elijah
- C SHIPMAN – ABST 520
- C-Bell Add
- George Treighen Surv Abs #431
- GW TREIGHEN Abs #431
- HILL COUNTRY SEC 1
- Homestead Acres
- James Cole Surv Abst #91
- KICKAPOO ESTATES
- Lipan
- new subdivision
- no
- OLD WD RANCH
- Old Wd Ranch Ph I Sec D
- Old Wd Ranch Ph I Sec E
- OLD WD RANCH SUBDIVISION
- Roping Oaks
- Sugar Tree on the Brazos
- Sugartree Golf Club Add
- Sugartree Golf CLub Addn Ph III
- Sugartree On The Brazos
- THE RANCHES AT STAR HOLLOW
- Wilson Bend Ph 1
- Wilson Bend Phase 1
- WM D THOMASON
Market Summary
Current real estate data for Single Family in Lipan as of Mar 14, 2026
48
Single Family Listed
137
Avg DOM
487
Avg $ / SqFt
$977,786
Avg List Price
Property Summary
- 17939 N Fm 1189 Lipan TX is a Single Family for sale in Lipan, TX, 76462. It is listed for $4,250,000 and features 3 beds, 2 baths, and has approximately 2,654 square feet of living space, and was originally constructed in 1978. The current price per square foot is $1,601. The average price per square foot for Single Family listings in Lipan is $487. The average listing price for Single Family in Lipan is $977,786. To schedule a showing of MLS#20860895 at 17939 N Fm 1189 in Lipan, TX, contact your Spencer TX Real Estate, LLC agent at (817) 937-8532.
Similar Listings Nearby

17939 N Fm 1189
Lipan, TX










































