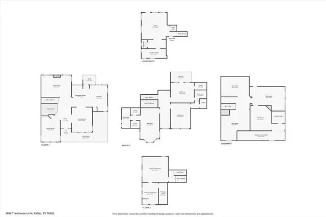
Tucked away on nearly an acre at 1606 Treehouse Lane North, this inviting retreat offers privacy, space, and a peaceful escape from the hustle and bustle. An expansive front porch sets the tone, welcoming you into a home designed for both everyday living and entertaining. Inside, the heart of the home unfolds with a spacious dining room, updated kitchen, comfortable living room, and a dedicated home office—perfect for today’s flexible lifestyles. The primary suite is thoughtfully positioned halfway up the stairs and features abundant storage and a beautifully updated bathroom with brand-new tile flooring, tiled shower and bathtub surround, updated counters, and fresh paint. Upstairs, you’ll find three additional bedrooms—one with its own en suite bath, while the other two share a well-appointed bathroom. The true showstopper is the basement—yes, a basement in Texas! A rare find in Texas, the basement offers approximately 1,100 square feet of additional versatile space with its own private entrance. Perfect as a creative hub or multi-generational living area, it is currently utilized as a home office and includes a soundproof room ideal for a podcast studio, along with space for a gym, game room, or additional living quarters. Step outside into your own private oasis, where natural beauty and thoughtful design come together effortlessly. The backyard is a true summer showpiece, featuring a sparkling pool and expansive deck—perfect for lively gatherings or peaceful evenings under the stars. Whether hosting guests or unwinding in total serenity, this outdoor retreat is designed for unforgettable moments. A rare offering that seamlessly blends space, versatility, and tranquility into one exceptional place to call home. ***Tax records show this home has 4,415 square feet. The gross living area of this house measured to be 3,290 square feet. The basement measured an additional 1,125 square feet.**
Property Details
Price:
$915,000
MLS #:
21215002
Status:
Active
Beds:
4
Baths:
3.1
Type:
Single Family
Subtype:
Single Family Residence
Subdivision:
Treehouse Add
Listed Date:
Mar 21, 2026
Finished Sq Ft:
3,290
Lot Size:
43,037 sqft / 0.99 acres (approx)
Year Built:
1991
See this Listing
Schools
School District:
Keller ISD
Elementary School:
Florence
Middle School:
Keller
High School:
Keller
Interior
Bathrooms Full
3
Bathrooms Half
1
Cooling
Ceiling Fan(s), Central Air, Electric
Fireplace Features
Heatilator
Fireplaces Total
1
Flooring
Carpet, Ceramic Tile, Wood
Heating
Central, Electric
Interior Features
Cable TV Available, Central Vacuum, Decorative Lighting, High Speed Internet Available, Loft, Multiple Staircases, Vaulted Ceiling(s)
Number Of Living Areas
3
Exterior
Construction Materials
Siding, Vinyl Siding
Exterior Features
Balcony, Covered Deck, Covered Patio/Porch, Rain Gutters
Lot Size Area
0.9880
Pool Features
In Ground
Financial
Map
Community
- Address1606 Treehouse Lane Keller TX
- SubdivisionTreehouse Add
- CityKeller
- CountyTarrant
- Zip Code76262
Subdivisions in Keller
- 5 Pear Place Add
- Adalina at Bloofield
- Ashbrook Add
- Ashbrook At Hidden Lakes Add
- Bear Creek Estates
- BELAIRE HILLS ESTATES
- Bella Casa
- Bella Vista
- Benson Sub
- Berry Add
- Bloomfield At Hidden Lakes
- Bluebonnet Trails Add
- Bourland Oaks
- Brentwood Estates
- Bridgewood
- Brooks Sarah Estates
- Brookstone Villas
- Buchanan Sub
- Burbine Ad
- Burbine Add
- Bursey Ranch Add
- BURSEY RANCH ADDITION
- Carriage Gate Add
- Centerview Office Park Add
- Chase Oaks
- Chase Oaks Add
- Cherry Grove Estates Add
- Chisolm Oaks Bus Park
- Creekview Add
- Creekwood At Hidden Lakes
- Cross Timbers Acres Add
- Crosstimbers Office Park Add
- Daniel Barcroft Survey
- Driscoll Office Park
- Estates of Lyndhurst
- Fall Creek Estates
- Flanigan Hill Add
- Florence Place Add
- Flower Add
- Forest Lakes Estates Add
- Gary Add
- Gean Estates
- Greenway Park Add
- Greenway Park Addition
- Hamby Sub
- Harmonson Farms
- Harpers Glen
- Harvels Add
- Heatherwood Estates
- Hickory Hollow Estates
- Hidden Lakes
- Hidden Lakes Center Keller
- Hidden Lakes, Retreat at
- High Chaparral Add
- Highland Meadows Estates
- Highland Oaks Add
- Highland Terrace
- Highland Terrace Mobile Hm Park
- Holland Acres Addition
- Holly Hills Add
- Hudnall Farm Add
- Idlewood Estates
- Idlewood Oaks-Hidden Lakes
- Indian Meadows Add
- John Martin Survey
- Johnson Add
- Johnson Addition-Keller
- Johnston Add
- Keller City Add
- Keller Heights North Add
- Keller High School
- Keller Town Center
- Keller Town Center Add
- Keys Add
- Lakes Of Highland Oaks The
- Manors At Waterford The
- Marshall Rdg Ph 6d
- Marshall Ridge
- Marshall Ridge North
- Martins
- Meadowlands Add
- Meadowlands Add UNIT C
- Meadowlands Add Keller
- Meadows at Bear Creek
- Meadows At Bear Creek The
- Melody Hills East Add
- Neace
- Northeast Oaks Add
- Oak Bend Estates
- Oak Country Estates
- Oakbrook Hills Sub
- Overlook The
- Overton Ridge Add
- Park Add
- Parkwood
- Parkwood Sub
- Pearson Crossing Keller
- Philippi Add
- Preserve At Hidden Lakes
- Preserve At Hidden Lakes The
- Quail Valley Estates
- Quest Court Office Park
- Retreat At Hidden Lakes The
- Ridgewood Estates
- Riverdance Ph 1
- Riverdance Ph 3
- Roberts Cut Off
- Robinson Meuli
- Saddlebrook Estates Add
- Samantha Spgs Estates
- Samantha Springs Estates
- Samuel Needham Surv Tract 1d01
- Seng Add
- Shadowbrook Place Add
- Shemwell Add
- Shemwell Addition
- Silver Lake Add
- Silverleaf
- Stewart Estates Add
- Stoneglen
- Stoneglen Add
- Stoneridge
- Sunrise Estates
- Sweet O L
- Sympson Michael
- Tolbert Add
- Town & Country Village Brock Add
- Treehouse Add
- Tuscany Keller
- Twin Lakes Add
- Tyson Add
- Valle Vista Add
- Villas Of Stone Glen Condos
- WALKER, JOSIAH SURVEY ABSTRACT 1604 TRACT 6D0
- Wellsgate Terrace
- West Bursey Ranch Add
- WEST BURSEY RANCH ADDITION
- Westbury Estates
- Westpark Add
- Wildwood Add
- Williamsburg Estates
- Willis Coves Add
- Windcrest Estates Add
- WINDCREST ESTATES ADDITION
- Windsor Estates Keller
- Windsor Forest Estates Add
- Woodford Add
- Woodlands At Hidden Lakes The
- Wyndham Village Add
- Yates Add
Market Summary
Current real estate data for Single Family in Keller as of Mar 23, 2026
157
Single Family Listed
62
Avg DOM
285
Avg $ / SqFt
$978,757
Avg List Price
Property Summary
- Located in the Treehouse Add subdivision, 1606 Treehouse Lane Keller TX is a Single Family for sale in Keller, TX, 76262. It is listed for $915,000 and features 4 beds, 3 baths, and has approximately 3,290 square feet of living space, and was originally constructed in 1991. The current price per square foot is $278. The average price per square foot for Single Family listings in Keller is $285. The average listing price for Single Family in Keller is $978,757. To schedule a showing of MLS#21215002 at 1606 Treehouse Lane in Keller, TX, contact your Spencer TX Real Estate, LLC agent at (817) 937-8532.
Similar Listings Nearby

1606 Treehouse Lane
Keller, TX







































