Welcome to 1828 Highland Dr E, Keller, TX 76262 — a stunning new traditional-style home in the highly desirable North Keller area. Situated within the award-winning Keller Independent School District, this residence offers access to top-rated schools recognized for academic excellence and strong community involvement. This beautifully designed residence blends modern elegance, premium finishes, and energy efficiency throughout.
Perfectly located just minutes from the Charles Schwab headquarters and surrounded by prestigious neighborhoods like Tuscany, Ashmore, and Oakbrook, Highland Terrace is fast becoming one of Keller’s premier luxury communities, showcasing exceptional new homes by distinguished builders.
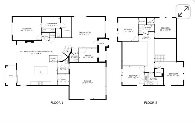
This 5-bedroom, 3.5-bath, 2,645 sq ft home features an open-concept floor plan with spacious living and dining areas and a private office. The chef’s kitchen impresses with a waterfall island, gas cooktop, built-in microwave, and abundant custom cabinetry.
The luxurious primary suite offers a spa-like retreat with a soaking tub, walk-in shower, and touch-sensor anti-fog mirrors. Additional upgrades include hardwood floors, double-pane Low-E windows, a 16+ SEER AC system, and high-speed internet wiring.
Enjoy outdoor living with covered front and back patios, a landscaped yard with sprinkler system, and a privacy fence — all with the added advantage of no HOA.
Perfectly located just minutes from the Charles Schwab headquarters and surrounded by prestigious neighborhoods like Tuscany, Ashmore, and Oakbrook, Highland Terrace is fast becoming one of Keller’s premier luxury communities, showcasing exceptional new homes by distinguished builders.
This 5-bedroom, 3.5-bath, 2,645 sq ft home features an open-concept floor plan with spacious living and dining areas and a private office. The chef’s kitchen impresses with a waterfall island, gas cooktop, built-in microwave, and abundant custom cabinetry.
The luxurious primary suite offers a spa-like retreat with a soaking tub, walk-in shower, and touch-sensor anti-fog mirrors. Additional upgrades include hardwood floors, double-pane Low-E windows, a 16+ SEER AC system, and high-speed internet wiring.
Enjoy outdoor living with covered front and back patios, a landscaped yard with sprinkler system, and a privacy fence — all with the added advantage of no HOA.
Property Details
Price:
$699,900
MLS #:
21080105
Status:
Active
Beds:
5
Baths:
3.1
Type:
Single Family
Subtype:
Single Family Residence
Subdivision:
Highland Terrace Mobile Hm Park
Listed Date:
Nov 5, 2025
Finished Sq Ft:
2,645
Lot Size:
6,534 sqft / 0.15 acres (approx)
Year Built:
2025
See this Listing
Schools
School District:
Keller ISD
Elementary School:
Florence
Middle School:
Keller
High School:
Keller
Interior
Bathrooms Full
3
Bathrooms Half
1
Fireplace Features
Electric, Living Room
Fireplaces Total
1
Interior Features
Cable TV Available, Walk- In Closet(s)
Number Of Living Areas
2
Exterior
Construction Materials
Brick, Siding
Garage Spaces
2
Lot Size Area
0.1500
Financial
Map
Community
- Address1828 Highland Drive Keller TX
- SubdivisionHighland Terrace Mobile Hm Park
- CityKeller
- CountyTarrant
- Zip Code76262
Subdivisions in Keller
- 5 Pear Place Add
- Adalina at Bloofield
- Ashbrook Add
- Ashbrook At Hidden Lakes Add
- Bear Creek Estates
- BELAIRE HILLS ESTATES
- Bella Casa
- Bella Vista
- Benson Sub
- Berry Add
- Bloomfield At Hidden Lakes
- Bluebonnet Trails Add
- Bourland Oaks
- Brentwood Estates
- Bridgewood
- Brooks Sarah Estates
- Brookstone Villas
- Buchanan Sub
- Burbine Ad
- Burbine Add
- Bursey Ranch Add
- BURSEY RANCH ADDITION
- Carriage Gate Add
- Centerview Office Park Add
- Chase Oaks
- Chase Oaks Add
- Cherry Grove Estates Add
- Chisolm Oaks Bus Park
- Creekview Add
- Creekwood At Hidden Lakes
- Cross Timbers Acres Add
- Crosstimbers Office Park Add
- Daniel Barcroft Survey
- Driscoll Office Park
- Estates of Lyndhurst
- Fall Creek Estates
- Flanigan Hill Add
- Florence Place Add
- Flower Add
- Forest Lakes Estates Add
- Gary Add
- Gean Estates
- Greenway Park Add
- Greenway Park Addition
- Hamby Sub
- Harmonson Farms
- Harpers Glen
- Harvels Add
- Heatherwood Estates
- Hickory Hollow Estates
- Hidden Lakes
- Hidden Lakes Center Keller
- Hidden Lakes, Retreat at
- High Chaparral Add
- Highland Meadows Estates
- Highland Oaks Add
- Highland Terrace
- Highland Terrace Mobile Hm Park
- Holland Acres Addition
- Holly Hills Add
- Hudnall Farm Add
- Idlewood Estates
- Idlewood Oaks-Hidden Lakes
- Indian Meadows Add
- John Martin Survey
- Johnson Add
- Johnson Addition-Keller
- Johnston Add
- Keller City Add
- Keller Heights North Add
- Keller High School
- Keller Town Center
- Keller Town Center Add
- Keys Add
- Lakes Of Highland Oaks The
- Manors At Waterford The
- Marshall Rdg Ph 6d
- Marshall Ridge
- Marshall Ridge North
- Martins
- Meadowlands Add
- Meadowlands Add UNIT C
- Meadowlands Add Keller
- Meadows at Bear Creek
- Meadows At Bear Creek The
- Melody Hills East Add
- Neace
- Northeast Oaks Add
- Oak Bend Estates
- Oak Country Estates
- Oakbrook Hills Sub
- Overlook The
- Overton Ridge Add
- Park Add
- Parkwood
- Parkwood Sub
- Pearson Crossing Keller
- Philippi Add
- Preserve At Hidden Lakes
- Preserve At Hidden Lakes The
- Quail Valley Estates
- Quest Court Office Park
- Retreat At Hidden Lakes The
- Ridgewood Estates
- Riverdance Ph 1
- Riverdance Ph 3
- Roberts Cut Off
- Robinson Meuli
- Saddlebrook Estates Add
- Samantha Spgs Estates
- Samantha Springs Estates
- Samuel Needham Surv Tract 1d01
- Seng Add
- Shadowbrook Place Add
- Shemwell Add
- Shemwell Addition
- Silver Lake Add
- Silverleaf
- Stewart Estates Add
- Stoneglen
- Stoneglen Add
- Stoneridge
- Sunrise Estates
- Sweet O L
- Sympson Michael
- Tolbert Add
- Town & Country Village Brock Add
- Treehouse Add
- Tuscany Keller
- Twin Lakes Add
- Tyson Add
- Valle Vista Add
- Villas Of Stone Glen Condos
- WALKER, JOSIAH SURVEY ABSTRACT 1604 TRACT 6D0
- Wellsgate Terrace
- West Bursey Ranch Add
- WEST BURSEY RANCH ADDITION
- Westbury Estates
- Westpark Add
- Wildwood Add
- Williamsburg Estates
- Willis Coves Add
- Windcrest Estates Add
- WINDCREST ESTATES ADDITION
- Windsor Estates Keller
- Windsor Forest Estates Add
- Woodford Add
- Woodlands At Hidden Lakes The
- Wyndham Village Add
- Yates Add
Market Summary
Current real estate data for Single Family in Keller as of Mar 14, 2026
153
Single Family Listed
63
Avg DOM
286
Avg $ / SqFt
$970,714
Avg List Price
Property Summary
- Located in the Highland Terrace Mobile Hm Park subdivision, 1828 Highland Drive Keller TX is a Single Family for sale in Keller, TX, 76262. It is listed for $699,900 and features 5 beds, 3 baths, and has approximately 2,645 square feet of living space, and was originally constructed in 2025. The current price per square foot is $265. The average price per square foot for Single Family listings in Keller is $286. The average listing price for Single Family in Keller is $970,714. To schedule a showing of MLS#21080105 at 1828 Highland Drive in Keller, TX, contact your Spencer TX Real Estate, LLC agent at (817) 937-8532.
Similar Listings Nearby

1828 Highland Drive
Keller, TX





































