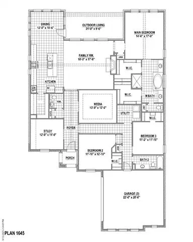
Lovely four bedroom, three and half bath home with media room located in the center of the house for fantastic recreation and great family time. Hard to find this kind of home with over 2600 square feet in a one story home with spacious bedrooms and walk-in closets in every bedroom. Oversized kitchen and pantry with gas cook top, KitchenAid appliances and beautiful fixtures throughout the home. A wide entrance foyer welcomes you into a large family room with gas fireplace, 8′ tall windows and a large covered outdoor living area. The primary bedroom is very spacious with his and hers vanities, his and hers walk-in closets, walk-in shower and stand alone tub. A practical feature with utility room that walks into primary closet for easy laundry and clothing care. Two-car garage with ample space on each side of to get in and out of your vehicles. This floor plan has a covered front porch as well for protection entering the home. Everything you could want and need in a stunning one story home for you and your family to enjoy for years to come. Located in Keller close to Fort Worth, Dallas and DFW Airport, right in the Heart of Texas.
Property Details
Price:
$939,990
MLS #:
21226872
Status:
Active
Beds:
4
Baths:
3.1
Type:
Single Family
Subtype:
Single Family Residence
Subdivision:
Bella Casa
Listed Date:
Apr 2, 2026
Finished Sq Ft:
2,664
Lot Size:
8,450 sqft / 0.19 acres (approx)
Year Built:
2026
See this Listing
Schools
School District:
Keller ISD
Elementary School:
Willislane
Middle School:
Indian Springs
High School:
Keller
Interior
Bathrooms Full
3
Bathrooms Half
1
Cooling
Attic Fan, Ceiling Fan(s), Central Air, Zoned
Fireplace Features
Gas
Fireplaces Total
1
Flooring
Carpet, Ceramic Tile, Hardwood
Heating
Central, Natural Gas, Zoned
Interior Features
Decorative Lighting, Double Vanity, Flat Screen Wiring, High Speed Internet Available, Kitchen Island, Open Floorplan, Sound System Wiring, Walk- In Closet(s)
Number Of Living Areas
2
Exterior
Community Features
Greenbelt, Jogging Path/Bike Path
Construction Materials
Brick, Rock/Stone
Exterior Features
Covered Patio/Porch, Rain Gutters, Outdoor Living Center
Fencing
Brick, Wood
Garage Length
22
Garage Spaces
2
Garage Width
20
Lot Size Area
8450.0000
Financial
Green Energy Efficient
Appliances, Drought Tolerant Plants, HVAC, Low Flow Commode, Mechanical Fresh Air, Roof, Thermostat, Waterheater, Windows
Map
Community
- Address833 Bella Casa Drive Keller TX
- SubdivisionBella Casa
- CityKeller
- CountyTarrant
- Zip Code76248
Subdivisions in Keller
- 5 Pear Place Add
- Adalina at Bloofield
- Ashbrook Add
- Ashbrook At Hidden Lakes Add
- Bear Creek Estates
- BELAIRE HILLS ESTATES
- Bella Casa
- Bella Vista
- Benson Sub
- Berry Add
- Bloomfield At Hidden Lakes
- Bluebonnet Trails Add
- Bourland Oaks
- Brentwood Estates
- Bridgewood
- Brooks Sarah Estates
- Brookstone Villas
- Buchanan Sub
- Burbine Ad
- Burbine Add
- Bursey Ranch Add
- BURSEY RANCH ADDITION
- Carriage Gate Add
- Centerview Office Park Add
- Chase Oaks
- Chase Oaks Add
- Cherry Grove Estates Add
- Chisolm Oaks Bus Park
- Creekview Add
- Creekwood At Hidden Lakes
- Cross Timbers Acres Add
- Crosstimbers Office Park Add
- Daniel Barcroft Survey
- Driscoll Office Park
- Estates of Lyndhurst
- Fall Creek Estates
- Flanigan Hill Add
- Florence Place Add
- Flower Add
- Forest Lakes Estates Add
- Gary Add
- Gean Estates
- Greenway Park Add
- Greenway Park Addition
- Hamby Sub
- Harmonson Farms
- Harpers Glen
- Harvels Add
- Heatherwood Estates
- Hickory Hollow Estates
- Hidden Lakes
- Hidden Lakes Center Keller
- Hidden Lakes, Retreat at
- High Chaparral Add
- Highland Meadows Estates
- Highland Oaks Add
- Highland Terrace
- Highland Terrace Mobile Hm Park
- Holland Acres Addition
- Holly Hills Add
- Hudnall Farm Add
- Idlewood Estates
- Idlewood Oaks-Hidden Lakes
- Indian Meadows Add
- John Martin Survey
- Johnson Add
- Johnson Addition-Keller
- Johnston Add
- Keller City Add
- Keller Heights North Add
- Keller High School
- Keller Town Center
- Keller Town Center Add
- Keys Add
- Lakes Of Highland Oaks The
- Manors At Waterford The
- Marshall Rdg Ph 6d
- Marshall Ridge
- Marshall Ridge North
- Martins
- Meadowlands Add
- Meadowlands Add UNIT C
- Meadowlands Add Keller
- Meadows at Bear Creek
- Meadows At Bear Creek The
- Melody Hills East Add
- Neace
- Northeast Oaks Add
- Oak Bend Estates
- Oak Country Estates
- Oakbrook Hills Sub
- Overlook The
- Overton Ridge Add
- Park Add
- Parkwood
- Parkwood Sub
- Pearson Crossing Keller
- Philippi Add
- Preserve At Hidden Lakes
- Preserve At Hidden Lakes The
- Quail Valley Estates
- Quest Court Office Park
- Retreat At Hidden Lakes The
- Ridgewood Estates
- Riverdance Ph 1
- Riverdance Ph 3
- Roberts Cut Off
- Robinson Meuli
- Saddlebrook Estates Add
- Samantha Spgs Estates
- Samantha Springs Estates
- Samuel Needham Surv Tract 1d01
- Seng Add
- Shadowbrook Place Add
- Shemwell Add
- Shemwell Addition
- Silver Lake Add
- Silverleaf
- Stewart Estates Add
- Stoneglen
- Stoneglen Add
- Stoneridge
- Sunrise Estates
- Sweet O L
- Sympson Michael
- Tolbert Add
- Town & Country Village Brock Add
- Treehouse Add
- Tuscany Keller
- Twin Lakes Add
- Tyson Add
- Valle Vista Add
- Villas Of Stone Glen Condos
- WALKER, JOSIAH SURVEY ABSTRACT 1604 TRACT 6D0
- Wellsgate Terrace
- West Bursey Ranch Add
- WEST BURSEY RANCH ADDITION
- Westbury Estates
- Westpark Add
- Wildwood Add
- Williamsburg Estates
- Willis Coves Add
- Windcrest Estates Add
- WINDCREST ESTATES ADDITION
- Windsor Estates Keller
- Windsor Forest Estates Add
- Woodford Add
- Woodlands At Hidden Lakes The
- Wyndham Village Add
- Yates Add
Market Summary
Current real estate data for Single Family in Keller as of Apr 08, 2026
169
Single Family Listed
62
Avg DOM
282
Avg $ / SqFt
$1,007,789
Avg List Price
Property Summary
- Located in the Bella Casa subdivision, 833 Bella Casa Drive Keller TX is a Single Family for sale in Keller, TX, 76248. It is listed for $939,990 and features 4 beds, 3 baths, and has approximately 2,664 square feet of living space, and was originally constructed in 2026. The current price per square foot is $353. The average price per square foot for Single Family listings in Keller is $282. The average listing price for Single Family in Keller is $1,007,789. To schedule a showing of MLS#21226872 at 833 Bella Casa Drive in Keller, TX, contact your Spencer TX Real Estate, LLC agent at (817) 937-8532.
Similar Listings Nearby

833 Bella Casa Drive
Keller, TX





