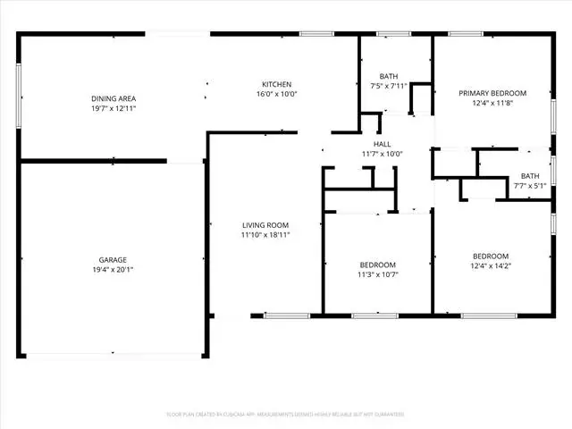
Updated Mid-Century Classic Home, Timeless Charm with Modern Updates. Lovely Floorplan with Seamless Functionality. Welcoming Large Family Room, Spacious Kitchen with Updated Cabinets, Granite Counters, Tile Backsplash and Large Dining Room. Primary Ensuite Bathroom Updated, Large Guest Bedrooms, Guest Bathroom Updated with New Double Sink Vanity. Additional Home Updates Include, LVP Flooring Throughout, Fresh Paint. Oversized Shop in Large Fenced Backyard. Roof is 6 months old, and foundation with warranty completed in November. Interior Lot with Wonderful Mature Shade Trees. Located in HEB ISD, Great Location, Close to Shopping with Easy Access to Highways!
Property Details
Price:
$294,900
MLS #:
21142822
Status:
Pending
Beds:
3
Baths:
2
Type:
Single Family
Subtype:
Single Family Residence
Subdivision:
Walker Oaks Add
Listed Date:
Jan 3, 2026
Finished Sq Ft:
1,410
Lot Size:
11,456 sqft / 0.26 acres (approx)
Year Built:
1961
See this Listing
Schools
School District:
Hurst-Euless-Bedford ISD
Elementary School:
Hursthills
High School:
Bell
Interior
Bathrooms Full
2
Cooling
Central Air, Electric
Flooring
Carpet, Ceramic Tile, Luxury Vinyl Plank
Heating
Central, Electric
Interior Features
Cable TV Available, Eat-in Kitchen, High Speed Internet Available
Number Of Living Areas
1
Exterior
Construction Materials
Brick
Exterior Features
Rain Gutters, Stable/Barn, Storage
Fencing
Back Yard, Chain Link, Fenced, Wood
Garage Length
20
Garage Spaces
2
Garage Width
20
Lot Size Area
0.2630
Financial
Map
Community
- Address1204 Crestview Drive Hurst TX
- SubdivisionWalker Oaks Add
- CityHurst
- CountyTarrant
- Zip Code76053
Subdivisions in Hurst
- 1
- 3
- Adkins Park
- Anderson-Hurst Add
- Bellvue Add
- Bentridge Estates
- Billy Creek Estates
- Blanton Park
- BUENA VISTA
- Buena Vista Add
- Carriage Place Condo
- Carriage Place Condominiums
- Cedar Ridge At Hurst Twnhms
- Chisholm Trail Estates
- Chisolm Park Estates
- Cimarron
- Continental Add
- Country Greene Twnhms
- Donna Park Add
- Engler Add
- First Baptist Add
- Forest Oaks West Add
- Glenn View Add
- Grayson Villas
- Green Tree Add
- Haven Add
- Heatherwood Estates
- Holder Estates
- Hurst Hills Add
- Hurst Park Sub
- Hurst Park West Sub
- Hurstview Add
- Lonesome Dove Estates
- Mayfair Add
- Mayfair North Add
- MAYFIELD
- Mc Nary Village
- North East Mall Add
- Oak Grove Add
- Oak Timber Add
- Oakwood Park Addition
- Oakwood Park East Add
- Olde Towne Square Add
- Owens Oaks Add
- Park Forest South
- Park Ridge Estates Add
- Prestondale Estates
- Reaves Park Add
- Scotland Hills Add
- Shady Oaks Add
- Simpson Park Add
- Thousand Oaks Add
- Toll Brothers at Adkins Park
- Trinity Ranch Estates
- Valentine Oaks Add
- Valentine Oaks West Add
- Walker Oaks Add
- Wallace Surv Abs #1677
- wallace, william w survey
- Wallace, William W Survey Abstract1706 Tract9
- Wintergreen Acres Add
- Wintergreen North II
- Woodbriar West Add
- Woodbridge 1st Install Add
- Woodcrest
- Woodland Park Twnhms Add
Market Summary
Current real estate data for Single Family in Hurst as of Mar 16, 2026
93
Single Family Listed
57
Avg DOM
201
Avg $ / SqFt
$411,213
Avg List Price
Property Summary
- Located in the Walker Oaks Add subdivision, 1204 Crestview Drive Hurst TX is a Single Family for sale in Hurst, TX, 76053. It is listed for $294,900 and features 3 beds, 2 baths, and has approximately 1,410 square feet of living space, and was originally constructed in 1961. The current price per square foot is $209. The average price per square foot for Single Family listings in Hurst is $201. The average listing price for Single Family in Hurst is $411,213. To schedule a showing of MLS#21142822 at 1204 Crestview Drive in Hurst, TX, contact your Spencer TX Real Estate, LLC agent at (817) 937-8532.
Similar Listings Nearby

1204 Crestview Drive
Hurst, TX










































