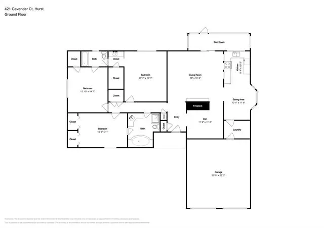
Welcome to 421 Cavender Ct, tucked away on a peaceful cul-de-sac in the heart of North Hurst. This three-bedroom, two-bathroom home features a living room that with vaulted ceiling punctuated by multiple skylights. Double sided brick veneer fireplace anchors the living room and the separate dining room. Dining room offers flexible functionality that may be converted into a home office or study area to accommodate your lifestyle needs.
The primary bedroom suite delivers an en-suite bathroom featuring both a separate shower and relaxing soaking tub. Clever design provides dual access from the primary bedroom and from the hallway, making it convenient for guests. Two additional bedrooms share a practical bathroom configuration— access from both bathrooms.
is calling out to those with vision and a passion for transformation. Here lies an opportunity that savvy buyers dream about—a well-positioned home ready for your personal touch and creative upgrades.
Outside, the large fenced backyard presents exciting potential for those ready to roll up their sleeves. The enclosed patio and covered porch areas await restoration, offering the perfect weekend project for handy homeowners looking to create their ideal outdoor retreat. A storage room adds practical appeal.
Location shines here with Chisholm Park just moments away and effortless highway access to 183 and 121 connecting you to the entire Dallas-Fort Worth metroplex.
Schedule your showing today and discover the possibilities waiting at this diamond-in-the-rough opportunity!
The primary bedroom suite delivers an en-suite bathroom featuring both a separate shower and relaxing soaking tub. Clever design provides dual access from the primary bedroom and from the hallway, making it convenient for guests. Two additional bedrooms share a practical bathroom configuration— access from both bathrooms.
is calling out to those with vision and a passion for transformation. Here lies an opportunity that savvy buyers dream about—a well-positioned home ready for your personal touch and creative upgrades.
Outside, the large fenced backyard presents exciting potential for those ready to roll up their sleeves. The enclosed patio and covered porch areas await restoration, offering the perfect weekend project for handy homeowners looking to create their ideal outdoor retreat. A storage room adds practical appeal.
Location shines here with Chisholm Park just moments away and effortless highway access to 183 and 121 connecting you to the entire Dallas-Fort Worth metroplex.
Schedule your showing today and discover the possibilities waiting at this diamond-in-the-rough opportunity!
Property Details
Price:
$370,000
MLS #:
21160618
Status:
Active
Beds:
3
Baths:
2
Type:
Single Family
Subtype:
Single Family Residence
Subdivision:
Mayfair North Add
Listed Date:
Jan 22, 2026
Finished Sq Ft:
1,806
Lot Size:
6,316 sqft / 0.15 acres (approx)
Year Built:
1975
See this Listing
Schools
School District:
Hurst-Euless-Bedford ISD
Elementary School:
Shadybrook
High School:
Bell
Interior
Bathrooms Full
2
Cooling
Central Air
Fireplace Features
Dining Room, Double Sided, Living Room
Fireplaces Total
2
Flooring
Carpet, Ceramic Tile, Vinyl
Heating
Central
Interior Features
Cable TV Available, Eat-in Kitchen, Granite Counters, Open Floorplan
Number Of Living Areas
1
Exterior
Construction Materials
Brick, Siding
Garage Length
20
Garage Spaces
2
Garage Width
22
Lot Size Area
0.1450
Financial
Map
Community
- Address421 Cavender Court Hurst TX
- SubdivisionMayfair North Add
- CityHurst
- CountyTarrant
- Zip Code76054
Subdivisions in Hurst
- 1
- 3
- Adkins Park
- Anderson-Hurst Add
- Bellvue Add
- Bentridge Estates
- Billy Creek Estates
- Blanton Park
- BUENA VISTA
- Buena Vista Add
- Carriage Place Condo
- Carriage Place Condominiums
- Cedar Ridge At Hurst Twnhms
- Chisholm Trail Estates
- Chisolm Park Estates
- Cimarron
- Continental Add
- Country Greene Twnhms
- Donna Park Add
- Engler Add
- First Baptist Add
- Forest Oaks West Add
- Glenn View Add
- Grayson Villas
- Green Tree Add
- Haven Add
- Heatherwood Estates
- Holder Estates
- Hurst Hills Add
- Hurst Park Sub
- Hurst Park West Sub
- Hurstview Add
- Lonesome Dove Estates
- Mayfair Add
- Mayfair North Add
- MAYFIELD
- Mc Nary Village
- North East Mall Add
- Oak Grove Add
- Oak Timber Add
- Oakwood Park Addition
- Oakwood Park East Add
- Olde Towne Square Add
- Owens Oaks Add
- Park Forest South
- Park Ridge Estates Add
- Prestondale Estates
- Reaves Park Add
- Scotland Hills Add
- Shady Oaks Add
- Simpson Park Add
- Thousand Oaks Add
- Toll Brothers at Adkins Park
- Trinity Ranch Estates
- Valentine Oaks Add
- Valentine Oaks West Add
- Walker Oaks Add
- Wallace Surv Abs #1677
- wallace, william w survey
- Wallace, William W Survey Abstract1706 Tract9
- Wintergreen Acres Add
- Wintergreen North II
- Woodbriar West Add
- Woodbridge 1st Install Add
- Woodcrest
- Woodland Park Twnhms Add
Market Summary
Current real estate data for Single Family in Hurst as of Mar 14, 2026
94
Single Family Listed
56
Avg DOM
201
Avg $ / SqFt
$410,551
Avg List Price
Property Summary
- Located in the Mayfair North Add subdivision, 421 Cavender Court Hurst TX is a Single Family for sale in Hurst, TX, 76054. It is listed for $370,000 and features 3 beds, 2 baths, and has approximately 1,806 square feet of living space, and was originally constructed in 1975. The current price per square foot is $205. The average price per square foot for Single Family listings in Hurst is $201. The average listing price for Single Family in Hurst is $410,551. To schedule a showing of MLS#21160618 at 421 Cavender Court in Hurst, TX, contact your Spencer TX Real Estate, LLC agent at (817) 937-8532.
Similar Listings Nearby

421 Cavender Court
Hurst, TX





















