NO HOA – QUIET NEIGHBORHOOD – 1 OF A KIND PROPERTY ON 1 ACRE!
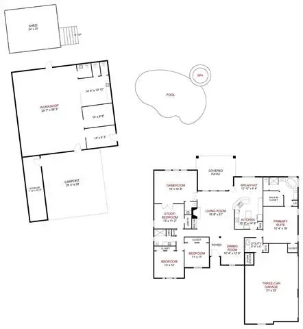
Let’s start with what sets this home apart: a 40’ x 45’ multi-functional outbuilding built with heavy-duty I-beam construction. It includes water, electricity, heat &' AC, on a separate electric meter from the home. It includes a 30’ x 8’ insulated storage area, with large carport – ideal for a workshop, business, hobby space, or serious storage needs. Think man-cave, she-shed, apartment, instant income. Bring your business home or start one (30 second leisurely commute). An additional 20’ x 24’ storage building with electricity for even more versatility. RV &' boat parking? Absolutely.
The backyard is an entertainer’s dream with a saltwater pool, water feature &' tanning ledge. You will love the large covered stamped concrete patio with decorative up lighting. Sprinkler system covers the full acre which keeps the grounds looking pristine. A propane tank services the outbuilding and pool. The 400'' private well services outbuilding, pool &' sprinkler system adding to cost effectiveness.
Thoughtfully includes an F-5 rated tornado shelter (8–10-person) located in garage, a Class 4 hail-resistant roof, radiant barrier, and R-9 insulation in all interior walls. Attic is fully decked over 3-car garage.
Inside, the open floor plan is perfect for everyday living &' entertaining. The living area features built-in cabinetry &' a cozy wood-burning brick fireplace. Primary suite offers privacy &' comfort, complete with California custom closet, a spa-like bath, frameless glass shower &' dual sinks &' vanities. Additional bedrooms are generously sized. Game – media room with double doors is wired for surround sound with an attached half bath.
The kitchen is both stylish and functional with granite countertops, travertine backsplash, island, stone-accented breakfast bar, double ovens (2023), pantry &' eat in kitchen area. Formal dining room is perfect for entertaining!
Let’s start with what sets this home apart: a 40’ x 45’ multi-functional outbuilding built with heavy-duty I-beam construction. It includes water, electricity, heat &' AC, on a separate electric meter from the home. It includes a 30’ x 8’ insulated storage area, with large carport – ideal for a workshop, business, hobby space, or serious storage needs. Think man-cave, she-shed, apartment, instant income. Bring your business home or start one (30 second leisurely commute). An additional 20’ x 24’ storage building with electricity for even more versatility. RV &' boat parking? Absolutely.
The backyard is an entertainer’s dream with a saltwater pool, water feature &' tanning ledge. You will love the large covered stamped concrete patio with decorative up lighting. Sprinkler system covers the full acre which keeps the grounds looking pristine. A propane tank services the outbuilding and pool. The 400'' private well services outbuilding, pool &' sprinkler system adding to cost effectiveness.
Thoughtfully includes an F-5 rated tornado shelter (8–10-person) located in garage, a Class 4 hail-resistant roof, radiant barrier, and R-9 insulation in all interior walls. Attic is fully decked over 3-car garage.
Inside, the open floor plan is perfect for everyday living &' entertaining. The living area features built-in cabinetry &' a cozy wood-burning brick fireplace. Primary suite offers privacy &' comfort, complete with California custom closet, a spa-like bath, frameless glass shower &' dual sinks &' vanities. Additional bedrooms are generously sized. Game – media room with double doors is wired for surround sound with an attached half bath.
The kitchen is both stylish and functional with granite countertops, travertine backsplash, island, stone-accented breakfast bar, double ovens (2023), pantry &' eat in kitchen area. Formal dining room is perfect for entertaining!
Property Details
Price:
$720,000
MLS #:
21131692
Status:
Active
Beds:
4
Baths:
2.1
Type:
Single Family
Subtype:
Single Family Residence
Subdivision:
Sun Valley Estates Add
Listed Date:
Dec 12, 2025
Finished Sq Ft:
2,616
Lot Size:
47,044 sqft / 1.08 acres (approx)
Year Built:
2000
See this Listing
Schools
School District:
Northwest ISD
Elementary School:
Carl E. Schluter
Middle School:
Chisholmtr
High School:
Northwest
Interior
Bathrooms Full
2
Bathrooms Half
1
Cooling
Ceiling Fan(s), Central Air, Electric, Multi Units, Wall/Window Unit(s), Zoned
Fireplace Features
Brick, Family Room, Wood Burning
Fireplaces Total
1
Flooring
Carpet, Ceramic Tile
Heating
Central, Electric, Fireplace(s), Propane, Zoned
Interior Features
Cable TV Available, Decorative Lighting, Granite Counters, High Speed Internet Available, Open Floorplan, Sound System Wiring, Walk- In Closet(s)
Number Of Living Areas
2
Exterior
Carport Spaces
2
Construction Materials
Brick
Exterior Features
Covered Patio/Porch, Rain Gutters, Lighting, RV/Boat Parking, Stable/Barn, Storage, Storm Cellar, Other
Fencing
Back Yard, Fenced, Pipe, Wrought Iron
Garage Length
21
Garage Spaces
3
Garage Width
32
Lot Size Area
1.0800
Pool Features
Fenced, Gunite, In Ground, Outdoor Pool, Salt Water, Water Feature, Other
Financial
Map
Community
- Address11308 Elk Horn Court Haslet TX
- SubdivisionSun Valley Estates Add
- CityHaslet
- CountyTarrant
- Zip Code76052
Subdivisions in Haslet
- ALPHA RANCH
- Ashford, James A Survey
- Ashmore Farms Add
- Avondale Ranch
- Avondale Ranch Add
- Bel Grand Estates
- Blue Mound Estates
- Caraway
- Caraway Ph 1
- Caraway Ph 2
- Caraway Ph Two
- Dorado Ranch
- E Thompson
- Elizabeth Creek
- Elizabeth Creek Alpha Ranch
- Elizabeth Creek at Alpha Ranch
- Elizabeth Creek HOA
- Elizabeth Creek of Haslet
- Elizabeth Crk
- Elizabeth Crk Alpha Ranch
- Haslet City Of
- Haslet Elite Learning Center
- Haslet Heights
- Haslet Park Add
- Henry Roberts
- Highlands At Willow Spgs
- Hopkins, Eldridge Survey
- Lavois, B Survey
- Ledford, Silas Survey
- LeTara
- Letara Ph 1
- Letara Ph 2
- Letara Ph 3
- Lexington Add
- Lonesome Dove Estates
- LOT 17 BLK 66 NORTHSTAR
- Madero
- Meadow The Haslet
- North Ridge Estates
- Northglen Ph 2
- Northglen Ph Two
- Northstar
- NORTHSTAR PH 1 SEC 1
- Northstar Ph 1 Sec 1
- Northstar Ph 1 Sec 3
- Northstar Ph 2 Sec 2
- Northstar Ph 3 Sec 2
- rancho canyon
- Rb Bishops Sub
- Scott, M William Survey
- Sendera Ranch
- Sendera Ranch East Ph 18
- Songbird Add
- Songbird ADDN
- Sun Valley Estates
- Sun Valley Estates Add
- Sunshine Meadows Unrec
- Sweetgrass
- The Vines of Watercress
- Van Zandt Farms Fossil Creek
- Vines
- Watercress Ph 2
- Watercress Ph One
- Watercress-Ph 1
- Wellington
- White Hugh Estates
- White, Hugh estate
- Willow Spgs West Add
Market Summary
Current real estate data for Single Family in Haslet as of Mar 14, 2026
213
Single Family Listed
74
Avg DOM
216
Avg $ / SqFt
$618,481
Avg List Price
Property Summary
- Located in the Sun Valley Estates Add subdivision, 11308 Elk Horn Court Haslet TX is a Single Family for sale in Haslet, TX, 76052. It is listed for $720,000 and features 4 beds, 2 baths, and has approximately 2,616 square feet of living space, and was originally constructed in 2000. The current price per square foot is $275. The average price per square foot for Single Family listings in Haslet is $216. The average listing price for Single Family in Haslet is $618,481. To schedule a showing of MLS#21131692 at 11308 Elk Horn Court in Haslet, TX, contact your Spencer TX Real Estate, LLC agent at (817) 937-8532.
Similar Listings Nearby

11308 Elk Horn Court
Haslet, TX










































