NEWLY RENOVATED &' PRICED WELL BELOW MARKET VALUE!
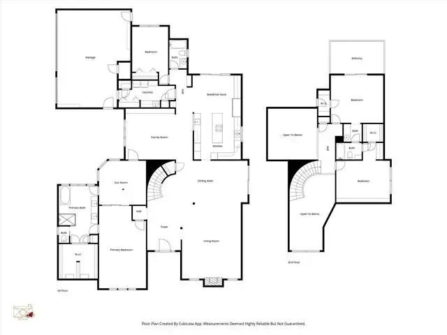
Appraised in Dec. for $695,000, 8908 Brierfield is easily adaptable to your lifestyle because of its custom architectural floorplan and large room size. You have many
alternatives in personalizing these spaces for your family needs and usage. Such as:
1. WOW GRAND ENTRY (9’ x 23’ + or -)
* Spiral staircase
* 20’ ceilings with chandelier and 10 inch crown molding
* Inviting flow into Entertainment Center, Kitchen and Family Room
2. ENTERTAINMENT CENTER
* Can be used as one large room or for separated uses like Living Room (17’ x 23’ + or -) and Dining Room (12’ x 19’ + or -)
* Large TV Home Theatre, Dinner Theatre, Gallery, Ballroom
3. KITCHEN
* Large natural gathering place, with big island
* Over 38 linear feet of granite countertops for prep and serving
* An ABUNDANCE oF storage and display cabinets
* Professional 19 cubic foot refrigerator and 19 cubic foot freezer
4. FAMILY ROOM
* Den, Study, Library, Private Dining Room overlooking pool
* Second TV for video games, Internet, etc.
* Pool Table, Game Table, Puzzle Table, etc.
5. SUNROOM
* Exercise Room, with pool view, pool-bathroom-master suite access
* Indoor Garden Room, with running water access
* Quiet Room for R &' R
* Bonus Room, Hobby Room, etc.
* Pool Bar
6. FOUR BEDROOMS
* Bedroom, Office, Bonus Room. Clean Storage Room
7. ADDITIONAL FEATURES
* Located on hole #7 oF PPCC
* Hot tub
* Extra wide 18 ft garage door
* New tile flooring
* New Appliances
* New LED lighting
* Circular driveway
Appraised in Dec. for $695,000, 8908 Brierfield is easily adaptable to your lifestyle because of its custom architectural floorplan and large room size. You have many
alternatives in personalizing these spaces for your family needs and usage. Such as:
1. WOW GRAND ENTRY (9’ x 23’ + or -)
* Spiral staircase
* 20’ ceilings with chandelier and 10 inch crown molding
* Inviting flow into Entertainment Center, Kitchen and Family Room
2. ENTERTAINMENT CENTER
* Can be used as one large room or for separated uses like Living Room (17’ x 23’ + or -) and Dining Room (12’ x 19’ + or -)
* Large TV Home Theatre, Dinner Theatre, Gallery, Ballroom
3. KITCHEN
* Large natural gathering place, with big island
* Over 38 linear feet of granite countertops for prep and serving
* An ABUNDANCE oF storage and display cabinets
* Professional 19 cubic foot refrigerator and 19 cubic foot freezer
4. FAMILY ROOM
* Den, Study, Library, Private Dining Room overlooking pool
* Second TV for video games, Internet, etc.
* Pool Table, Game Table, Puzzle Table, etc.
5. SUNROOM
* Exercise Room, with pool view, pool-bathroom-master suite access
* Indoor Garden Room, with running water access
* Quiet Room for R &' R
* Bonus Room, Hobby Room, etc.
* Pool Bar
6. FOUR BEDROOMS
* Bedroom, Office, Bonus Room. Clean Storage Room
7. ADDITIONAL FEATURES
* Located on hole #7 oF PPCC
* Hot tub
* Extra wide 18 ft garage door
* New tile flooring
* New Appliances
* New LED lighting
* Circular driveway
Property Details
Price:
$675,000
MLS #:
21146540
Status:
Active
Beds:
4
Baths:
3
Type:
Single Family
Subtype:
Single Family Residence
Subdivision:
Pecan Plantation
Listed Date:
Jan 7, 2026
Finished Sq Ft:
3,810
Lot Size:
14,810 sqft / 0.34 acres (approx)
Year Built:
1988
See this Listing
Schools
School District:
Granbury ISD
Elementary School:
Mambrino
Middle School:
Granbury
High School:
Granbury
Interior
Bathrooms Full
3
Cooling
Ceiling Fan(s), Central Air, Electric
Fireplace Features
Propane
Fireplaces Total
1
Flooring
Carpet, Ceramic Tile
Heating
Central, Electric
Interior Features
Built-in Features, Built-in Wine Cooler, Cable TV Available, Cathedral Ceiling(s), Chandelier, Decorative Lighting, Double Vanity, High Speed Internet Available, Vaulted Ceiling(s), Wet Bar
Number Of Living Areas
2
Exterior
Community Features
Airport/Runway, Boat Ramp, Campground, Club House, Community Dock, Community Pool, Fishing, Fitness Center, Gated, Golf, Guarded Entrance, Horse Facilities, Jogging Path/Bike Path, Marina, Pickle Ball Court, Pool, Tennis Court(s)
Exterior Features
Balcony, Covered Deck, Covered Patio/Porch, Rain Gutters
Fencing
None
Garage Length
21
Garage Spaces
2
Garage Width
28
Lot Size Area
0.3400
Pool Features
In Ground
Financial
Map
Community
- Address8908 Brierfield Road Granbury TX
- SubdivisionPecan Plantation
- CityGranbury
- CountyHood
- Zip Code76049
Subdivisions in Granbury
- & Lot 233R, Rock Harbor Estate
- Abe’s Landing
- Abes Landing Ph One
- Abes Landing Ph Three D
- Abes Landing Ph Two A
- Absalom Gregory Surv Abs #200
- ABST: J D JAMESO N – ABST 294
- ABST: MILAM CO – ABST 348
- Abstract S Herron 247
- ACE HARDWARE ADDITION
- Acres 2.09 abst: Milam
- ACRES: 133 ABST: J C GRACE – ABST 190
- ACRES: 20.000 ABST: J D JAMESON – ABST 294
- Acton Landing
- Acton Landing Ph I
- Acton Storage Addition
- Adalie Oaks
- Aiken Sub
- Alta Vista Estates II
- Andrews Acres
- Arrowhead shores
- Arrowhead Shores Sec A
- Arrowhead Shores Sec B
- Ashley Oaks
- Ashley Oaks Ph One
- Atomic Plaza Add
- Avalon Add
- Bartlett Estates
- Barton
- BBB CRR
- Bella Vista
- Bentwater On Lake Granbury Sec One
- Bentwater On Lake Granbury Sec Three
- Bentwater On Lake Granbury Sec Two
- Big Timbers
- Blue Branch Ranch Sub
- Blue Water Shores
- Bluff View On Lake Granbury
- Bonita Vista Estates
- Brazos Bend Ph I
- Brazos Estates
- Brazos Harbor
- Brazos River Acres Sec A
- Brazos River Acres Sec B
- Brazos Trails Estate
- Briarwood
- Canyon Creek
- Canyon Creek II
- Canyon Creek III
- Canyon Creek IV
- Canyon Creek Un 1
- Canyon Creek V
- CANYON CREEK V UNIT 9
- Catalina Bay
- Catalina Bay II Ph Ii-A
- Catalina Bay II Ph Ii-B-1
- chaparral estates
- Cherry Lane
- Chism
- Cobblestone Court
- Comanche Cove
- Comanche Cove Sub Sec A
- Comanche Cove Sub Sec B
- Comanche Cove Sub Sec C
- Comanche Harbor
- Comanche Harbor Sec B
- Comanche Harbor Sec C
- Comanche Harbor Sec E
- Comanche Peak North
- Comanche Ranch Estates
- commanche cove
- Corridor 51 Bus Center
- Corridor 51 Business Center
- Cougar Mountain Estates
- Cougar Mountain Estates Ph 1
- COULSTON
- Crawford Place
- CRITES
- Crucis Creek
- Crucis Creek
- David Campbell Add
- De Cordova Hills
- De Cordova Ranch
- De Cordova Ranch Ph 5-A
- De Cordova Ranch Ph One
- De Cordova Ranch Ph Two
- Decordova Bend Estate
- Decordova Bend Estate Ph 1
- Decordova Bend Estates
- dunaway tracts
- E HAMMACK – ABST 650
- E M Burson Surv A-69
- E. Hammack
- Eagles Crest
- East Park
- Eastridge
- Eastwood Village
- El Dorado
- Emerald Bay
- Emerald Glen
- Fairview Ranches
- Fenimore Tracts
- Forest Hill
- Forest Hills Add
- Forest Oaks
- Fountain Village
- Fun-N-Sun Add
- G W MEADE
- G W MEADE – ABST 350
- Galveston Co Abst 852
- Gemstone Estates Ph One
- Gemstone Estates Ph Six
- GEMSTONE ESTATES PHASE FOUR
- granbury
- Granbury Corners Add
- Granbury Medical Plaza Add
- Grand Harbor
- Grand Harbor Ph Two
- Grand Places Of Hood County
- Grandbury
- Gribble Springs
- Harbor Lakes
- Harbor Lakes Ph 1b
- Harbor Lakes Ph 3
- Harbor Lakes Sec 13
- Harbor Lakes Sec 14
- Harbor Lakes Sec 6B
- Harbor Lakes Sec 8 Ph II
- hardin
- Heather Place
- Heather Place Add Ph I
- Heather Place Add Ph II
- Heritage Heights Sec 1
- Heritage Trail
- Hideaway Bay Est
- Highland Park Bay
- Hills Granbury Ph III
- Hilltop Village
- Hugh Roe Add
- Hunterwood
- Huphrey Addition
- Indian Harbor
- Indian Harbor Ph 1
- Indian Harbor Ph 10
- Indian Harbor Ph 11
- Indian Harbor Ph 12
- Indian Harbor Ph 13
- Indian Harbor Ph 16
- Indian Harbor Ph 17
- Indian Harbor Ph 18
- Indian Harbor Ph 2
- INDIAN HARBOR PH 3
- Indian Harbor Ph 4
- Indian Harbor Ph 5
- Indian Harbor Ph 7
- Indian Harbor Ph 8
- Indian Harbor Ph 9
- Indian Harbor Ph4
- Indian Harbor Phase 4
- Indian Harbour
- Indian Hills
- J C GRACE
- J Norris ABST
- Jackson Bend Mh Park Sub
- Jackson Heights Sub
- James Road Sub
- JD Brown
- Jj Mathis Sub
- John Belsen Serv Abs #59
- Joshua Minnett
- Josiah Estates
- Josiah Estates Ph 2
- Josiah Estates Ph One
- Josiah Estates Ph Two
- Jw Fogg Abs 648 Surv
- Kaylinda
- Kennon Meadows
- Kennon Meadows Ph I
- Kennon Meadows Ph II
- Kings Plaza
- Knob Hill Ph Two
- Knob Hill Phase two
- Laguna Tres Estate
- Laguna Vista
- Laguna Vista Ltd
- Lail Add
- Lake Country Acres
- Lake Forest
- Lake Granbury Christian Temple
- Lake Granbury Estates
- Lake Granbury Harbor
- Lake Granbury Hbr Sec A
- Lake Granbury Hbr Sec B
- Lake Granbury Hbr Sec C
- Lake Granbury Hbr Sec D
- Lake Granbury Hbr Sec F
- Lake Granbury RV Ranch
- Lakecrest Manor
- Lakes At Timber Cove
- Lakeside Hills
- Lakewood Hills Estates
- Lakewood Hills Sec 2
- Lakewood Hills Sec 3
- Lakewood Hills Sec 4
- Lakewood Plaza
- Land Lying & Being Situated
- Lantana
- Larned
- Lee Ann Acres
- Lowes Add
- Luker Ranch
- M OLDHAM – ABST 431
- M Setzer Abstract 502
- Main Place
- Main Place Ph II
- Mallard Pointe On Lake Granbury
- Mambrino Storage Add
- Martin Tracts
- Meadow Heights
- Meadowlark Add
- Meadows
- Meadows West Add Ph One
- Meadows West Addition
- Meander Estates
- Meander Estates Ph One
- Meander Estates Ph Three
- Meander Estates Ph Two
- Meander Park Add
- Mesa Grande
- Mid-Haven Estates
- Milam
- MILAM CO – ABST 348
- milam Co Abst.
- MILAM CO-ABST 348
- Mitchell Bend
- Modern Oaks
- Montego Bay
- Morgan Storage Add
- Moses Oldham Surv Abs 431
- Mountain View Add
- Mountain View Place II
- Mulligans Addition
- NO
- Nolan Creek
- Non-applicable
- O WATSON
- Oak Hills
- Oak Trail Shores
- Oak Trail Shores Sec A
- Oak Trail Shores Sec B
- Oak Trail Shores Sec C
- Oak Trail Shores Sec D
- Oak Trail Shores Sec E
- Oak Trail Shores Sec F
- Oak Water Ranch
- Oaks At Fall Creek
- Oakwood Lake
- Old Granbury Estates
- Orchard 15a
- Orchard 15b
- Orchard Nine
- Original Town
- Park 51
- Pecan Plantation
- Pecan Plantation in The Landings
- Pecan Plantation Orchard 15a
- Pecan Plantation Orchard 15B
- Pecan Plantation UN7
- Pecan Plantation-EAST LAKE PHASE 1
- Pecan Plantation, Unit 17
- Pecan Reserve
- Pirate Village
- Plaza East
- Port Ridglea
- Port Ridglea East Sec 1
- Port Ridglea East Sec 2
- Port Riglea East
- Ports O Call
- Ports O’Call
- Ports Ocall
- Putteet Hill
- Quail Ridge Acres
- Rainbow Estates
- Ranches-Pecan Plantation Ph 2
- Rancho Brazos
- River Country Acres Add
- River Run
- Rock Harbor Estate
- Rolling Creek Ranch
- Rolling Creek Ranch Ph 1
- Rolling Creek Ranch Ph II
- Rolling Creek Ranch Ph III
- Rollins Add
- Rough Creek Estate
- Round House
- Royal Oaks
- SAN LORENZO
- Sandstone Estates
- Saratoga
- Saratoga Ph 1-A
- SARATOGA PHASE 1-A
- Saratoga Phase 2-A
- Schroeder Add
- Schwerdt’s
- Sealey Ridge
- Shady Grove
- Six J Bay
- Sky Harbour Sec 11
- Sky Harbour Sec 2
- Sky Harbour Sec 3
- Sky Harbour Sec 4
- Sky Harbour Sec 6
- Sky Harbour SEC 7
- Sky Harbour Sec 8
- Sky Harbour Sec 9
- South Grove Add
- South Harbor
- Southtown Center Add
- Southtown Plaza
- Spanish Trail
- Spanish Trail West
- STEWART RANCH
- Stewart Ranch Sub
- Stoney Creek
- Stroud Creek
- Stroud Creek Sec 4
- Subd LAKE GRANBURY HBR SEC B
- SUBD: INDIAN HARBOR PH 2
- Summer Hill Estates
- Sunrise Bay
- Sunset Cove
- T E CARPENTER – ABST 102
- T PRICE – ABST 439
- The Bluffs
- The Hills Of Gby Ph V-R
- The Hills of Granbury
- The Landings
- The Landings East
- The Liveoaks Add
- The Lodge Of Granbury
- The Lodge of Granbury & The Lodge of Granbury Anne
- The Oaks At Fall Creek Country Estates Ph One
- The Peninsula On Lake Granbury
- The Ranches At Star Hollow
- The Residences of Cardinal Woods
- The Shores
- The Tradition At Port Ridglea
- The Vineyards At Harbor Lakes
- The Watermark On Lake Granbury
- Thompson-Rudd Add
- Thorp Spgs
- Thrash
- Three 77 Sunset Strip
- Thunderbird Cove
- Tillar Granbury Place
- Timber Cove
- Timber Ridge
- Timberhaven
- Trans Haven Estate
- Traylor Horton
- Treaty Oak
- Treaty Oaks
- U MARTIN – ABST 384
- Uriah Martin Surv Abs #384
- Valley View Estates
- Van Hofwegen
- Villages Of Stonebrook
- Vintage Floors Addition
- Vista Oaks
- Vista Oaks Ph 2
- Walnut Creek
- Waters Edge
- Western Hills
- Western Hills Harbor
- Whippoorwill Bay Sec A
- Whippoorwill Bay Sec F
- Whippoorwill Bay Sec G
- Whisperview Village
- William Prewitt Surv Abs #436
- Willow Ridge Add
Market Summary
Current real estate data for Single Family in Granbury as of Mar 14, 2026
794
Single Family Listed
96
Avg DOM
218
Avg $ / SqFt
$467,756
Avg List Price
Property Summary
- Located in the Pecan Plantation subdivision, 8908 Brierfield Road Granbury TX is a Single Family for sale in Granbury, TX, 76049. It is listed for $675,000 and features 4 beds, 3 baths, and has approximately 3,810 square feet of living space, and was originally constructed in 1988. The current price per square foot is $177. The average price per square foot for Single Family listings in Granbury is $218. The average listing price for Single Family in Granbury is $467,756. To schedule a showing of MLS#21146540 at 8908 Brierfield Road in Granbury, TX, contact your Spencer TX Real Estate, LLC agent at (817) 937-8532.
Similar Listings Nearby

8908 Brierfield Road
Granbury, TX










































