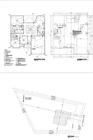
Motivated Seller!Lots 416–418 are being sold together, offering a spacious parcel with excellent features already in place. The property includes a poured slab foundation, fill dirt, and a professionally constructed retaining wall—saving you both time and money in the building process. Even better, the original blueprints designed specifically for the slab are included with the purchase.
Whether you’re a builder looking for a ready-to-go project or an individual eager to design your dream home, this property provides a head start. Located in the desirable Granbury area, you’ll enjoy the convenience of nearby amenities while still having the peace and charm of a residential community.
Don’t miss this chance to bring your vision to life on a lot that’s already prepared for construction!
Whether you’re a builder looking for a ready-to-go project or an individual eager to design your dream home, this property provides a head start. Located in the desirable Granbury area, you’ll enjoy the convenience of nearby amenities while still having the peace and charm of a residential community.
Don’t miss this chance to bring your vision to life on a lot that’s already prepared for construction!
Property Details
Price:
$85,000
MLS #:
21041564
Status:
Active
Baths:
0
Type:
Land
Subtype:
Improved Land
Subdivision:
Canyon Creek
Listed Date:
Sep 23, 2025
Lot Size:
3,920 sqft / 0.09 acres (approx)
See this Listing
Schools
School District:
Granbury ISD
Elementary School:
Mambrino
Middle School:
Granbury
High School:
Granbury
Interior
Exterior
Lot Size Area
0.0900
Financial
Map
Community
- Address418 S Capricorn Granbury TX
- SubdivisionCanyon Creek
- CityGranbury
- CountyHood
- Zip Code76049
Subdivisions in Granbury
- & Lot 233R, Rock Harbor Estate
- Abe’s Landing
- Abes Landing Ph One
- Abes Landing Ph Three D
- Abes Landing Ph Two A
- Absalom Gregory Surv Abs #200
- ABST: J D JAMESO N – ABST 294
- ABST: MILAM CO – ABST 348
- Abstract S Herron 247
- ACE HARDWARE ADDITION
- Acres 2.09 abst: Milam
- ACRES: 133 ABST: J C GRACE – ABST 190
- ACRES: 20.000 ABST: J D JAMESON – ABST 294
- Acton Landing
- Acton Landing Ph I
- Acton Storage Addition
- Adalie Oaks
- Aiken Sub
- Alta Vista Estates II
- Andrews Acres
- Arrowhead shores
- Arrowhead Shores Sec A
- Arrowhead Shores Sec B
- Ashley Oaks
- Ashley Oaks Ph One
- Atomic Plaza Add
- Avalon Add
- Bartlett Estates
- Barton
- BBB CRR
- Bella Vista
- Bentwater On Lake Granbury Sec One
- Bentwater On Lake Granbury Sec Three
- Bentwater On Lake Granbury Sec Two
- Big Timbers
- Blue Branch Ranch Sub
- Blue Water Shores
- Bluff View On Lake Granbury
- Bonita Vista Estates
- Brazos Bend Ph I
- Brazos Estates
- Brazos Harbor
- Brazos River Acres Sec A
- Brazos River Acres Sec B
- Brazos Trails Estate
- Briarwood
- Canyon Creek
- Canyon Creek II
- Canyon Creek III
- Canyon Creek IV
- Canyon Creek Un 1
- Canyon Creek V
- CANYON CREEK V UNIT 9
- Catalina Bay
- Catalina Bay II Ph Ii-A
- Catalina Bay II Ph Ii-B-1
- chaparral estates
- Cherry Lane
- Chism
- Cobblestone Court
- Comanche Cove
- Comanche Cove Sub Sec A
- Comanche Cove Sub Sec B
- Comanche Cove Sub Sec C
- Comanche Harbor
- Comanche Harbor Sec B
- Comanche Harbor Sec C
- Comanche Harbor Sec E
- Comanche Peak North
- Comanche Ranch Estates
- commanche cove
- Corridor 51 Bus Center
- Corridor 51 Business Center
- Cougar Mountain Estates
- Cougar Mountain Estates Ph 1
- COULSTON
- Crawford Place
- CRITES
- Crucis Creek
- Crucis Creek
- David Campbell Add
- De Cordova Hills
- De Cordova Ranch
- De Cordova Ranch Ph 5-A
- De Cordova Ranch Ph One
- De Cordova Ranch Ph Two
- Decordova Bend Estate
- Decordova Bend Estate Ph 1
- Decordova Bend Estates
- dunaway tracts
- E HAMMACK – ABST 650
- E M Burson Surv A-69
- E. Hammack
- Eagles Crest
- East Park
- Eastridge
- Eastwood Village
- El Dorado
- Emerald Bay
- Emerald Glen
- Fairview Ranches
- Fenimore Tracts
- Forest Hill
- Forest Hills Add
- Forest Oaks
- Fountain Village
- Fun-N-Sun Add
- G W MEADE
- G W MEADE – ABST 350
- Galveston Co Abst 852
- Gemstone Estates Ph One
- Gemstone Estates Ph Six
- GEMSTONE ESTATES PHASE FOUR
- granbury
- Granbury Corners Add
- Granbury Medical Plaza Add
- Grand Harbor
- Grand Harbor Ph Two
- Grand Places Of Hood County
- Grandbury
- Gribble Springs
- Harbor Lakes
- Harbor Lakes Ph 1b
- Harbor Lakes Ph 3
- Harbor Lakes Sec 13
- Harbor Lakes Sec 14
- Harbor Lakes Sec 6B
- Harbor Lakes Sec 8 Ph II
- hardin
- Heather Place
- Heather Place Add Ph I
- Heather Place Add Ph II
- Heritage Heights Sec 1
- Heritage Trail
- Hideaway Bay Est
- Highland Park Bay
- Hills Granbury Ph III
- Hilltop Village
- Hugh Roe Add
- Hunterwood
- Huphrey Addition
- Indian Harbor
- Indian Harbor Ph 1
- Indian Harbor Ph 10
- Indian Harbor Ph 11
- Indian Harbor Ph 12
- Indian Harbor Ph 13
- Indian Harbor Ph 16
- Indian Harbor Ph 17
- Indian Harbor Ph 18
- Indian Harbor Ph 2
- INDIAN HARBOR PH 3
- Indian Harbor Ph 4
- Indian Harbor Ph 5
- Indian Harbor Ph 7
- Indian Harbor Ph 8
- Indian Harbor Ph 9
- Indian Harbor Ph4
- Indian Harbor Phase 4
- Indian Harbour
- Indian Hills
- J C GRACE
- J Norris ABST
- Jackson Bend Mh Park Sub
- Jackson Heights Sub
- James Road Sub
- JD Brown
- Jj Mathis Sub
- John Belsen Serv Abs #59
- Joshua Minnett
- Josiah Estates
- Josiah Estates Ph 2
- Josiah Estates Ph One
- Josiah Estates Ph Two
- Jw Fogg Abs 648 Surv
- Kaylinda
- Kennon Meadows
- Kennon Meadows Ph I
- Kennon Meadows Ph II
- Kings Plaza
- Knob Hill Ph Two
- Knob Hill Phase two
- Laguna Tres Estate
- Laguna Vista
- Laguna Vista Ltd
- Lail Add
- Lake Country Acres
- Lake Forest
- Lake Granbury Christian Temple
- Lake Granbury Estates
- Lake Granbury Harbor
- Lake Granbury Hbr Sec A
- Lake Granbury Hbr Sec B
- Lake Granbury Hbr Sec C
- Lake Granbury Hbr Sec D
- Lake Granbury Hbr Sec F
- Lake Granbury RV Ranch
- Lakecrest Manor
- Lakes At Timber Cove
- Lakeside Hills
- Lakewood Hills Estates
- Lakewood Hills Sec 2
- Lakewood Hills Sec 3
- Lakewood Hills Sec 4
- Lakewood Plaza
- Land Lying & Being Situated
- Lantana
- Larned
- Lee Ann Acres
- Lowes Add
- Luker Ranch
- M OLDHAM – ABST 431
- M Setzer Abstract 502
- Main Place
- Main Place Ph II
- Mallard Pointe On Lake Granbury
- Mambrino Storage Add
- Martin Tracts
- Meadow Heights
- Meadowlark Add
- Meadows
- Meadows West Add Ph One
- Meadows West Addition
- Meander Estates
- Meander Estates Ph One
- Meander Estates Ph Three
- Meander Estates Ph Two
- Meander Park Add
- Mesa Grande
- Mid-Haven Estates
- Milam
- MILAM CO – ABST 348
- milam Co Abst.
- MILAM CO-ABST 348
- Mitchell Bend
- Modern Oaks
- Montego Bay
- Morgan Storage Add
- Moses Oldham Surv Abs 431
- Mountain View Add
- Mountain View Place II
- Mulligans Addition
- NO
- Nolan Creek
- Non-applicable
- O WATSON
- Oak Hills
- Oak Trail Shores
- Oak Trail Shores Sec A
- Oak Trail Shores Sec B
- Oak Trail Shores Sec C
- Oak Trail Shores Sec D
- Oak Trail Shores Sec E
- Oak Trail Shores Sec F
- Oak Water Ranch
- Oaks At Fall Creek
- Oakwood Lake
- Old Granbury Estates
- Orchard 15a
- Orchard 15b
- Orchard Nine
- Original Town
- Park 51
- Pecan Plantation
- Pecan Plantation in The Landings
- Pecan Plantation Orchard 15a
- Pecan Plantation Orchard 15B
- Pecan Plantation UN7
- Pecan Plantation-EAST LAKE PHASE 1
- Pecan Plantation, Unit 17
- Pecan Reserve
- Pirate Village
- Plaza East
- Port Ridglea
- Port Ridglea East Sec 1
- Port Ridglea East Sec 2
- Port Riglea East
- Ports O Call
- Ports O’Call
- Ports Ocall
- Putteet Hill
- Quail Ridge Acres
- Rainbow Estates
- Ranches-Pecan Plantation Ph 2
- Rancho Brazos
- River Country Acres Add
- River Run
- Rock Harbor Estate
- Rolling Creek Ranch
- Rolling Creek Ranch Ph 1
- Rolling Creek Ranch Ph II
- Rolling Creek Ranch Ph III
- Rollins Add
- Rough Creek Estate
- Round House
- Royal Oaks
- SAN LORENZO
- Sandstone Estates
- Saratoga
- Saratoga Ph 1-A
- SARATOGA PHASE 1-A
- Saratoga Phase 2-A
- Schroeder Add
- Schwerdt’s
- Sealey Ridge
- Shady Grove
- Six J Bay
- Sky Harbour Sec 11
- Sky Harbour Sec 2
- Sky Harbour Sec 3
- Sky Harbour Sec 4
- Sky Harbour Sec 6
- Sky Harbour SEC 7
- Sky Harbour Sec 8
- Sky Harbour Sec 9
- South Grove Add
- South Harbor
- Southtown Center Add
- Southtown Plaza
- Spanish Trail
- Spanish Trail West
- STEWART RANCH
- Stewart Ranch Sub
- Stoney Creek
- Stroud Creek
- Stroud Creek Sec 4
- Subd LAKE GRANBURY HBR SEC B
- SUBD: INDIAN HARBOR PH 2
- Summer Hill Estates
- Sunrise Bay
- Sunset Cove
- T E CARPENTER – ABST 102
- T PRICE – ABST 439
- The Bluffs
- The Hills Of Gby Ph V-R
- The Hills of Granbury
- The Landings
- The Landings East
- The Liveoaks Add
- The Lodge Of Granbury
- The Lodge of Granbury & The Lodge of Granbury Anne
- The Oaks At Fall Creek Country Estates Ph One
- The Peninsula On Lake Granbury
- The Ranches At Star Hollow
- The Residences of Cardinal Woods
- The Shores
- The Tradition At Port Ridglea
- The Vineyards At Harbor Lakes
- The Watermark On Lake Granbury
- Thompson-Rudd Add
- Thorp Spgs
- Thrash
- Three 77 Sunset Strip
- Thunderbird Cove
- Tillar Granbury Place
- Timber Cove
- Timber Ridge
- Timberhaven
- Trans Haven Estate
- Traylor Horton
- Treaty Oak
- Treaty Oaks
- U MARTIN – ABST 384
- Uriah Martin Surv Abs #384
- Valley View Estates
- Van Hofwegen
- Villages Of Stonebrook
- Vintage Floors Addition
- Vista Oaks
- Vista Oaks Ph 2
- Walnut Creek
- Waters Edge
- Western Hills
- Western Hills Harbor
- Whippoorwill Bay Sec A
- Whippoorwill Bay Sec F
- Whippoorwill Bay Sec G
- Whisperview Village
- William Prewitt Surv Abs #436
- Willow Ridge Add
Market Summary
Property Summary
- Located in the Canyon Creek subdivision, 418 S Capricorn Granbury TX is a Land for sale in Granbury, TX, 76049. It is listed for $85,000 and features 0 acres. To schedule a showing of MLS#21041564 at 418 S Capricorn in Granbury, TX, contact your Spencer TX Real Estate, LLC agent at (817) 937-8532.
Similar Listings Nearby

418 S Capricorn
Granbury, TX




