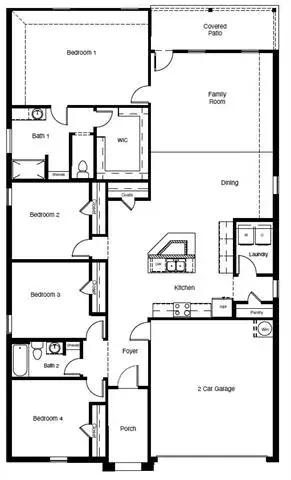
Fabulous new D.R. Horton home in the Bella Vista community located in Granbury and Granbury ISD! The single-story Kingston Floorplan, Elevation B, with an estimated Spring completion, offers 4 bedrooms, 2 bathrooms, and a 2-car garage with a modern open-concept design ideal for everyday living and comfortable entertaining. The family room, dining area, and kitchen flow together seamlessly, creating a bright and inviting central gathering space. The chef-inspired kitchen features quartz countertops, 36” upper cabinets with hardware, stainless steel appliances, an electric range, stainless steel sink, a center island, and a walk-in pantry for ample storage. The private primary suite includes an en-suite bath with dual quartz vanities, a 5-foot oversized shower, and a walk-in closet located directly off the bathroom. Secondary bedrooms are thoughtfully positioned in their own wing for added privacy. The additional bathroom also includes a quartz vanity top, and luxury vinyl plank flooring is installed throughout all main living areas and wet zones for durability and easy maintenance. This home is built with energy-efficient construction and equipped with America’s Smart Home Technology for added convenience. Exterior features include a landscape package, full sprinkler system with rain sensor, and privacy fencing. Bella Vista in Granbury is more than a place to live, it’s a place to call home.
Property Details
Price:
$310,685
MLS #:
21159475
Status:
Pending
Beds:
4
Baths:
2
Type:
Single Family
Subtype:
Single Family Residence
Subdivision:
Bella Vista
Listed Date:
Jan 21, 2026
Finished Sq Ft:
2,103
Lot Size:
7,187 sqft / 0.17 acres (approx)
Year Built:
2026
See this Listing
Schools
School District:
Granbury ISD
Elementary School:
Nettie Baccus
Middle School:
Granbury
High School:
Granbury
Interior
Bathrooms Full
2
Cooling
Central Air, Electric
Fireplace Features
None
Flooring
Carpet, Luxury Vinyl Plank
Heating
Central, Electric
Interior Features
Cable TV Available, Decorative Lighting, Eat-in Kitchen, High Speed Internet Available, Kitchen Island, Open Floorplan, Pantry, Smart Home System
Number Of Living Areas
1
Exterior
Community Features
Curbs, Sidewalks
Construction Materials
Brick, Frame, Rock/Stone
Exterior Features
Covered Patio/Porch, Rain Gutters
Fencing
Back Yard, Fenced, Wood
Garage Length
20
Garage Spaces
2
Garage Width
17
Lot Size Area
0.1650
Lot Size Dimensions
approx 60 x 120
Vegetation
Grassed
Financial
Map
Community
- Address1228 BELTWAY Lane Granbury TX
- SubdivisionBella Vista
- CityGranbury
- CountyHood
- Zip Code76048
Subdivisions in Granbury
- & Lot 233R, Rock Harbor Estate
- Abe’s Landing
- Abes Landing Ph One
- Abes Landing Ph Three D
- Abes Landing Ph Two A
- Absalom Gregory Surv Abs #200
- ABST: J D JAMESO N – ABST 294
- ABST: MILAM CO – ABST 348
- Abstract S Herron 247
- ACE HARDWARE ADDITION
- Acres 2.09 abst: Milam
- ACRES: 133 ABST: J C GRACE – ABST 190
- ACRES: 20.000 ABST: J D JAMESON – ABST 294
- Acton Landing
- Acton Landing Ph I
- Acton Storage Addition
- Adalie Oaks
- Aiken Sub
- Alta Vista Estates II
- Andrews Acres
- Arrowhead shores
- Arrowhead Shores Sec A
- Arrowhead Shores Sec B
- Ashley Oaks
- Ashley Oaks Ph One
- Atomic Plaza Add
- Avalon Add
- Bartlett Estates
- Barton
- BBB CRR
- Bella Vista
- Bentwater On Lake Granbury Sec One
- Bentwater On Lake Granbury Sec Three
- Bentwater On Lake Granbury Sec Two
- Big Timbers
- Blue Branch Ranch Sub
- Blue Water Shores
- Bluff View On Lake Granbury
- Bonita Vista Estates
- Brazos Bend Ph I
- Brazos Estates
- Brazos Harbor
- Brazos River Acres Sec A
- Brazos River Acres Sec B
- Brazos Trails Estate
- Briarwood
- Canyon Creek
- Canyon Creek II
- Canyon Creek III
- Canyon Creek IV
- Canyon Creek Un 1
- Canyon Creek V
- CANYON CREEK V UNIT 9
- Catalina Bay
- Catalina Bay II Ph Ii-A
- Catalina Bay II Ph Ii-B-1
- chaparral estates
- Cherry Lane
- Chism
- Cobblestone Court
- Comanche Cove
- Comanche Cove Sub Sec A
- Comanche Cove Sub Sec B
- Comanche Cove Sub Sec C
- Comanche Harbor
- Comanche Harbor Sec B
- Comanche Harbor Sec C
- Comanche Harbor Sec E
- Comanche Peak North
- Comanche Ranch Estates
- commanche cove
- Corridor 51 Bus Center
- Corridor 51 Business Center
- Cougar Mountain Estates
- Cougar Mountain Estates Ph 1
- COULSTON
- Crawford Place
- CRITES
- Crucis Creek
- Crucis Creek
- David Campbell Add
- De Cordova Hills
- De Cordova Ranch
- De Cordova Ranch Ph 5-A
- De Cordova Ranch Ph One
- De Cordova Ranch Ph Two
- Decordova Bend Estate
- Decordova Bend Estate Ph 1
- Decordova Bend Estates
- dunaway tracts
- E HAMMACK – ABST 650
- E M Burson Surv A-69
- E. Hammack
- Eagles Crest
- East Park
- Eastridge
- Eastwood Village
- El Dorado
- Emerald Bay
- Emerald Glen
- Fairview Ranches
- Fenimore Tracts
- Forest Hill
- Forest Hills Add
- Forest Oaks
- Fountain Village
- Fun-N-Sun Add
- G W MEADE
- G W MEADE – ABST 350
- Galveston Co Abst 852
- Gemstone Estates Ph One
- Gemstone Estates Ph Six
- GEMSTONE ESTATES PHASE FOUR
- granbury
- Granbury Corners Add
- Granbury Medical Plaza Add
- Grand Harbor
- Grand Harbor Ph Two
- Grand Places Of Hood County
- Grandbury
- Gribble Springs
- Harbor Lakes
- Harbor Lakes Ph 1b
- Harbor Lakes Ph 3
- Harbor Lakes Sec 13
- Harbor Lakes Sec 14
- Harbor Lakes Sec 6B
- Harbor Lakes Sec 8 Ph II
- hardin
- Heather Place
- Heather Place Add Ph I
- Heather Place Add Ph II
- Heritage Heights Sec 1
- Heritage Trail
- Hideaway Bay Est
- Highland Park Bay
- Hills Granbury Ph III
- Hilltop Village
- Hugh Roe Add
- Hunterwood
- Huphrey Addition
- Indian Harbor
- Indian Harbor Ph 1
- Indian Harbor Ph 10
- Indian Harbor Ph 11
- Indian Harbor Ph 12
- Indian Harbor Ph 13
- Indian Harbor Ph 16
- Indian Harbor Ph 17
- Indian Harbor Ph 18
- Indian Harbor Ph 2
- INDIAN HARBOR PH 3
- Indian Harbor Ph 4
- Indian Harbor Ph 5
- Indian Harbor Ph 7
- Indian Harbor Ph 8
- Indian Harbor Ph 9
- Indian Harbor Ph4
- Indian Harbor Phase 4
- Indian Harbour
- Indian Hills
- J C GRACE
- J Norris ABST
- Jackson Bend Mh Park Sub
- Jackson Heights Sub
- James Road Sub
- JD Brown
- Jj Mathis Sub
- John Belsen Serv Abs #59
- Joshua Minnett
- Josiah Estates
- Josiah Estates Ph 2
- Josiah Estates Ph One
- Josiah Estates Ph Two
- Jw Fogg Abs 648 Surv
- Kaylinda
- Kennon Meadows
- Kennon Meadows Ph I
- Kennon Meadows Ph II
- Kings Plaza
- Knob Hill Ph Two
- Knob Hill Phase two
- Laguna Tres Estate
- Laguna Vista
- Laguna Vista Ltd
- Lail Add
- Lake Country Acres
- Lake Forest
- Lake Granbury Christian Temple
- Lake Granbury Estates
- Lake Granbury Harbor
- Lake Granbury Hbr Sec A
- Lake Granbury Hbr Sec B
- Lake Granbury Hbr Sec C
- Lake Granbury Hbr Sec D
- Lake Granbury Hbr Sec F
- Lake Granbury RV Ranch
- Lakecrest Manor
- Lakes At Timber Cove
- Lakeside Hills
- Lakewood Hills Estates
- Lakewood Hills Sec 2
- Lakewood Hills Sec 3
- Lakewood Hills Sec 4
- Lakewood Plaza
- Land Lying & Being Situated
- Lantana
- Larned
- Lee Ann Acres
- Lowes Add
- Luker Ranch
- M OLDHAM – ABST 431
- M Setzer Abstract 502
- Main Place
- Main Place Ph II
- Mallard Pointe On Lake Granbury
- Mambrino Storage Add
- Martin Tracts
- Meadow Heights
- Meadowlark Add
- Meadows
- Meadows West Add Ph One
- Meadows West Addition
- Meander Estates
- Meander Estates Ph One
- Meander Estates Ph Three
- Meander Estates Ph Two
- Meander Park Add
- Mesa Grande
- Mid-Haven Estates
- Milam
- MILAM CO – ABST 348
- milam Co Abst.
- MILAM CO-ABST 348
- Mitchell Bend
- Modern Oaks
- Montego Bay
- Morgan Storage Add
- Moses Oldham Surv Abs 431
- Mountain View Add
- Mountain View Place II
- Mulligans Addition
- NO
- Nolan Creek
- Non-applicable
- O WATSON
- Oak Hills
- Oak Trail Shores
- Oak Trail Shores Sec A
- Oak Trail Shores Sec B
- Oak Trail Shores Sec C
- Oak Trail Shores Sec D
- Oak Trail Shores Sec E
- Oak Trail Shores Sec F
- Oak Water Ranch
- Oaks At Fall Creek
- Oakwood Lake
- Old Granbury Estates
- Orchard 15a
- Orchard 15b
- Orchard Nine
- Original Town
- Park 51
- Pecan Plantation
- Pecan Plantation in The Landings
- Pecan Plantation Orchard 15a
- Pecan Plantation Orchard 15B
- Pecan Plantation UN7
- Pecan Plantation-EAST LAKE PHASE 1
- Pecan Plantation, Unit 17
- Pecan Reserve
- Pirate Village
- Plaza East
- Port Ridglea
- Port Ridglea East Sec 1
- Port Ridglea East Sec 2
- Port Riglea East
- Ports O Call
- Ports O’Call
- Ports Ocall
- Putteet Hill
- Quail Ridge Acres
- Rainbow Estates
- Ranches-Pecan Plantation Ph 2
- Rancho Brazos
- River Country Acres Add
- River Run
- Rock Harbor Estate
- Rolling Creek Ranch
- Rolling Creek Ranch Ph 1
- Rolling Creek Ranch Ph II
- Rolling Creek Ranch Ph III
- Rollins Add
- Rough Creek Estate
- Round House
- Royal Oaks
- SAN LORENZO
- Sandstone Estates
- Saratoga
- Saratoga Ph 1-A
- SARATOGA PHASE 1-A
- Saratoga Phase 2-A
- Schroeder Add
- Schwerdt’s
- Sealey Ridge
- Shady Grove
- Six J Bay
- Sky Harbour Sec 11
- Sky Harbour Sec 2
- Sky Harbour Sec 3
- Sky Harbour Sec 4
- Sky Harbour Sec 6
- Sky Harbour SEC 7
- Sky Harbour Sec 8
- Sky Harbour Sec 9
- South Grove Add
- South Harbor
- Southtown Center Add
- Southtown Plaza
- Spanish Trail
- Spanish Trail West
- STEWART RANCH
- Stewart Ranch Sub
- Stoney Creek
- Stroud Creek
- Stroud Creek Sec 4
- Subd LAKE GRANBURY HBR SEC B
- SUBD: INDIAN HARBOR PH 2
- Summer Hill Estates
- Sunrise Bay
- Sunset Cove
- T E CARPENTER – ABST 102
- T PRICE – ABST 439
- The Bluffs
- The Hills Of Gby Ph V-R
- The Hills of Granbury
- The Landings
- The Landings East
- The Liveoaks Add
- The Lodge Of Granbury
- The Lodge of Granbury & The Lodge of Granbury Anne
- The Oaks At Fall Creek Country Estates Ph One
- The Peninsula On Lake Granbury
- The Ranches At Star Hollow
- The Residences of Cardinal Woods
- The Shores
- The Tradition At Port Ridglea
- The Vineyards At Harbor Lakes
- The Watermark On Lake Granbury
- Thompson-Rudd Add
- Thorp Spgs
- Thrash
- Three 77 Sunset Strip
- Thunderbird Cove
- Tillar Granbury Place
- Timber Cove
- Timber Ridge
- Timberhaven
- Trans Haven Estate
- Traylor Horton
- Treaty Oak
- Treaty Oaks
- U MARTIN – ABST 384
- Uriah Martin Surv Abs #384
- Valley View Estates
- Van Hofwegen
- Villages Of Stonebrook
- Vintage Floors Addition
- Vista Oaks
- Vista Oaks Ph 2
- Walnut Creek
- Waters Edge
- Western Hills
- Western Hills Harbor
- Whippoorwill Bay Sec A
- Whippoorwill Bay Sec F
- Whippoorwill Bay Sec G
- Whisperview Village
- William Prewitt Surv Abs #436
- Willow Ridge Add
Market Summary
Current real estate data for Single Family in Granbury as of Mar 14, 2026
794
Single Family Listed
96
Avg DOM
218
Avg $ / SqFt
$467,756
Avg List Price
Property Summary
- Located in the Bella Vista subdivision, 1228 BELTWAY Lane Granbury TX is a Single Family for sale in Granbury, TX, 76048. It is listed for $310,685 and features 4 beds, 2 baths, and has approximately 2,103 square feet of living space, and was originally constructed in 2026. The current price per square foot is $148. The average price per square foot for Single Family listings in Granbury is $218. The average listing price for Single Family in Granbury is $467,756. To schedule a showing of MLS#21159475 at 1228 BELTWAY Lane in Granbury, TX, contact your Spencer TX Real Estate, LLC agent at (817) 937-8532.
Similar Listings Nearby

1228 BELTWAY Lane
Granbury, TX






















