Welcome to this meticulously maintained and thoughtfully upgraded home at 3509 Tinsdale Dr in Flower Mound, TX. This property boasts a multitude of recent improvements, ensuring peace of mind for the new owners.
In January 2022, the home received a new roof, exterior paint, and new gutters, along with new water heaters.
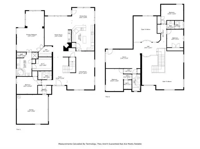
The home has been significantly upgraded with an emphasis on both comfort and style. The owner’s retreat was added, along with a 2.5-car garage. Hardwood floors were installed in the living room, dining room, and entry. The kitchen features upgraded cabinetry with a light oak finish and Corian Sandstone countertops. For security and convenience, a floor safe was installed in the master bedroom closet, and a wired security system protects all doors and windows.
Additional enhancements include:
An extended patio with stone and an extended driveway.
A brick entry way.
An extended storage area in the attic with flooring and a door.
A management center.
Many interior spaces have also been updated, with many of the following upgrades being completed in June 2014:
Master Bathroom: new shower, fixtures, mirrors, and tile.
Master Bedroom: new hardwood floors.
Bedroom 1: new Johnsonite rubber flooring.
Carpeting on the stairs and upstairs was replaced.
Media Room: new built-in media cabinets and a built-in screen and speaker cabinet.
Air conditioning units were updated in 2014.
A TV mount and Origin speakers were added in the living room, kitchen, and dining room.
This home is a perfect blend of modern upgrades and classic charm, ready for you to move in and enjoy.
In January 2022, the home received a new roof, exterior paint, and new gutters, along with new water heaters.
The home has been significantly upgraded with an emphasis on both comfort and style. The owner’s retreat was added, along with a 2.5-car garage. Hardwood floors were installed in the living room, dining room, and entry. The kitchen features upgraded cabinetry with a light oak finish and Corian Sandstone countertops. For security and convenience, a floor safe was installed in the master bedroom closet, and a wired security system protects all doors and windows.
Additional enhancements include:
An extended patio with stone and an extended driveway.
A brick entry way.
An extended storage area in the attic with flooring and a door.
A management center.
Many interior spaces have also been updated, with many of the following upgrades being completed in June 2014:
Master Bathroom: new shower, fixtures, mirrors, and tile.
Master Bedroom: new hardwood floors.
Bedroom 1: new Johnsonite rubber flooring.
Carpeting on the stairs and upstairs was replaced.
Media Room: new built-in media cabinets and a built-in screen and speaker cabinet.
Air conditioning units were updated in 2014.
A TV mount and Origin speakers were added in the living room, kitchen, and dining room.
This home is a perfect blend of modern upgrades and classic charm, ready for you to move in and enjoy.
Property Details
Price:
$749,000
MLS #:
21022429
Status:
Pending
Beds:
5
Baths:
4
Type:
Single Family
Subtype:
Single Family Residence
Subdivision:
Wellington Of Flower Mound Ph
Listed Date:
Aug 5, 2025
Finished Sq Ft:
3,778
Lot Size:
10,236 sqft / 0.24 acres (approx)
Year Built:
1999
See this Listing
Schools
School District:
Lewisville ISD
Elementary School:
Wellington
Middle School:
Mckamy
High School:
Flower Mound
Interior
Bathrooms Full
4
Fireplace Features
Gas
Fireplaces Total
1
Interior Features
Dry Bar, Sound System Wiring, Walk- In Closet(s)
Number Of Living Areas
2
Exterior
Garage Spaces
3
Lot Size Area
0.2350
Financial
Map
Community
- Address3509 Tinsdale Drive Flower Mound TX
- SubdivisionWellington Of Flower Mound Ph
- CityFlower Mound
- CountyDenton
- Zip Code75022
Subdivisions in Flower Mound
- A0231A J Clark
- A0399A J. EDMONSON, TR 2, .9677 ACRES, OLD DCAD TR
- Adams Estates
- Bella Strada Ph II
- Brandywine At Wellington
- Candlebrook Estates
- Cannon Add
- Canyon Falls
- Canyon Falls 70S
- Canyon Falls Ph 1
- Canyon Falls Village 6a
- Canyon Falls Vlg 12
- Cardinal Estats
- Carriage Glenn At Bridlewood
- Chateau Du Lac Ph I
- Chaucer Estates Ph 1
- Churchill Crossing Ph B
- Country Meadow Add Ph I
- Country Meadow Add Ph II
- Countryside Estate Ph 1
- Countryside Estate Ph 2
- Creek Wood Add Ph 2
- Creekside At Cross Timbers
- Dixon Estates
- Dominion Estate
- E Smith
- Fallbrook Add
- Fallbrook Addn
- Flower Mound Church Of Christ
- Flower Mound Riverwalk
- Forest Park Estates
- Franklin Hills
- Glenwick
- Glenwick Estate Ph 1
- Glenwick Estate Ph 2
- Hearthstone At Firewheel
- Hidden Valley Country Estates
- Highland Court
- Hillcrest At Wellington Ph 1
- Hillcrest At Wellington Ph 2
- Hillside Of Flower M
- Hilltop Estate Ph 1 Lewisville
- Hilltop Estate Ph 2 Lewisville
- Hilltop Estate Ph 3
- J Gibson
- J West
- Jm Ruiz
- Lake Bluff Sub
- Lake Forest Add Ph 2
- Lake Forest Garden Home Ph 1
- Lake Hill Estates
- Lakeshore Terrace
- Lakeside
- Lakeside Ph Three
- Lakeside Tower
- Lakeside Village
- Lakeside Village Phase 1
- Lakeview Estates Lewisville I
- Legends Add
- Lexington Downs At Bridlewood
- Lexington Glen
- M J Owen
- Mcgowan & Pitcock
- Mckamy Creek
- Mep & P
- Montalcino Estates Ph 1
- Montalcino Estates Ph 2
- Morriss Commons Add
- N E Thompson
- North Lake Highlands
- North Lake Highlands Sec 2
- North Shores Estate
- Oak Heights Sub
- Oaks Of Lake Forest
- Oakwood Estates Lewisville
- Ow Harris
- Parkmont Place
- Pecan Acres
- Point Noble
- Post Oak Acres
- Prairie Creek
- Prairie Creek Add Ph 2
- Ra Davidson
- Red Bud Point
- Remington Park At Bridlewood
- River Oaks Estates
- Riverside Point
- Roanoke Hills
- Royal Oaks
- Rustic Timbers Ph II
- Saddlewood Add
- Sanctuary Add
- ShadowRidge Ph 1
- Shadowridge South Ph 1
- Shady Point Acres
- Sherwood Estate III
- Sherwood Estate IV
- Southgate Ph 2
- Southpoint Addition
- Stafford Estates Ph I
- Stafford Estates Ph II
- Steeplechase at Bridlewood
- Stone Creek Add Ph 1
- Stone Creek Add Ph 2
- Stone Hill Farms
- Stone Hill Farms Ph 1, 2 Sec I
- Stone Hill Farms Retail Add
- STONE HILL FARMS RETAIL EAST ADDN
- Stone Hill Farms Sec 4 Ph I
- Stone Hill Farms Sec 4 Ph II
- Sunrise Circle Addition
- Surrey Lane Addition
- Surrey woods
- T & Prr
- Tanglewood Park Office Condomi
- The Enclaves At Chateau Du Lac
- The Estates At Tour 18
- The Estates At Tour 18 Sec 1
- The Estates At Tour 18 Sec 2
- The Estates At Tour 18 Sec 3
- The Landing
- The Peninsula At Twin Coves
- The Peninsula At Twin Coves Ad
- The Pinnacle At River Walk
- The Reserve At Creekside
- The Woods At Lake Forest
- The Woods At Wellington
- Thorn Hill Add Ph 1
- Timber Creek Park Add Ph 1
- Timber Creek Park Add Ph 2
- Timber Creek Park Add Ph 3
- Timber Creek Park Add Ph 6
- Timber Creek Park Addn Ph 3
- Timbercreek
- Timbercreek 2
- Timbercreek Comm #10b
- Timbercreek Comm #11
- Timbercreek Comm #3
- Timbercreek Comm #4
- Timbercreek Comm 10a
- Timberview Estate Ph 1
- Timberview Estates West Ph 1, 2
- Tinley Park
- Todd Add
- Towne View Estate Ph I
- Townlake Ph 4
- Townlake Ph One
- Townlake Ph Two
- Trailwood Ph 1
- Trailwood Ph II
- Twin Cove Estate
- villas at Southgate
- Villas at Southgate Ph 1
- Villas at Southgate Ph 2
- Villas of Southgate Ph 1
- Walnut Grove
- Walnut Grove Add
- Wellington Estates Ph 1b
- Wellington Estates Ph 2a
- Wellington Estates Ph 3
- Wellington Of Flower Mound Ph
- Wellington of Flower Mound Ph 7
- Westchester Flower Mound 02
- Westchester-Flower Mound 2
- Whyburn Add
- Wichita Creek Estates Ph 2
- Willow Ridge Estate
- Wilson-Freeman
- Windsor Heights At Bridlewood
- Woodlake Estates
- Woodlake Estates Ph 2
Market Summary
Current real estate data for Single Family in Flower Mound as of Mar 14, 2026
240
Single Family Listed
63
Avg DOM
337
Avg $ / SqFt
$1,295,284
Avg List Price
Property Summary
- Located in the Wellington Of Flower Mound Ph subdivision, 3509 Tinsdale Drive Flower Mound TX is a Single Family for sale in Flower Mound, TX, 75022. It is listed for $749,000 and features 5 beds, 4 baths, and has approximately 3,778 square feet of living space, and was originally constructed in 1999. The current price per square foot is $198. The average price per square foot for Single Family listings in Flower Mound is $337. The average listing price for Single Family in Flower Mound is $1,295,284. To schedule a showing of MLS#21022429 at 3509 Tinsdale Drive in Flower Mound, TX, contact your Spencer TX Real Estate, LLC agent at (817) 937-8532.
Similar Listings Nearby

3509 Tinsdale Drive
Flower Mound, TX










































