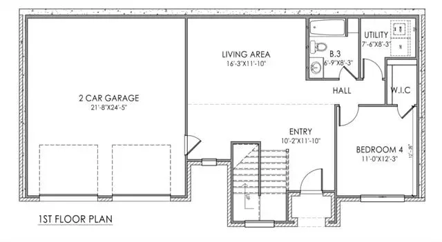
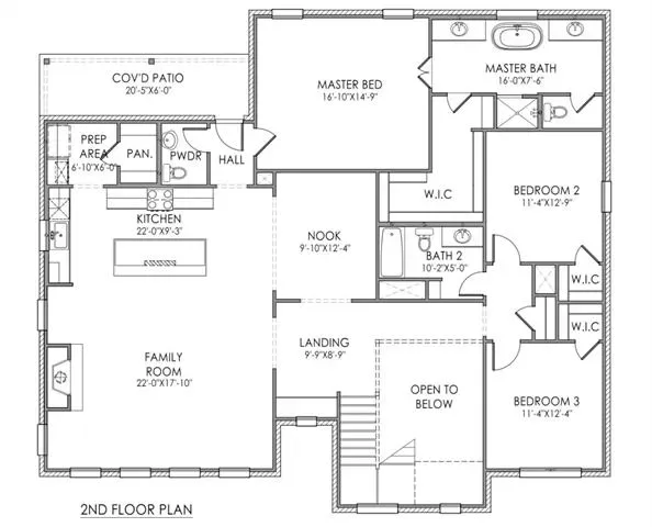
Discover one of the most unique homes in DFW! This stunning residence is one of very few in the metroplex featuring a true walk-out basement, offering incredible flexibility and lifestyle options. Perched on a prime homesite, the home captures fabulous views from the main living level, creating a light-filled, open feel you won’t find anywhere else. The basement level is ideal for entertaining and includes a private guest retreat and 2nd living space. Some of the gorgeous design features include luxury vinyl wood-style flooring, chefs dream kitchen with an expansive eat-in island, stainless kitchen appliances, wood-burning fireplace, spacious master bathroom with a freestanding tub and separate shower, designer lighting and tiles throughout, and a full landscaping package. Don’t miss your chance to own this rare gem that combines exceptional design with breathtaking views!
Buyer or buyers agent to verify all information.
Buyer or buyers agent to verify all information.
Property Details
Price:
$675,000
MLS #:
21044059
Status:
Active
Beds:
4
Baths:
3.1
Type:
Single Family
Subtype:
Single Family Residence
Subdivision:
Brookside
Listed Date:
Aug 27, 2025
Finished Sq Ft:
3,007
Lot Size:
10,890 sqft / 0.25 acres (approx)
Year Built:
2025
See this Listing
Schools
School District:
Fort Worth ISD
Elementary School:
Westpark
Middle School:
Benbrook
High School:
Benbrook
Interior
Bathrooms Full
3
Bathrooms Half
1
Flooring
Luxury Vinyl Plank
Interior Features
Cable TV Available, Chandelier, Decorative Lighting, Granite Counters, Open Floorplan, Pantry, Walk- In Closet(s), Wired for Data
Number Of Living Areas
2
Exterior
Exterior Features
Balcony
Fencing
Fenced, Gate
Garage Height
9
Garage Length
20
Garage Spaces
2
Garage Width
21
Lot Size Area
0.2500
Financial
Map
Community
- Address8965 Armstrong Court Benbrook TX
- SubdivisionBrookside
- CityBenbrook
- CountyTarrant
- Zip Code76126
Subdivisions in Benbrook
- Bellaire Country Place
- Benbrook Estates Add
- BENBROOK ESTATES ADDITION
- Benbrook Lakeside Add
- Benbrook Lakeside Addition
- Boston Heights Add
- BOSTON HEIGHTS ADDITION
- Brookhaven Estates Add
- Brooks-Moreland Add
- Brookside
- Brookside Benbrook Field Ph II
- CEDAR Creek Townhomes
- Cedar Creek Twnhms
- Country Day Estates
- Dunlap Add
- Greenbriar Add
- Greenbriar Addition – Benbrook
- Heritage Hills Add
- Hilltop Heights Add
- La Bandera At Team Ranch
- Meadows Add
- Meadows West
- Meadows West Add
- Mont Del Estates Add
- North Benbrook Add
- One Main Place Condo
- Palomino Estates
- Pecan Valley
- Plantation Estates
- Reata Place At Team Ranch Add
- Ridglea Country Club Estate
- Ridglea Country Club Estates
- Ridglea Indust Add
- Russ Lo Valley Addition
- Smith, John Wesley Survey
- Sunset Terrace Add
- Timber Creek Add
- Triangle Add
- Trinity Estates Add
- Trinity Estates Addition
- Valley West Add
- Wallace Heights Add
- West Square
- Westpark Add
- WESTPARK ADDITION-BENBROOK
- Westpark Estates
- Westvale Add
- Whispering Oaks Add
- Whitestone Crest
- Whitestone Crest Ph 1
- Whitestone Crest Ph 2
- Whitestone Heights
- Whitestone Heights Add
- Whitestone Point
- Whitestone Ranch
- Whitestone Ranch Add
- Whitestone Ranch Ph 4
- Winchester
- Winchester Estates
Market Summary
Current real estate data for Single Family in Benbrook as of Mar 17, 2026
86
Single Family Listed
103
Avg DOM
198
Avg $ / SqFt
$449,902
Avg List Price
Property Summary
- Located in the Brookside subdivision, 8965 Armstrong Court Benbrook TX is a Single Family for sale in Benbrook, TX, 76126. It is listed for $675,000 and features 4 beds, 3 baths, and has approximately 3,007 square feet of living space, and was originally constructed in 2025. The current price per square foot is $224. The average price per square foot for Single Family listings in Benbrook is $198. The average listing price for Single Family in Benbrook is $449,902. To schedule a showing of MLS#21044059 at 8965 Armstrong Court in Benbrook, TX, contact your Spencer TX Real Estate, LLC agent at (817) 937-8532.
Similar Listings Nearby

8965 Armstrong Court
Benbrook, TX


























