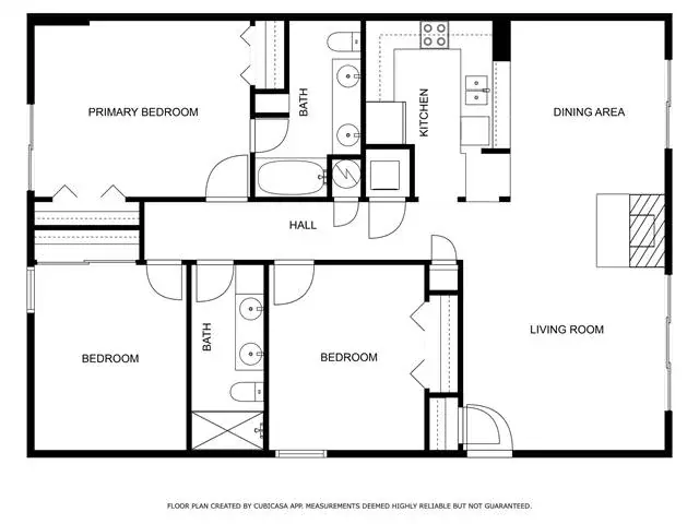
Waterfront Living at Its Finest on Eagle Mountain Lake. This is the lakefront retreat you have been waiting for. This first level condo offers breathtaking views, peaceful sounds of nature, fishing, floating on a raft, have lunch at the park bench or meet friends at the dock to hop on a boat. 3 generous sized bedrooms and 2 full baths for comfort and entertaining. Ample counter space and no shortage of cabinets with granite throughout. Stackable washer dryer closet inside for convenience. Cozy evenings by the wood burning fireplace or open the large sliding glass doors to take in the fresh air and views. Primary suite includes large closet and a covered patio with privacy glass. Two covered patios at the water side to decorate in style. Eagle Mt marina 5 minute drive, close to lakefront parks and beaches. Quick access to Hwy 199, easily get to downtown Fort Worth and DFW airport for a smooth getaway. Great shopping food, clothing stores, lawn and garden just up the road to Lake Worth. Convenience, relaxation and adventure awaits you.
Property Details
Price:
$358,000
MLS #:
21046889
Status:
Active
Beds:
3
Baths:
2
Type:
Condo
Subtype:
Condominium
Subdivision:
Timbers The Condo Apts #2
Listed Date:
Aug 31, 2025
Finished Sq Ft:
1,395
Lot Size:
48,874 sqft / 1.12 acres (approx)
Year Built:
1971
See this Listing
Schools
School District:
Azle ISD
Elementary School:
Azle
High School:
Azle
Interior
Bathrooms Full
2
Cooling
Ceiling Fan(s), Central Air, Multi Units
Fireplace Features
Living Room, Wood Burning
Fireplaces Total
1
Flooring
Carpet, Ceramic Tile, Laminate, Simulated Wood
Heating
Central, Electric, Fireplace(s), Other
Interior Features
Built-in Features, Cable TV Available, Decorative Lighting, Eat-in Kitchen, Granite Counters, High Speed Internet Available, Pantry
Number Of Living Areas
1
Exterior
Carport Spaces
1
Community Features
Community Dock, Community Sprinkler, Gated, Lake, Other
Construction Materials
Vinyl Siding, Wood
Exterior Features
Covered Patio/Porch, Dock
Fencing
Electric
Lot Size Area
1.1220
Waterfront Features
Lake Front – Common Area
Financial
Map
Community
- Address388 Driftwood Court 1A Azle TX
- SubdivisionTimbers The Condo Apts #2
- CityAzle
- CountyTarrant
- Zip Code76020
Subdivisions in Azle
- .
- A-617 MEP & PRR 1.506 ACRES TRACT PT 19
- Adam Acres Estates
- ANDY RANCH, F-445
- Arbor Vista
- Ashwood Park
- Ashwood Park Ph 2
- Ashwood Ph 2
- Auburn Terrace
- Azle Grove
- Azle Grove Ph 1
- Azle Heights Add
- Azle Original Town Of
- Beaver Creek
- Boling Ranch Estate 03
- Boling Ranch Estate II
- Boling Ranch Estates II
- Boling Ranch Estates Ph 03
- Briar Oaks Ranchett
- Briar West
- BRISTOL FARM
- Bristol Farm Add
- Calhoun Acres
- Casitas Villas
- Castle Hill Estates
- Castle Hills Estates
- Castle Hills Northwest
- Chamberless
- Cole I W Sub Water Board
- Country Cottage Park Add
- county
- Craft Farms
- Cross Timbers Estates
- Days Add RV Park
- Dears Farm Phase 1
- Deats Farm Ph 1
- Deer Glade Ph 1
- Deer Glade Ph 2
- Deer Glade- Ph 1
- Deer Ridge Estates
- Deer Ridge Estates Ph
- Deer Trail Add
- Eagle Lake Garden Village Add
- Eagle Mountain Acres
- Eagle Mountain View Add
- Eagle Mountain View Addition
- Eagle Pointe
- Encanto Estates
- Enchanted Lakes
- Enchanted Lakes Pc
- Escondido
- Escondido Eagle Mountain Lake
- Eustace Hill Stanfield Wtr Brd
- Fairway Estates II
- Falconer Addition
- Forest Glen
- FOREST GLEN ADD
- Golden Pond
- Golden Pond Estate
- Harbor Parc
- Henderson Add
- High School Add
- Highwoods Add
- Hills of Briar Oaks
- Huckleberry Hill
- Huckleberry Hill #5
- HUDSON THOMAS
- HUNT
- Hunters
- Hunters Add
- J Wilcox Surv Abs #1702
- J Wilcox Survey
- John Redwine Survey Abstract #1135
- John Spain Survey in Parker County
- KEY WILLIAM O
- Kimbrough Place
- Kimbrough Sub
- Lake Crest Park Add
- Lake Forest Add
- LAKE FOREST ADDITION
- Lake Ridge Estates Add
- Lakeview Estates Ph 2
- Lakeview Heights
- Lakeview Hts
- Live Oak Park Add
- LOMA VISTA
- Lone Pine Estates
- M E P & P RR CO SURVEY #33
- Marr Lynn Estates
- Mckinsey
- mep & prr
- Mep& Prr Co Surv Abs #617
- Mep&P Co Surv Abs 1127 Tracts
- Mg Huling Add
- Miller Perry Sub Water B Add
- Miller Perry Sub-Water B
- Morrow Estates
- Oak Court Add
- Oak Harbor Est
- Oak Harbor Estates Add
- Oaklawn Add
- Oakridge Homesites
- Old Cobweb Park
- Old Cobweb Park Add
- Paschal R A Surv
- PASCHAL, R A SURVEY
- Pecan Valley
- Peche Ranch
- Peche Ranch F-358
- Pierce Addition
- Point Break Add Ph
- Racetrac Add
- Ranch Oak Farms Estates
- Reata
- Reeses Mill Creek Add
- Roeser
- Roeser Addition
- Rosewood Estates Pc
- Rowden Add
- Sandy Beach
- see attached survey
- Shady Creek Estates
- Silver Creek Estates Addition
- Skyview Estates
- Snug Harbor Condo Apts
- Snug Harbor Village Add
- Spring Valley Estates
- Spring Valley Estates West
- Stone Eagle
- Stribling Square Add
- SURV: JACOB WILCOX
- T Harmon
- T Harmon 249
- Tangelwood Estates
- Tanglewood Estates
- TBD
- The Pines Pc
- Thomas Harmon Surv Abs #1931
- Thomas Harmon Survey
- Timbercreek Valley
- Timberlake Estates Add
- Timbers The Condo Apts #2
- Walnut Creek Add
- Wasser Addition
- Waterr Board-Perry Miller Sub
- Westlake Woods Add
- Wheeler Estates
- Whitfield Add
- Wilcox
- Wilcox, Jacob Survey #43 Abstract 1702 Tract
- William D Hailey Survey
- Windy Hill Estate
- Woodland Terrace Add
- Wright-Tucker Farm
- WT Tally
- Wudco Trails Add
- Younger Ranch Estates
- Younger W N Sub Water Brd Add
Market Summary
Property Summary
- Located in the Timbers The Condo Apts #2 subdivision, 388 Driftwood Court 1A Azle TX is a Condo for sale in Azle, TX, 76020. It is listed for $358,000 and features 3 beds, 2 baths, and has approximately 1,395 square feet of living space, and was originally constructed in 1971. The current price per square foot is $257. The average price per square foot for Condo listings in Azle is $228. The average listing price for Condo in Azle is $330,625. To schedule a showing of MLS#21046889 at 388 Driftwood Court 1A in Azle, TX, contact your Spencer TX Real Estate, LLC agent at (817) 937-8532.
Similar Listings Nearby

388 Driftwood Court 1A
Azle, TX































