Wake up to soft morning sun, peaceful courtyard views, and a lifestyle designed around nature and walkability. Located on the island in Viridian, 3718 Pelican Rest offers a rare sense of calm just steps from the lake, trails, and preserved green space.
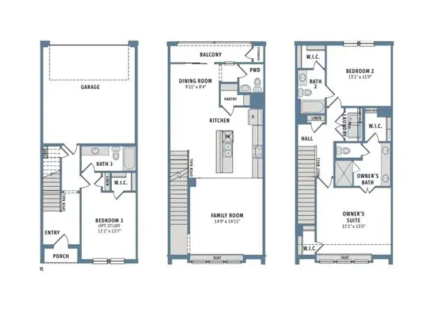
This three-level townhome features a flexible and functional layout. The first floor includes a private bedroom with en-suite bath and walk-in closet—ideal for guests, a home office, or multigenerational living—set against tranquil garden views.
The second floor is filled with natural morning light and offers an open-concept kitchen, dining, and living space that flows effortlessly for everyday living and entertaining. A convenient half bath is also located on this level.
Upstairs, the primary suite overlooks the beautifully maintained courtyard, creating a quiet retreat at the end of the day. A secondary bedroom with its own en-suite bath completes the third level, offering comfort and privacy throughout the home.
Just a two-minute walk from the front door, enjoy lakeside seating, scenic trails, and the natural surroundings that make Viridian one of North Texas’ most distinctive communities. Designed with conservation in mind, Viridian blends wetlands, lakes, and open green space with resort-style amenities including pools (with an adult-only option), tennis and pickleball courts, a sailing center, parks, and year-round community events.
Ideally located minutes from DFW Airport and positioned between Dallas and Fort Worth, this home offers the perfect balance of peaceful living and everyday convenience. Thoughtfully situated, light-filled, and surrounded by nature—3718 Pelican Rest is island living at its best.
This three-level townhome features a flexible and functional layout. The first floor includes a private bedroom with en-suite bath and walk-in closet—ideal for guests, a home office, or multigenerational living—set against tranquil garden views.
The second floor is filled with natural morning light and offers an open-concept kitchen, dining, and living space that flows effortlessly for everyday living and entertaining. A convenient half bath is also located on this level.
Upstairs, the primary suite overlooks the beautifully maintained courtyard, creating a quiet retreat at the end of the day. A secondary bedroom with its own en-suite bath completes the third level, offering comfort and privacy throughout the home.
Just a two-minute walk from the front door, enjoy lakeside seating, scenic trails, and the natural surroundings that make Viridian one of North Texas’ most distinctive communities. Designed with conservation in mind, Viridian blends wetlands, lakes, and open green space with resort-style amenities including pools (with an adult-only option), tennis and pickleball courts, a sailing center, parks, and year-round community events.
Ideally located minutes from DFW Airport and positioned between Dallas and Fort Worth, this home offers the perfect balance of peaceful living and everyday convenience. Thoughtfully situated, light-filled, and surrounded by nature—3718 Pelican Rest is island living at its best.
Property Details
Price:
$515,000
MLS #:
21151302
Status:
Active
Beds:
3
Baths:
3.1
Type:
Condo
Subtype:
Townhouse
Subdivision:
Viridian Village 1k
Listed Date:
Jan 16, 2026
Finished Sq Ft:
2,011
Lot Size:
1,524 sqft / 0.04 acres (approx)
Year Built:
2021
See this Listing
Schools
School District:
Hurst-Euless-Bedford ISD
Elementary School:
Viridian
High School:
Trinity
Interior
Bathrooms Full
3
Bathrooms Half
1
Cooling
Ceiling Fan(s), Central Air
Flooring
Carpet, Tile, Wood
Heating
Central
Interior Features
Decorative Lighting, Eat-in Kitchen, In- Law Suite Floorplan, Kitchen Island, Pantry, Walk- In Closet(s)
Number Of Living Areas
1
Exterior
Construction Materials
Brick, Siding
Garage Spaces
2
Lot Size Area
0.0350
Financial
Map
Community
- Address3718 Pelican Rest Way Arlington TX
- SubdivisionViridian Village 1k
- CityArlington
- CountyTarrant
- Zip Code76005
Subdivisions in Arlington
- Abr Add
- Abram Estates
- Ambassador Square One
- Ambercrest Add
- AMBERCREST ADDITION
- Americana Estates Add
- Arbor Valley
- Arkansas Heights Add
- Arkansas Oaks Add
- Arlington Downs Twnhs
- Arlington Estates Add
- Arlington Gardens Add
- Arlington Heights Add
- Arlington Manor
- Arlington Mansfield Submarket
- Arlington Meadows Add
- Arlington Oaks Condo
- ARLINGTON OAKS CONDOMINIUM
- Arlington Oaks Condominiums
- Arlington Park Add
- ARLINGTON PARK ADDN
- Arlington Rfp Add
- Arlington Terrace
- Arlington Terrace Add
- Arlington Villa Add
- Ascension Point Condo
- ASCENSION POINT CONDOMINIUMS
- Ashbury Square
- Autumn Hill Arlington
- Avondale Place Add
- Balch J Add
- Ballpark Estates
- Ballpark Estates Townhomes
- Ballweg Add
- Barnes & Ditto Add
- Bay Club Add
- Bay Lakes North
- Bayberry Hills Add
- Belle Maison Estates
- Belle Meade
- Bent Oaks Estates Add
- Berkeley Square
- Berkeley Square Add
- Bowen Place
- Brandon Place
- Brandyridge
- Brasher Add
- Briar Meadow Add
- Briarwood Estates
- Brighton Estates
- Brittania Gardens
- Brittany Woods #1 & 2
- Brookmeadow Add
- Brownlee Meadows
- Buckingham Estates
- Buena Vista Add
- Burgundy Hill Add
- Caldwell P Add
- Calender Crossing
- Calender Place
- Calender Xing
- California Meadows
- Cambric Estates
- Cantor Park Condo
- Castle Oaks Add
- Cedar Oaks Add
- Cedar Rdg Arlington Twnhms Bld
- Chantilly Court
- Chapparal Valley
- Chasewood Oaks
- Chasewood Oaks Condo
- Chelsea Park Twnhms
- Cherry Creek Estates Add
- Chestnut Hills
- Chestnut Spgs
- Cimarron Estates
- Cloisters Condo
- Cloisters Condo The
- Cloisters Condominium
- Clover Park Add
- Club Oaks Add
- Clubview Add
- Coldwater Creek Add
- College Oaks Add
- Collingwood Village
- Collins Terrace Add
- Colonial Estates
- Colonial Greens South Add
- Columbine
- Columbine The A Condo
- COLUMBINE, THE A CONDOMINIUM
- Cooper Square Arlington
- Copperfield Add
- Coronet Estates
- Cottages On The Park Add
- Country Estate Add
- Country Estates Add
- Country Green Sec 1 Add
- Countryside Add
- Creekside Park Add
- Creekside Village Add
- Crest The
- Crestbluff Condo
- Crestgrove Condo
- Crossgate Add
- Crossing At Ruidosa Ridge
- Daggett E Add
- Daniel Meadows Sub
- Dardan Add
- Davis Sol Add
- Deer Creek Arlington
- Deerwood Park Add
- Dominion The Arlington
- Dorchester Place Add
- Double Y Wooded Estate Add
- Duplex North Add
- Duplex South Add
- Eagle Chase Add
- Eden Creek Add
- Eden Gardens Add
- Eden Glen Estates
- Eden Road Estates
- Edgewood Add
- Edgewood East
- Eldorado Add
- Elliot Heights
- Elliott Heights Add
- ELLIOTT HEIGHTS ADDITION
- Elliott Revision
- Elliott Revision Sub
- Elm Shadows Add
- Eltroy Heights
- Eltroy Heights Add
- Enchanted Lake Estate
- Enchanted Oaks Add
- ENCLAVE OF SHADY VALLEY
- Englewood Estate
- Estates Above Wimbledon
- Estates Of River Ridge The
- Estates On Rush Creek The
- Evergreen On The Park
- Fairfield Add
- FAIRFIELD ADDITION
- Fairfield East
- Fairway Meadows
- Fairway Meadows Add
- Fannin Farm
- Fannin Farm Add
- Fannin Farm West Add
- Fhm Ross Add
- Fielder Place Add
- Fielder Place North Add
- Fielder Terrace
- Ford Sub
- Forest Brook Twnhms Add
- Forest Creek
- Forest Edge Condo Sub
- Forest Grove Add
- Forest Hills Add
- Forest Park Add
- Fossil Lake Add
- Fox A Add
- Fox Run Add
- Foxwood Glen
- Friendly Village Mhp
- Garden Acres Add
- Garden Park Square
- GASLITE ESTATE ADD
- Georgetown Add
- Glen Ridge Add
- Glen Spgs Add
- Glen Spgs West Add
- Glenbury Add
- Glynn Oaks Add
- Glynndale Add
- Goodwin J J Add
- Grand Park Estates
- Green Leaf Add
- Green Leaf Addition
- Green Meadows Add
- Green Oaks Add
- Green Oaks Garden Homes
- Green Oaks Preserve
- Green Oaks Village Add
- Green Valley Add
- Greenwood Hill Add
- Gsid Comm #2 Inst #1
- GSID COMM #2 INST #4
- Guerin Square
- GUERIN, M ADDITION
- Gunn M S Add
- Harmony Add
- Harris Crossing Ph I
- Harris F L Lot 11A-2
- Harris Ridge
- Harvest Hills Add
- Harvest Hills III Add
- Harwood Meadows Add
- Henry Russell Survey Abstract 1324
- Heritage Oaks-Arlington
- Hialeah Add
- Hidden Creek Estates
- Hidden Oaks Add
- Hiett Ellis Sub
- High Country Estates
- High Meadows Add
- High Meadows Addition
- High Oaks Estate
- High Oaks Estates
- High Park Village Add
- HighCroft Estates
- Highland Park Add
- HIGHLAND PARK ADDITION-ARLINGTON
- HIGHLAND PARK ADDITION-ARLNGTN
- Highland Ridge Add
- Highland Trail Add
- Highpoint Add
- Hillcrest Add
- Hillcrest Park Add
- Hilldale Add
- Hillside Add
- Hillvalley Estates
- Hogans Cottages
- Hollandale Add
- Hollandale East Add
- Hollis
- Hollis Add
- Hollow Creek Estates
- Holly Hollows Add
- HOLLY HOLLOWS ADDITION %234
- Homemaker Hills Add
- Howard M B Estates
- HUnter Glenn Addition
- Hunter Place North
- Hunter Pointe Add
- Hunter Trail Add
- Hunters Creek Add
- Hunterwood Estates Add
- Huntwick Add
- Indian Hill Add
- Indian Oaks Estates
- Indian Trace Add
- Indian Wells Add
- Indian Wells Addition
- Interlochen Estates Add
- Interlochen West Add
- Irish Glen Add
- Island At Enchanted Bay
- Island At Enchanted Bay The
- Jackson Square Add
- James R Newton Surv Abs 1170
- John R Hawkins Surv Abs #792
- John Stephens Surv Abs #1428
- John Wheat Surv Abs #1678
- Juniper Hill Add
- Kelly S D Sub
- Kelly Thomas E Addition
- Knapp & Delk Add
- Knight’s Landing on Eden Rd phase 2
- Knight’s Lndg Add Ph II
- Knights Lndg Add
- Knottingham Add
- knottingham addition
- Knox Add
- L Barned #113 & M Coleman Surv
- LA FRONTERA
- La Frontera South
- Laguna I Add
- Laguna Village Add
- Lake Arl Estates Add
- Lake Arl Highlands Add
- Lake Arl Ind Park Add
- Lake Hill Estates Add
- LAKE HILL ESTATES ADDITION
- Lake Park Estate Add
- Lake Port Meadows Add
- Lake Port Village Add
- Lakehill Manor Addition
- Lakeridge Estates Add
- Lakeside at Viridian
- Lakeside-Viridian
- Lakewood Add
- Lamar Add
- Lamar North Add
- Lampe George Add
- Landmark Village Add
- Lazy River Add
- Lee A J Add
- Leeds Add
- Lochngreen Village Add
- Lonesome Dove Estates
- Los Prados Estates
- Lost Creek Estates Add
- Lowe Nathan Add
- Lucas E O Add
- Luttrell James Sub
- Lynn Creek Village Add
- Magnolia Heights Add
- Main 7 Townhome Addition
- Main 7 Twnhm Add
- Maise Matthew Add
- Maise, Matthew Survey
- Manchester Place Add
- Manorhomes Of Wimbledon Condo
- Manors Of Channing Park The
- Marina Shores
- Marthas Vineyard Add
- Mask W Add
- Masonic Heights Add
- Matlock Estates
- Matlock Estates Add
- Matlock Manor Add
- Maybrook Add
- Mayfield Cooper Station Office
- Mayfield Meadows Add
- Mc Kamy Lakes Estates
- Mc Kamy Oaks Add
- Meadow Creek Add
- Meadow Green
- Meadow Green Add
- Meadow Oaks Village Add
- Meadow Park Estates Add
- Meadow Vista Estate Addition
- Meadow Vista Estates Add
- Meadow Wood Estates Add
- Meadowbrook Park Add
- Medlin O Add
- Mill Creek Estates Add
- Millbrook #1
- Mission at Johnson Creek
- Mission Ridge Estates Add
- Mitchell R A Add
- MONDAVI ESTATES
- Monterrey Add
- Monties Ranchettes Sub
- Moten Add
- Mountain View Add
- Murray Estates Add
- Murwick Add
- New York Meadows Add
- Newport Village
- Newton A Add
- Noah Homes Add
- Nob Hill Add
- North Creek Estates
- Northbrooke Arlington
- Northcrest Park Add
- Northwest Heights
- Northwood Park Add
- Norwood Square
- Oak Branch Estates
- Oak Canyon
- Oak Country Add
- Oak Creek Condo
- Oak Creek Estates
- Oak Glen Add
- Oak Glen Estates
- Oak Manor Add
- Oak Ridge Estates
- Oak Tree Estates
- Oakbrook Add
- Oakbrook Garden Homes
- Oaks North Add
- Oaks The Arlington
- Oakwood Court
- Oakwood Terrace Add
- Olde Towne Add
- Oldfield Village
- Olympia Park
- Ouro Verde
- Overland Stage Estates
- Overland West
- Owl Creek Estates Add
- Oxford Square
- Palos Verdes
- Park Chase Add
- Park Highlands
- Park Place East
- Park Place North
- PARK ROW ADD
- Park Side Place
- Parkcrest Place
- Parker Oaks Estates
- Parks At Susan Drive The
- Parkside Condos
- Parkway Central Add
- Parkway Court Add
- Parkway North
- Paxton Village
- Pebblebrook Village Condo
- Pebblebrook Vlg Condo Bldg #4
- Pecan Acres Condo
- Pecan Acres Sub
- Pecan Chase Condo
- Pecan Meadows
- Pennsylvania Gardens Add
- Peter Rouche Surv Abs #1339
- Phillips Park Add
- Pike View Add
- Pinehurst Meadows
- Pineridge Estates
- Plaza Heights Add
- Plaza Terrace Add
- Pleasant Forest Add
- Pleasant Wood Estates
- Potomac Pointe
- Preserve at Kelly Elliott
- Preserve on Kelly Elliott
- Prestonwood Estates
- Prestonwood Estates Add
- Quail addition
- Quail Creek Add
- Quail Hollow On The Lane Add
- Quail Valley Addition
- Ramey R R Add
- Ramsey Add
- Randol Mill Park Estates
- Randol Wood Add
- Reddy J V Add
- Reflection Bay Condo On Lake Arl
- Regency Highpoint Add
- Ridge Point Add
- Ridgecrest Add
- Riodge Point
- River Bend Add
- Robin Hood Add
- Rocky Canyon Estates
- Rolling Acres Add
- Rolling Hills Estate Arlington
- Rolling Meadows Add
- ROLLING MEADOWS ADDITION
- Rolling Meadows Twnhs
- Roosevelt Estates
- Ruidosa
- Running Ranch Add
- Runnymede Woods
- Rush Creek Ranch Estates
- Rushmoor Add
- SAINT CLAIRE WOODS TOWNHOUSES
- Saint Claire Woods Twnhs
- Sandalwood Estates Add
- Schoeneman Add
- School Hill Add
- Scots Wood Estates
- Scots Wood Estates #4
- Scott Add
- Scott Annex Add
- Scottswood Rice Condo
- Seclusion Rdg
- Seville Hills
- Seville Hills Sub
- Shady Oaks Garden Home Add
- Shady Oaks Gardens Sub
- Shady Park Add
- Shady Valley Est
- Shady Valley North Add
- Shady Valley West Add
- Shane Meadow Add
- Shelby Add
- Sherwood Knoll Add
- SHERWOOD KNOLL ADDITION
- Shorewood Add
- SHOREWOOD ESTATES
- Shorewood Hills Addition
- Six Flags Bus Park Add
- Smith A M Add
- Smokerise Add
- Sol Davis Add
- Somerset Add
- South Arlington
- South Arlington Estates
- South Center Street Twnhms
- South Collins Terrace Add
- South Cooper Estates Add
- South Hampton
- South Hampton Add
- South Pointe Add
- South Ridge Hills Add
- South Side
- South Side Add
- SOUTH SIDE ADDITION
- South Side Addn
- Southwind
- Southwind Add
- Southwind Mdws Ph 1
- Spring Lake Add
- Spring Meadow Add
- Spring Meadows Add
- Spring Park Estates Add
- Spring Valley Add
- Spring wood
- Springridge Add
- SPRINGRIDGE ADDITION
- St James Place Condo
- Stage West
- Stage West Add
- STAGECOACH ESTATES
- Stagecoach Estates Add
- Sterling Green Add
- Sterling Greene
- Stonebrook Estates Add
- Stoneridge Add
- STONERIDGE ADDITION
- Stoneridge West Tnhse Devlpmnt
- Stratford Courts
- Strickland David Add
- Summer Place South Add
- Summer Place Twnhms Add
- Summerbrooke Estates
- Summerwood Add
- Sunset Add
- Sunset Hills Arlington
- SUTHERLAND
- Swiss Ave Add
- SYCAMORE SQUARE
- SYLVAN HEIGHTS
- Sylvan Heights Add
- Tanglewood Add
- Temple O Harris Abs 645
- Terrace Oaks
- Th Watson Surv
- The Crest
- The Estates On Rush Creek
- The Oaks
- Tierra Verde Estates Add
- Tiffany Park Add
- Tiffany Woods Add
- Timberwood Estates
- Tinsley Add
- Toliver Acres Add
- Towngreen Village Add
- Trails East Add
- TREETOP ADDITION
- Turf Club Estates Add
- Turf Club Estates Addition Blk
- Turner James T Add
- Tuscany Lakes Addition
- Twin Hills
- Twin Hills Ph 2
- Twin Lakes Add
- University Hills Add
- Valista Office Park
- Valley View Add
- Vermillion Place Add
- Village At Palos Verdes The
- Village At Regents Park The
- Villas Of La Frontera South
- Villas Of Tuscany
- Viridian
- Viridian 2d
- Viridian Add
- Viridian Elements
- Viridian Elements 55+
- VIRIDIAN VILLAGE
- Viridian Village 10
- Viridian Village 1A2
- Viridian Village 1b
- Viridian Village 1c 2
- Viridian Village 1c-2
- Viridian Village 1e-2
- Viridian Village 1e-3
- Viridian Village 1e1b
- Viridian Village 1F
- Viridian Village 1g
- Viridian Village 1k
- Viridian Village 2a
- Viridian Village 2b
- Viridian Village 2c
- Viridian Village 2d
- Viridian Village 2f
- Viridian Village 3a
- Viridian Village 3b
- Viridian Village 3b – 55+ Community
- Viridian Village North
- Viridian Village or Viridian
- Viridian Village Ph 1e-2
- Viridian Village1g
- Viridian Vlg 2d
- Viridian Vlg 3a
- Waldrop Heights Add
- WALSH, R M SURVEY
- Warnell W W Add
- Watercrest Estates
- Waterfront Enchanted Bay Arl
- Waterway Park North
- Waterwood Estates
- Waterwood Village
- Watsonville Heights Add
- Waverly Place
- Webb Town Of
- Webb-Britton Estates
- Wellington Place I Condos
- Wentworth Estates Add
- Wesley Commons
- West Park Estates
- WEST PARK ESTATES BLOCK
- Westchester Park
- Westchester Place
- Western Plains Estates
- Western Trails Add
- Westgate Square
- Westgate Square 1st Sec
- Westlake Add
- WESTLAKE ADDITION
- Whispering Meadow 2nd Inc Add
- Whitemarsh Estates Add
- Wildwood Estates
- Wilemon Sub
- Wilkerson
- Wilkinson E F Add
- Willow Bend Add
- Willow Brook Condo
- Willow Creek Estates
- Willow Wood
- Willow Wood Add
- Willowstone
- Wimbledon Add
- Wimbledon North Add
- Wimbledon North Addition
- Wimbledon On The Creek
- Wimbledon West Add
- Windemere Add
- Windgate Twnhs Add
- Windhurst Add
- Winding Creek Add
- Windmill Meadows Add
- Windsor Terrace Add
- Windsor Woods Add
- Windtree Ridge Add
- Windy Pine Park Add
- witte place
- Woodbine Add
- Woodbrook Add
- Woodfield Add
- Woodfield Add Arlington
- WOODFIELD ADDITION ARLINGTON
- Woodland Park East Add
- Woodland Park Estates Add
- Woodland Park South Add
- Woodland Spgs Add
- Woodland West Add
- Woodland West Addition
- Woodland West Estates Add
- Woodland West Village Add
- Woodridge Add
- Woods Of Timberlake Add
- Woodsetter Place #1 Add
- Woodside Add
- Wyndham Place Estates Add
- Yates Brothers Add
- York Meadow
Market Summary
Property Summary
- Located in the Viridian Village 1k subdivision, 3718 Pelican Rest Way Arlington TX is a Condo for sale in Arlington, TX, 76005. It is listed for $515,000 and features 3 beds, 3 baths, and has approximately 2,011 square feet of living space, and was originally constructed in 2021. The current price per square foot is $256. The average price per square foot for Condo listings in Arlington is $186. The average listing price for Condo in Arlington is $248,363. To schedule a showing of MLS#21151302 at 3718 Pelican Rest Way in Arlington, TX, contact your Spencer TX Real Estate, LLC agent at (817) 937-8532.
Similar Listings Nearby

3718 Pelican Rest Way
Arlington, TX










































