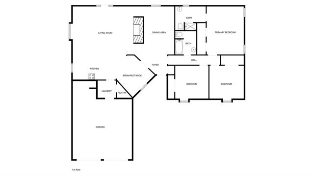
Welcome to 3902 San Miguel Ct, a home that exudes comfort and style. The living room is graced with a cozy fireplace, perfect for those chilly evenings. The primary bedroom is a haven of relaxation, featuring double closets for ample storage. The primary bathroom is a spa-like retreat with double sinks. Step outside to a covered patio, ideal for outdoor dining or relaxation. The private in-ground pool is the centerpiece of the fenced-in backyard, providing a perfect spot for summer fun. The home has been recently updated with fresh interior paint and partial flooring replacement, adding a touch of modern elegance. This is a home that truly ensures a unique blend of style and comfort. Home comes with a 100-Day Home Warranty and a 7-Day Home Test Drive to move in 7 days early for free
Property Details
Price:
$310,000
MLS #:
21155353
Status:
Active Under Contract
Beds:
3
Baths:
2
Type:
Single Family
Subtype:
Single Family Residence
Subdivision:
Mission Ridge Estates Add
Listed Date:
Jan 15, 2026
Finished Sq Ft:
1,735
Lot Size:
7,348 sqft / 0.17 acres (approx)
Year Built:
1978
See this Listing
Schools
School District:
Arlington ISD
Elementary School:
Ditto
High School:
Martin
Interior
Bathrooms Full
2
Cooling
Ceiling Fan(s)
Fireplace Features
Living Room
Fireplaces Total
1
Flooring
Ceramic Tile
Heating
Central
Interior Features
Other
Number Of Living Areas
1
Exterior
Construction Materials
Brick
Fencing
Fenced
Garage Spaces
2
Lot Size Area
0.1687
Pool Features
In Ground
Financial
Map
Community
- Address3902 San Miguel Court Arlington TX
- SubdivisionMission Ridge Estates Add
- CityArlington
- CountyTarrant
- Zip Code76016
Subdivisions in Arlington
- Abr Add
- Abram Estates
- Ambassador Square One
- Ambercrest Add
- AMBERCREST ADDITION
- Americana Estates Add
- Arbor Valley
- Arkansas Heights Add
- Arkansas Oaks Add
- Arlington Downs Twnhs
- Arlington Estates Add
- Arlington Gardens Add
- Arlington Heights Add
- Arlington Manor
- Arlington Mansfield Submarket
- Arlington Meadows Add
- Arlington Oaks Condo
- ARLINGTON OAKS CONDOMINIUM
- Arlington Oaks Condominiums
- Arlington Park Add
- ARLINGTON PARK ADDN
- Arlington Rfp Add
- Arlington Terrace
- Arlington Terrace Add
- Arlington Villa Add
- Ascension Point Condo
- ASCENSION POINT CONDOMINIUMS
- Ashbury Square
- Autumn Hill Arlington
- Avondale Place Add
- Balch J Add
- Ballpark Estates
- Ballpark Estates Townhomes
- Ballweg Add
- Barnes & Ditto Add
- Bay Club Add
- Bay Lakes North
- Bayberry Hills Add
- Belle Maison Estates
- Belle Meade
- Bent Oaks Estates Add
- Berkeley Square
- Berkeley Square Add
- Bowen Place
- Brandon Place
- Brandyridge
- Brasher Add
- Briar Meadow Add
- Briarwood Estates
- Brighton Estates
- Brittania Gardens
- Brittany Woods #1 & 2
- Brookmeadow Add
- Brownlee Meadows
- Buckingham Estates
- Buena Vista Add
- Burgundy Hill Add
- Caldwell P Add
- Calender Crossing
- Calender Place
- Calender Xing
- California Meadows
- Cambric Estates
- Cantor Park Condo
- Castle Oaks Add
- Cedar Oaks Add
- Cedar Rdg Arlington Twnhms Bld
- Chantilly Court
- Chapparal Valley
- Chasewood Oaks
- Chasewood Oaks Condo
- Chelsea Park Twnhms
- Cherry Creek Estates Add
- Chestnut Hills
- Chestnut Spgs
- Cimarron Estates
- Cloisters Condo
- Cloisters Condo The
- Cloisters Condominium
- Clover Park Add
- Club Oaks Add
- Clubview Add
- Coldwater Creek Add
- College Oaks Add
- Collingwood Village
- Collins Terrace Add
- Colonial Estates
- Colonial Greens South Add
- Columbine
- Columbine The A Condo
- COLUMBINE, THE A CONDOMINIUM
- Cooper Square Arlington
- Copperfield Add
- Coronet Estates
- Cottages On The Park Add
- Country Estate Add
- Country Estates Add
- Country Green Sec 1 Add
- Countryside Add
- Creekside Park Add
- Creekside Village Add
- Crest The
- Crestbluff Condo
- Crestgrove Condo
- Crossgate Add
- Crossing At Ruidosa Ridge
- Daggett E Add
- Daniel Meadows Sub
- Dardan Add
- Davis Sol Add
- Deer Creek Arlington
- Deerwood Park Add
- Dominion The Arlington
- Dorchester Place Add
- Double Y Wooded Estate Add
- Duplex North Add
- Duplex South Add
- Eagle Chase Add
- Eden Creek Add
- Eden Gardens Add
- Eden Glen Estates
- Eden Road Estates
- Edgewood Add
- Edgewood East
- Eldorado Add
- Elliot Heights
- Elliott Heights Add
- ELLIOTT HEIGHTS ADDITION
- Elliott Revision
- Elliott Revision Sub
- Elm Shadows Add
- Eltroy Heights
- Eltroy Heights Add
- Enchanted Lake Estate
- Enchanted Oaks Add
- ENCLAVE OF SHADY VALLEY
- Englewood Estate
- Estates Above Wimbledon
- Estates Of River Ridge The
- Estates On Rush Creek The
- Evergreen On The Park
- Fairfield Add
- FAIRFIELD ADDITION
- Fairfield East
- Fairway Meadows
- Fairway Meadows Add
- Fannin Farm
- Fannin Farm Add
- Fannin Farm West Add
- Fhm Ross Add
- Fielder Place Add
- Fielder Place North Add
- Fielder Terrace
- Ford Sub
- Forest Brook Twnhms Add
- Forest Creek
- Forest Edge Condo Sub
- Forest Grove Add
- Forest Hills Add
- Forest Park Add
- Fossil Lake Add
- Fox A Add
- Fox Run Add
- Foxwood Glen
- Friendly Village Mhp
- Garden Acres Add
- Garden Park Square
- GASLITE ESTATE ADD
- Georgetown Add
- Glen Ridge Add
- Glen Spgs Add
- Glen Spgs West Add
- Glenbury Add
- Glynn Oaks Add
- Glynndale Add
- Goodwin J J Add
- Grand Park Estates
- Green Leaf Add
- Green Leaf Addition
- Green Meadows Add
- Green Oaks Add
- Green Oaks Garden Homes
- Green Oaks Preserve
- Green Oaks Village Add
- Green Valley Add
- Greenwood Hill Add
- Gsid Comm #2 Inst #1
- GSID COMM #2 INST #4
- Guerin Square
- GUERIN, M ADDITION
- Gunn M S Add
- Harmony Add
- Harris Crossing Ph I
- Harris F L Lot 11A-2
- Harris Ridge
- Harvest Hills Add
- Harvest Hills III Add
- Harwood Meadows Add
- Henry Russell Survey Abstract 1324
- Heritage Oaks-Arlington
- Hialeah Add
- Hidden Creek Estates
- Hidden Oaks Add
- Hiett Ellis Sub
- High Country Estates
- High Meadows Add
- High Meadows Addition
- High Oaks Estate
- High Oaks Estates
- High Park Village Add
- HighCroft Estates
- Highland Park Add
- HIGHLAND PARK ADDITION-ARLINGTON
- HIGHLAND PARK ADDITION-ARLNGTN
- Highland Ridge Add
- Highland Trail Add
- Highpoint Add
- Hillcrest Add
- Hillcrest Park Add
- Hilldale Add
- Hillside Add
- Hillvalley Estates
- Hogans Cottages
- Hollandale Add
- Hollandale East Add
- Hollis
- Hollis Add
- Hollow Creek Estates
- Holly Hollows Add
- HOLLY HOLLOWS ADDITION %234
- Homemaker Hills Add
- Howard M B Estates
- HUnter Glenn Addition
- Hunter Place North
- Hunter Pointe Add
- Hunter Trail Add
- Hunters Creek Add
- Hunterwood Estates Add
- Huntwick Add
- Indian Hill Add
- Indian Oaks Estates
- Indian Trace Add
- Indian Wells Add
- Indian Wells Addition
- Interlochen Estates Add
- Interlochen West Add
- Irish Glen Add
- Island At Enchanted Bay
- Island At Enchanted Bay The
- Jackson Square Add
- James R Newton Surv Abs 1170
- John R Hawkins Surv Abs #792
- John Stephens Surv Abs #1428
- John Wheat Surv Abs #1678
- Juniper Hill Add
- Kelly S D Sub
- Kelly Thomas E Addition
- Knapp & Delk Add
- Knight’s Landing on Eden Rd phase 2
- Knight’s Lndg Add Ph II
- Knights Lndg Add
- Knottingham Add
- knottingham addition
- Knox Add
- L Barned #113 & M Coleman Surv
- LA FRONTERA
- La Frontera South
- Laguna I Add
- Laguna Village Add
- Lake Arl Estates Add
- Lake Arl Highlands Add
- Lake Arl Ind Park Add
- Lake Hill Estates Add
- LAKE HILL ESTATES ADDITION
- Lake Park Estate Add
- Lake Port Meadows Add
- Lake Port Village Add
- Lakehill Manor Addition
- Lakeridge Estates Add
- Lakeside at Viridian
- Lakeside-Viridian
- Lakewood Add
- Lamar Add
- Lamar North Add
- Lampe George Add
- Landmark Village Add
- Lazy River Add
- Lee A J Add
- Leeds Add
- Lochngreen Village Add
- Lonesome Dove Estates
- Los Prados Estates
- Lost Creek Estates Add
- Lowe Nathan Add
- Lucas E O Add
- Luttrell James Sub
- Lynn Creek Village Add
- Magnolia Heights Add
- Main 7 Townhome Addition
- Main 7 Twnhm Add
- Maise Matthew Add
- Maise, Matthew Survey
- Manchester Place Add
- Manorhomes Of Wimbledon Condo
- Manors Of Channing Park The
- Marina Shores
- Marthas Vineyard Add
- Mask W Add
- Masonic Heights Add
- Matlock Estates
- Matlock Estates Add
- Matlock Manor Add
- Maybrook Add
- Mayfield Cooper Station Office
- Mayfield Meadows Add
- Mc Kamy Lakes Estates
- Mc Kamy Oaks Add
- Meadow Creek Add
- Meadow Green
- Meadow Green Add
- Meadow Oaks Village Add
- Meadow Park Estates Add
- Meadow Vista Estate Addition
- Meadow Vista Estates Add
- Meadow Wood Estates Add
- Meadowbrook Park Add
- Medlin O Add
- Mill Creek Estates Add
- Millbrook #1
- Mission at Johnson Creek
- Mission Ridge Estates Add
- Mitchell R A Add
- MONDAVI ESTATES
- Monterrey Add
- Monties Ranchettes Sub
- Moten Add
- Mountain View Add
- Murray Estates Add
- Murwick Add
- New York Meadows Add
- Newport Village
- Newton A Add
- Noah Homes Add
- Nob Hill Add
- North Creek Estates
- Northbrooke Arlington
- Northcrest Park Add
- Northwest Heights
- Northwood Park Add
- Norwood Square
- Oak Branch Estates
- Oak Canyon
- Oak Country Add
- Oak Creek Condo
- Oak Creek Estates
- Oak Glen Add
- Oak Glen Estates
- Oak Manor Add
- Oak Ridge Estates
- Oak Tree Estates
- Oakbrook Add
- Oakbrook Garden Homes
- Oaks North Add
- Oaks The Arlington
- Oakwood Court
- Oakwood Terrace Add
- Olde Towne Add
- Oldfield Village
- Olympia Park
- Ouro Verde
- Overland Stage Estates
- Overland West
- Owl Creek Estates Add
- Oxford Square
- Palos Verdes
- Park Chase Add
- Park Highlands
- Park Place East
- Park Place North
- PARK ROW ADD
- Park Side Place
- Parkcrest Place
- Parker Oaks Estates
- Parks At Susan Drive The
- Parkside Condos
- Parkway Central Add
- Parkway Court Add
- Parkway North
- Paxton Village
- Pebblebrook Village Condo
- Pebblebrook Vlg Condo Bldg #4
- Pecan Acres Condo
- Pecan Acres Sub
- Pecan Chase Condo
- Pecan Meadows
- Pennsylvania Gardens Add
- Peter Rouche Surv Abs #1339
- Phillips Park Add
- Pike View Add
- Pinehurst Meadows
- Pineridge Estates
- Plaza Heights Add
- Plaza Terrace Add
- Pleasant Forest Add
- Pleasant Wood Estates
- Potomac Pointe
- Preserve at Kelly Elliott
- Preserve on Kelly Elliott
- Prestonwood Estates
- Prestonwood Estates Add
- Quail addition
- Quail Creek Add
- Quail Hollow On The Lane Add
- Quail Valley Addition
- Ramey R R Add
- Ramsey Add
- Randol Mill Park Estates
- Randol Wood Add
- Reddy J V Add
- Reflection Bay Condo On Lake Arl
- Regency Highpoint Add
- Ridge Point Add
- Ridgecrest Add
- Riodge Point
- River Bend Add
- Robin Hood Add
- Rocky Canyon Estates
- Rolling Acres Add
- Rolling Hills Estate Arlington
- Rolling Meadows Add
- ROLLING MEADOWS ADDITION
- Rolling Meadows Twnhs
- Roosevelt Estates
- Ruidosa
- Running Ranch Add
- Runnymede Woods
- Rush Creek Ranch Estates
- Rushmoor Add
- SAINT CLAIRE WOODS TOWNHOUSES
- Saint Claire Woods Twnhs
- Sandalwood Estates Add
- Schoeneman Add
- School Hill Add
- Scots Wood Estates
- Scots Wood Estates #4
- Scott Add
- Scott Annex Add
- Scottswood Rice Condo
- Seclusion Rdg
- Seville Hills
- Seville Hills Sub
- Shady Oaks Garden Home Add
- Shady Oaks Gardens Sub
- Shady Park Add
- Shady Valley Est
- Shady Valley North Add
- Shady Valley West Add
- Shane Meadow Add
- Shelby Add
- Sherwood Knoll Add
- SHERWOOD KNOLL ADDITION
- Shorewood Add
- SHOREWOOD ESTATES
- Shorewood Hills Addition
- Six Flags Bus Park Add
- Smith A M Add
- Smokerise Add
- Sol Davis Add
- Somerset Add
- South Arlington
- South Arlington Estates
- South Center Street Twnhms
- South Collins Terrace Add
- South Cooper Estates Add
- South Hampton
- South Hampton Add
- South Pointe Add
- South Ridge Hills Add
- South Side
- South Side Add
- SOUTH SIDE ADDITION
- South Side Addn
- Southwind
- Southwind Add
- Southwind Mdws Ph 1
- Spring Lake Add
- Spring Meadow Add
- Spring Meadows Add
- Spring Park Estates Add
- Spring Valley Add
- Spring wood
- Springridge Add
- SPRINGRIDGE ADDITION
- St James Place Condo
- Stage West
- Stage West Add
- STAGECOACH ESTATES
- Stagecoach Estates Add
- Sterling Green Add
- Sterling Greene
- Stonebrook Estates Add
- Stoneridge Add
- STONERIDGE ADDITION
- Stoneridge West Tnhse Devlpmnt
- Stratford Courts
- Strickland David Add
- Summer Place South Add
- Summer Place Twnhms Add
- Summerbrooke Estates
- Summerwood Add
- Sunset Add
- Sunset Hills Arlington
- SUTHERLAND
- Swiss Ave Add
- SYCAMORE SQUARE
- SYLVAN HEIGHTS
- Sylvan Heights Add
- Tanglewood Add
- Temple O Harris Abs 645
- Terrace Oaks
- Th Watson Surv
- The Crest
- The Estates On Rush Creek
- The Oaks
- Tierra Verde Estates Add
- Tiffany Park Add
- Tiffany Woods Add
- Timberwood Estates
- Tinsley Add
- Toliver Acres Add
- Towngreen Village Add
- Trails East Add
- TREETOP ADDITION
- Turf Club Estates Add
- Turf Club Estates Addition Blk
- Turner James T Add
- Tuscany Lakes Addition
- Twin Hills
- Twin Hills Ph 2
- Twin Lakes Add
- University Hills Add
- Valista Office Park
- Valley View Add
- Vermillion Place Add
- Village At Palos Verdes The
- Village At Regents Park The
- Villas Of La Frontera South
- Villas Of Tuscany
- Viridian
- Viridian 2d
- Viridian Add
- Viridian Elements
- Viridian Elements 55+
- VIRIDIAN VILLAGE
- Viridian Village 10
- Viridian Village 1A2
- Viridian Village 1b
- Viridian Village 1c 2
- Viridian Village 1c-2
- Viridian Village 1e-2
- Viridian Village 1e-3
- Viridian Village 1e1b
- Viridian Village 1F
- Viridian Village 1g
- Viridian Village 1k
- Viridian Village 2a
- Viridian Village 2b
- Viridian Village 2c
- Viridian Village 2d
- Viridian Village 2f
- Viridian Village 3a
- Viridian Village 3b
- Viridian Village 3b – 55+ Community
- Viridian Village North
- Viridian Village or Viridian
- Viridian Village Ph 1e-2
- Viridian Village1g
- Viridian Vlg 2d
- Viridian Vlg 3a
- Waldrop Heights Add
- WALSH, R M SURVEY
- Warnell W W Add
- Watercrest Estates
- Waterfront Enchanted Bay Arl
- Waterway Park North
- Waterwood Estates
- Waterwood Village
- Watsonville Heights Add
- Waverly Place
- Webb Town Of
- Webb-Britton Estates
- Wellington Place I Condos
- Wentworth Estates Add
- Wesley Commons
- West Park Estates
- WEST PARK ESTATES BLOCK
- Westchester Park
- Westchester Place
- Western Plains Estates
- Western Trails Add
- Westgate Square
- Westgate Square 1st Sec
- Westlake Add
- WESTLAKE ADDITION
- Whispering Meadow 2nd Inc Add
- Whitemarsh Estates Add
- Wildwood Estates
- Wilemon Sub
- Wilkerson
- Wilkinson E F Add
- Willow Bend Add
- Willow Brook Condo
- Willow Creek Estates
- Willow Wood
- Willow Wood Add
- Willowstone
- Wimbledon Add
- Wimbledon North Add
- Wimbledon North Addition
- Wimbledon On The Creek
- Wimbledon West Add
- Windemere Add
- Windgate Twnhs Add
- Windhurst Add
- Winding Creek Add
- Windmill Meadows Add
- Windsor Terrace Add
- Windsor Woods Add
- Windtree Ridge Add
- Windy Pine Park Add
- witte place
- Woodbine Add
- Woodbrook Add
- Woodfield Add
- Woodfield Add Arlington
- WOODFIELD ADDITION ARLINGTON
- Woodland Park East Add
- Woodland Park Estates Add
- Woodland Park South Add
- Woodland Spgs Add
- Woodland West Add
- Woodland West Addition
- Woodland West Estates Add
- Woodland West Village Add
- Woodridge Add
- Woods Of Timberlake Add
- Woodsetter Place #1 Add
- Woodside Add
- Wyndham Place Estates Add
- Yates Brothers Add
- York Meadow
Market Summary
Current real estate data for Single Family in Arlington as of Mar 14, 2026
867
Single Family Listed
73
Avg DOM
192
Avg $ / SqFt
$419,135
Avg List Price
Property Summary
- Located in the Mission Ridge Estates Add subdivision, 3902 San Miguel Court Arlington TX is a Single Family for sale in Arlington, TX, 76016. It is listed for $310,000 and features 3 beds, 2 baths, and has approximately 1,735 square feet of living space, and was originally constructed in 1978. The current price per square foot is $179. The average price per square foot for Single Family listings in Arlington is $192. The average listing price for Single Family in Arlington is $419,135. To schedule a showing of MLS#21155353 at 3902 San Miguel Court in Arlington, TX, contact your Spencer TX Real Estate, LLC agent at (817) 937-8532.
Similar Listings Nearby

3902 San Miguel Court
Arlington, TX


































