Design Your Dream Home in Prairie Hill Estates – Aledo ISD
Welcome to the exclusive Prairie Hill Estates, where your future home awaits! Nestled in the highly sought-after Aledo ISD, this proposed new construction offers the rare opportunity to fully customize your home from the ground up with a well-established, quality custom builder known for excellence and craftsmanship.
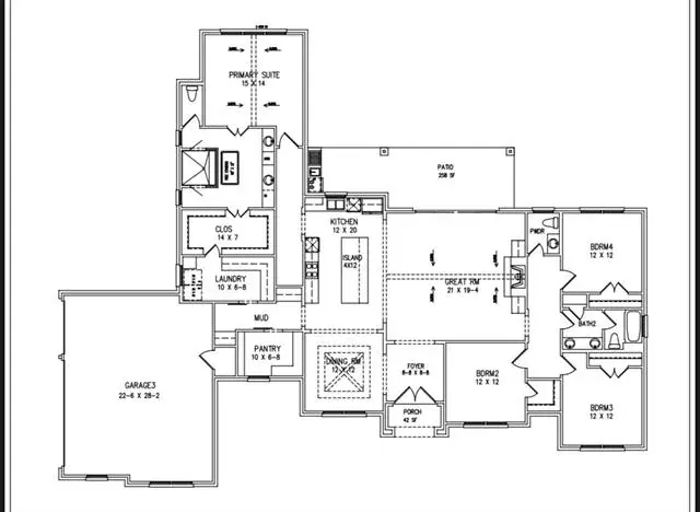
This thoughtfully designed one-story floorplan features 4 spacious bedrooms, 2.5 baths, and a 3-car garage – all seamlessly laid out for comfortable and functional living. Whether you''re entertaining or enjoying quiet family nights, the open concept living spaces and designer details will bring your vision to life.
Located in a serene community with a convenient east-facing commute into Fort Worth, Prairie Hill Estates combines peaceful living with easy access to city amenities, top-rated schools, and everything you need just a short drive away.
Welcome to the exclusive Prairie Hill Estates, where your future home awaits! Nestled in the highly sought-after Aledo ISD, this proposed new construction offers the rare opportunity to fully customize your home from the ground up with a well-established, quality custom builder known for excellence and craftsmanship.
This thoughtfully designed one-story floorplan features 4 spacious bedrooms, 2.5 baths, and a 3-car garage – all seamlessly laid out for comfortable and functional living. Whether you''re entertaining or enjoying quiet family nights, the open concept living spaces and designer details will bring your vision to life.
Located in a serene community with a convenient east-facing commute into Fort Worth, Prairie Hill Estates combines peaceful living with easy access to city amenities, top-rated schools, and everything you need just a short drive away.
Property Details
Price:
$699,000
MLS #:
21145824
Status:
Pending
Beds:
4
Baths:
2.1
Type:
Single Family
Subtype:
Single Family Residence
Subdivision:
Lake Prairie
Listed Date:
Jan 6, 2026
Finished Sq Ft:
2,674
Lot Size:
87,120 sqft / 2.00 acres (approx)
Year Built:
2025
See this Listing
Schools
School District:
Aledo ISD
Elementary School:
Vandagriff
Middle School:
Aledo
High School:
Aledo
Interior
Bathrooms Full
2
Bathrooms Half
1
Cooling
Central Air, Electric
Fireplace Features
Gas Logs
Fireplaces Total
1
Heating
Electric
Interior Features
Chandelier, Decorative Lighting, Kitchen Island, Open Floorplan, Walk- In Closet(s)
Number Of Living Areas
1
Exterior
Construction Materials
Board & Batten Siding, Brick
Exterior Features
Covered Patio/Porch
Fencing
None
Garage Length
22
Garage Spaces
3
Garage Width
28
Lot Size Area
2.0000
Financial
Map
Community
- Address1001 Lake Prairie Drive Aledo TX
- SubdivisionLake Prairie
- CityAledo
- CountyTarrant
- Zip Code76126
Subdivisions in Aledo
- Abst.2540 SUB.J.E. PORTER
- ADALINE S WORRALL
- Aledo
- Aledo Bluffs
- Aledo Country Estates
- Aledo Heights
- Aledo Medical Office Bldg
- Aledo Original Town
- Annetta Estates Pc
- Bear Country
- Bear Creek Estates
- Bear Creek North Pc
- Bear Creek Phase 3
- Bear Creek Ranch
- Bear Creek Ranch Pc
- Bear Creek Ranch PC E-551
- Bear Creek Ranch Ph
- Boutwell
- Brookhollow
- C Luttrell Surv Abs #806
- Cornerstone
- Country Ac Aledo Corr
- Country Acres
- Creekside Estates
- Deer Creek Ph 01
- Deer Creek Ph 04
- Deer Creek Ph IV
- Deer Creek Ph Vii
- Estates Of Muir Ridge
- Feed Lt Commons
- J Lawrence 160 Acre Surv Abs #
- J Newby Survey
- JARVIS
- Jenkins Rd
- Kelly Ranch
- La Dorada
- La Madera
- La Madera Estates
- La Madera Ph
- Lake Prairie
- LaMadera
- Linkwood Estates Add
- LR Fawks Survey
- Maravilla Estates Ph 1
- Maravilla Vistas
- Maravilla Vistas Ph II
- MATTHEWS ROSANNAH
- Mcdavid Estates
- Mcdavid Estates Ph VI
- Mcdavid Southwest
- Mcdavid Spgs
- Meadow Park Estate Ph 3
- Meadow Park Estates Ph
- Meadow View Farms
- Morningstar
- Morningstar Add
- Morningstar Ph 1 Sec 8
- Morningstar Ph 2 Sec 8
- Morningstar Ph 3 Sec 8
- Morningstar Ph 4 Sec 5
- Morningstar Ph 4 Sec 8
- Morningstar Ranch
- Muir Creek Estates
- n-a
- North Annetta Hills
- Oakcrest Hills Estates
- Panther Creek Estates Pc
- Parker Station
- Parks Of Aledo
- Parks of Aledo – The Lakes
- Parks Of Aledo Bluffs
- Parks of Aledo Lakes
- Parks Of Aledo Ph
- Parks Of Aledo Ph 2
- Parks Of Aledo Point
- Parks of Aledo Point Vista Ph Two
- Parks Of Aledo The
- Parks of Aledo The Lakes
- Parks Of Aledo-Lakes
- Parkside
- Prairie Creek Bus Park
- Prairie Hill
- Ranches Of Bear Creek
- Rancho Vista Estates
- Rio Vista Addition
- Rio Vista at Kelly Ranch
- Rolling Creek Ranch
- Rolling Hills Aledo
- Sanctuary Oaks Add
- Sierra Vista at Kelly Ranch
- Stone Creek Farms Ph
- Summit Ranch
- SURV: WILSON WOODS
- Ten Creek Ranch
- The Enclave at Parks of Aledo
- The Grasslands Add
- The Lakes at Parks of Aledo
- The Villas
- The Villas Downtown
- Trinity Bluffs
- Versailles
- Villages Of Aledo Ph
- Walsh Quail Valley
- WALSH RANCH QUAIL VALLEY VILLAGE RESIDENTIAL, F-45
- Walter Houston Abs 719
- West Hills Estates
- Westgate Add Ph II
Market Summary
Current real estate data for Single Family in Aledo as of Mar 14, 2026
266
Single Family Listed
98
Avg DOM
244
Avg $ / SqFt
$824,740
Avg List Price
Property Summary
- Located in the Lake Prairie subdivision, 1001 Lake Prairie Drive Aledo TX is a Single Family for sale in Aledo, TX, 76126. It is listed for $699,000 and features 4 beds, 2 baths, and has approximately 2,674 square feet of living space, and was originally constructed in 2025. The current price per square foot is $261. The average price per square foot for Single Family listings in Aledo is $244. The average listing price for Single Family in Aledo is $824,740. To schedule a showing of MLS#21145824 at 1001 Lake Prairie Drive in Aledo, TX, contact your Spencer TX Real Estate, LLC agent at (817) 937-8532.
Similar Listings Nearby

1001 Lake Prairie Drive
Aledo, TX






